Contemporary living with south garden, garage and energy-saving extras.
All-inclusive fitted specification with Nobilia kitchen and Bosch appliances
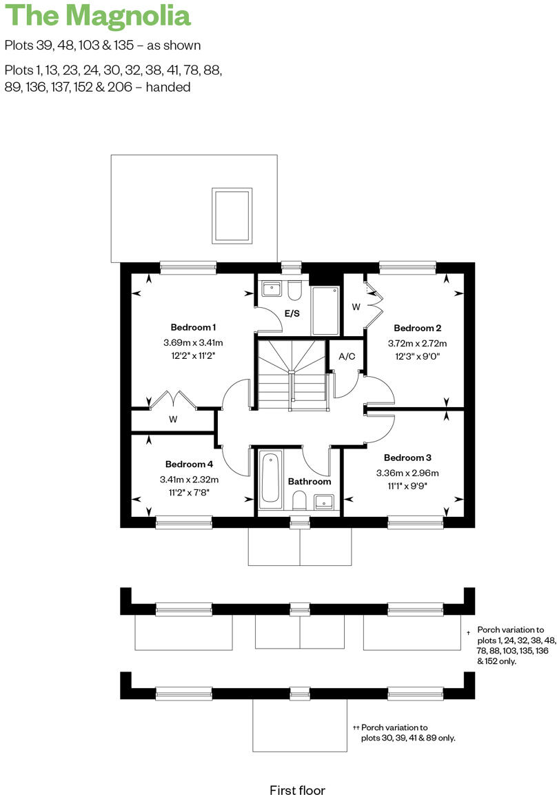
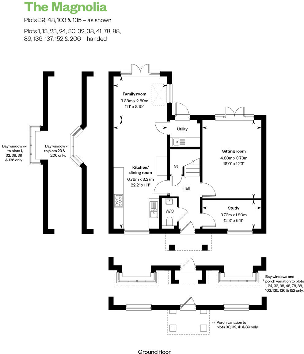
This modern four-bedroom detached house on Plot 152 at Knightwood Chase is offered as a featured showhome with a £22,000 stamp duty contribution and £2,000 towards removal costs. The layout emphasises open-plan family living: a full-length kitchen/dining/family room with French doors to a south-facing lawned garden, plus a large separate sitting room, utility and a private study. The specification is all-inclusive with integrated Nobilia kitchen, Bosch appliances, Amtico flooring and fitted wardrobes to bedrooms one and two.
Practical features include a garage, driveway parking, electric car charging point and solar panels which reduce running costs. The primary bedroom benefits from an en-suite; a shared family bathroom serves the remaining bedrooms. The house is new build, freehold, with a management fee of £435.20 per annum covering communal matters on the development.
Buyers should note the local area classifications: the wider development is described as communal retirement/ageing urban communities, and recorded local crime levels are high—factors to check for suitability. Plot 152 sits on a large plot despite the overall development being small in scale; prospective purchasers should view to confirm room proportions and garden scale. This property will suit families seeking a contemporary, energy-efficient home with immediate move-in specification.
4 bedroom link detached house for sale in Knightwood Chase,
Fordingbridge,
SP6 1JW
, SP6 — £615,000 • 4 bed • 1 bath • 929 ft²
3 bedroom detached house for sale in Knightwood Chase,
Fordingbridge,
SP6 1JW
, SP6 — £500,000 • 3 bed • 1 bath • 753 ft²
3 bedroom semi-detached house for sale in Knightwood Chase,
Fordingbridge,
SP6 1JW
, SP6 — £420,000 • 3 bed • 1 bath • 629 ft²
3 bedroom terraced house for sale in Knightwood Chase,
Fordingbridge,
SP6 1JW
, SP6 — £475,000 • 3 bed • 1 bath • 446 ft²
3 bedroom terraced house for sale in Knightwood Chase,
Fordingbridge,
SP6 1JW
, SP6 — £485,000 • 3 bed • 1 bath • 446 ft²
3 bedroom terraced house for sale in Knightwood Chase,
Fordingbridge,
SP6 1JW
, SP6 — £420,000 • 3 bed • 1 bath • 365 ft²














































































