**Standout Features:**
- Historic Grade II Listed Victorian property
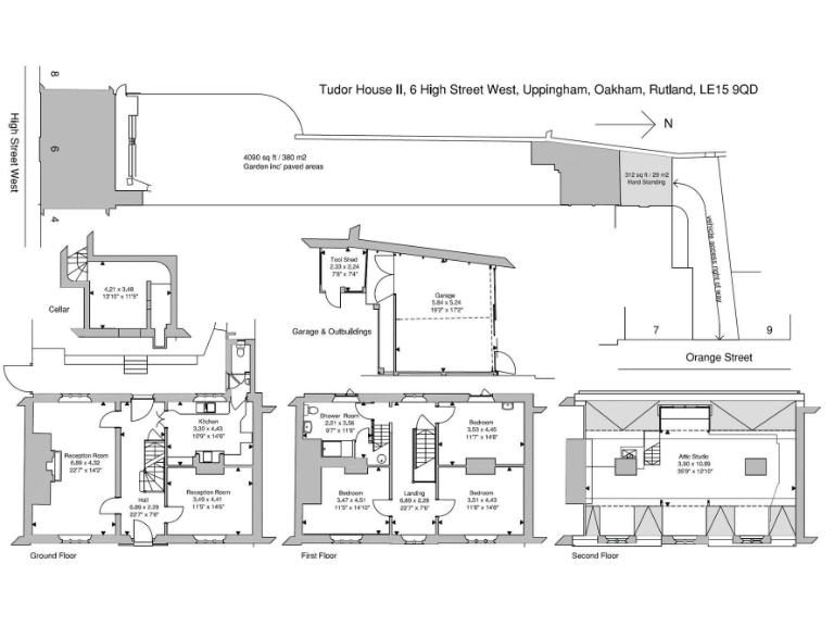
- Spacious living with approximately 3,090 sq ft
- Unique 35 ft. attic room offering conversion potential
- Two reception rooms and a family-sized kitchen
- Large private garden, double garage, and off-road parking
- Town centre location within walking distance to amenities
- Requires renovation to bring its character to life
**Summary:**
Welcome to Tudor House II, a charming Grade II listed Victorian gem nestled in the heart of Uppingham. This expansive property boasts a spacious layout featuring three double bedrooms, two reception rooms, and a generous garden, providing ample space for families or investors seeking renovation potential. The standout 35 ft. attic room presents an exciting opportunity for conversion, further enhancing the property's value.
Although in need of modernisation, Tudor House II offers a unique chance to restore a piece of history in a vibrant town centre location. With off-road parking, a double garage, and a delightful garden, it combines the practicality needed for modern living with the character of yesteryear. Enjoy local convenience with boutique shops, schools, and green spaces all within walking distance. Don't miss your chance to claim this rare find—properties of this nature are few and far between!
4 bedroom character property for sale in High Street West, Uppingham, Rutland, LE15 — £600,000 • 4 bed • 4 bath • 3907 ft²
6 bedroom character property for sale in High Street West, Uppingham, Rutland, LE15 — £650,000 • 6 bed • 1 bath • 2950 ft²
3 bedroom terraced house for sale in Queen Street, Uppingham, Oakham, LE15 — £390,000 • 3 bed • 2 bath • 1023 ft²
4 bedroom terraced house for sale in London Road, Uppingham, Oakham, LE15 — £525,000 • 4 bed • 2 bath • 1453 ft²
4 bedroom character property for sale in Queen Street, Uppingham, LE15 — £600,000 • 4 bed • 2 bath • 1572 ft²
4 bedroom character property for sale in Northgate, Oakham, Rutland, LE15 — £500,000 • 4 bed • 2 bath • 2272 ft²






























































































