CA15 6DF - 4 bedroom terraced house for sale in Mill Street, Maryport,…

View on Property Piper

4 bedroom terraced house for sale in Mill Street, Maryport, CA15

Summary - 11 MILL STREET, MARYPORT CA15 6DF

4 bed 1 bath Terraced

Four-bedroom character home with oversized garage and no onward chain.
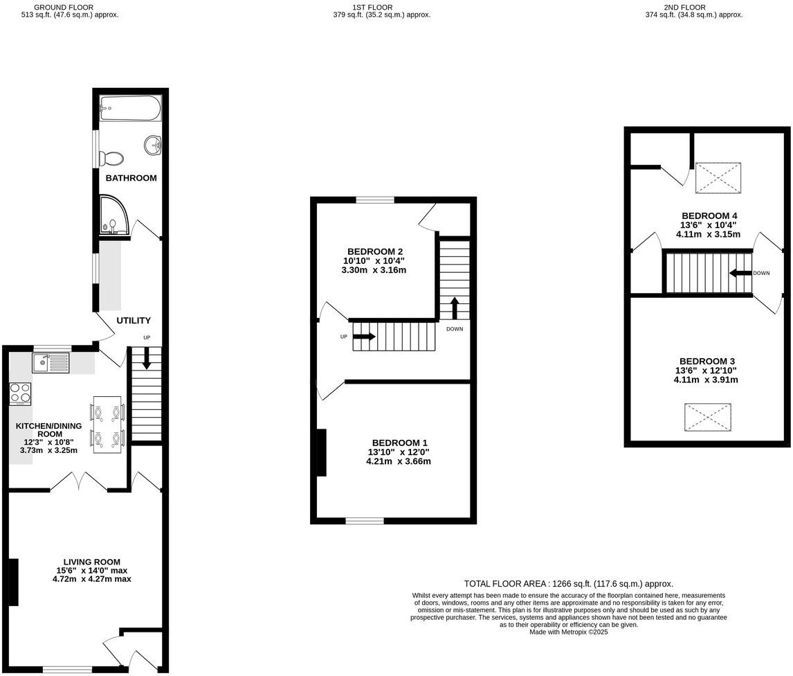
Four bedrooms across three storeys, practical family layout
Set on Mill Street in Maryport, this four-bedroom Victorian mid-terrace combines period character with modern living spaces. The ground floor offers a stylish living room with fireplace, French doors into a fitted kitchen/dining area, a useful utility space and a generous bathroom with separate shower. Two bedrooms occupy the first floor with a further two on the top floor, making this a practical family layout.

Practical strengths include a courtyard-style rear garden and an oversized garage at the back — useful for secure parking, a workshop or storage. The property is offered freehold and chain free, which can speed up a straightforward move. Council tax is very cheap locally, and the house sits within easy reach of the town centre, harbour, station and several well-rated primary and secondary schools.

Notable drawbacks are clear and should be factored into plans: the area records higher-than-average crime and very high local deprivation, broadband speeds are slow, and the property has an EPC band E. The external stone walls are likely uninsulated (typical for the build era), so further insulation or energy improvements may be needed. Overall this home suits buyers seeking an affordable, characterful family house or investors prepared to upgrade energy performance and connectivity.

Property Details

Brochure Descriptions

Image Descriptions

Floorplan Description

Rooms

Textual Property Features

Target Audience

AI Tags

Detected Visual Features

EPC Details

Nearby Schools

Nearest Bars And Restaurants

,,,,}

Nearest General Shops

,,}

Nearest Grocery shops

,,}

Nearest Supermarkets

,,}

Nearest Religious buildings

,,}

Nearest Medical buildings

,,,}

Nearest Leisure Facilities

,,,,}

Nearest Tourist attractions

,,}

Nearest Train stations

,,,,}

Nearest Bus stations and stops

,,,,}

Nearest Hotels

,,}

Tags

Local Market Stats

AirBnB Data

Similar Properties

Meta

High Res Images

Compatible Images

Low res Images

Thumbnails

Raw Images

High Res Floorplan Images

Compatible Floorplan Images

Low res Floorplan Images

FloorplanImages Thumbnail

Raw Floorplan Images