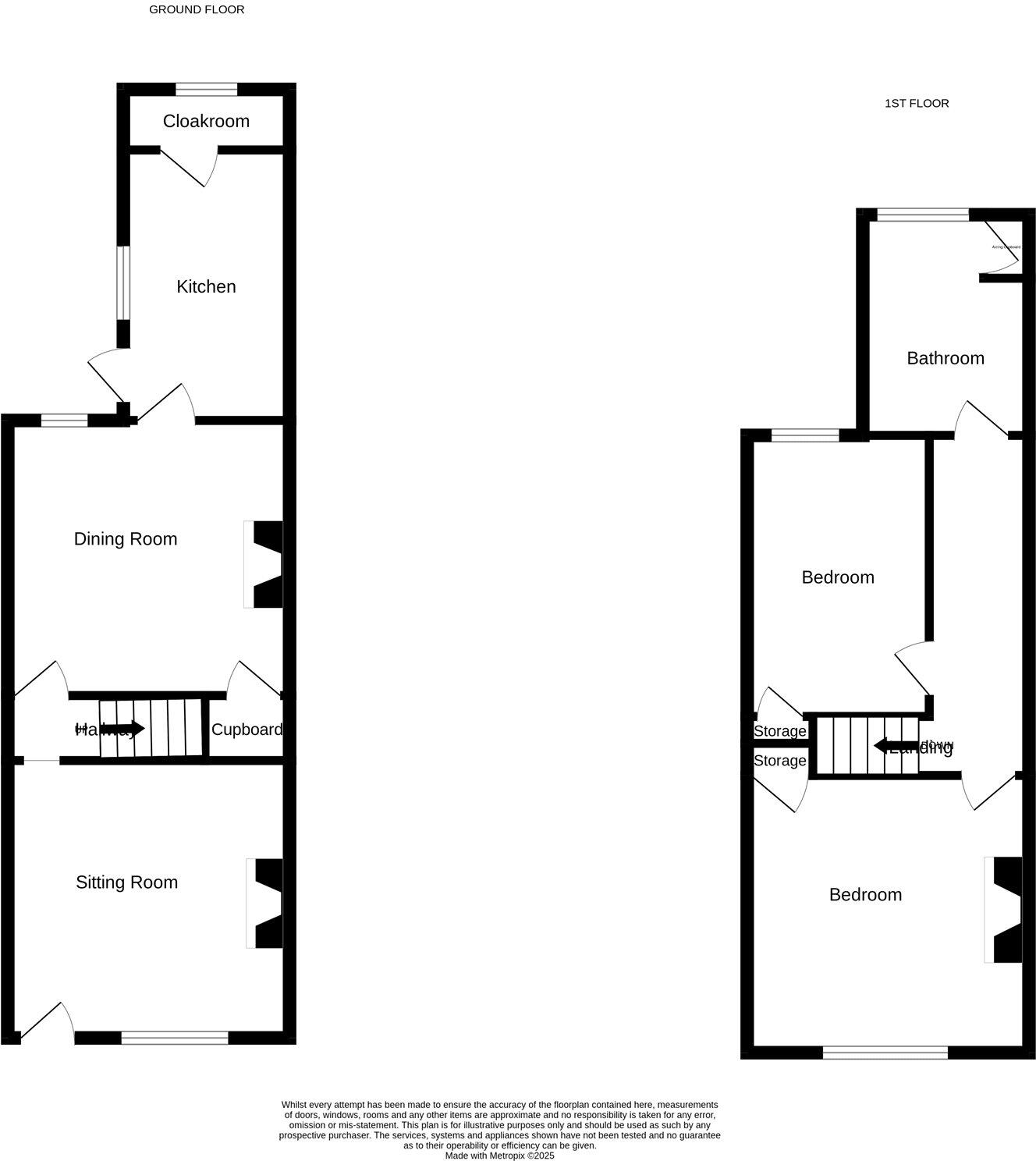
Well-presented two-bedroom Edwardian villa in Ardleigh village, ready to enjoy with character and parking..
Edwardian red-brick villa with period character
Two double bedrooms and a well-appointed bathroom
Separate sitting and dining rooms, light-filled interiors
Kitchen with direct garden access and rear outbuilding
Off-street parking for one vehicle only
Roof replaced January 2017
Solid brick walls likely without cavity insulation
Medium flood risk for the area, small walled garden
A handsome red-brick Edwardian terraced villa situated in the heart of Ardleigh, presented with period detail and practical layout. The entrance leads to a sitting room and separate dining room, both with character features and good natural light. The rear kitchen opens to a small walled garden and useful outbuilding, ideal for storage or a workshop.
Upstairs are two double bedrooms and a well-appointed bathroom, making the house well suited to a small family, professional couple, or downsizers wanting village life. Practical benefits include off-street parking for one car, mains gas central heating with boiler and radiators, and a full roof replacement completed in January 2017.
Notable drawbacks are factual: the property has solid brick walls (likely no cavity insulation), a small plot size, and a medium flooding risk for the area. There is only one parking space and limited garden area, which may matter to buyers seeking larger outdoor space. Council tax is inexpensive and the location offers fast broadband, excellent mobile signal, and easy access to local shops, school and country paths.
2 bedroom semi-detached house for sale in Station Road, Ardleigh, CO7 — £290,000 • 2 bed • 1 bath • 809 ft²
2 bedroom end of terrace house for sale in Colchester Road, Ardleigh, Colchester, Essex, CO7 — £350,000 • 2 bed • 1 bath • 664 ft²
3 bedroom semi-detached house for sale in Gernon Road, Ardleigh, CO7 — £375,000 • 3 bed • 2 bath • 1006 ft²
3 bedroom semi-detached house for sale in Colchester Road, Ardleigh, Colchester, Essex, CO7 — £275,000 • 3 bed • 2 bath • 953 ft²
3 bedroom end of terrace house for sale in Forge Court, Ardleigh, Colchester, Essex, CO7 — £350,000 • 3 bed • 2 bath • 936 ft²
4 bedroom detached house for sale in Station Road, Ardleigh, Colchester, Essex, CO7 — £550,000 • 4 bed • 2 bath • 1259 ft²






































































