Spacious rural family home on a large plot with farmland views.
Five bedrooms including master with en-suite
Large living room with feature fireplace and exposed beams
Open-plan kitchen/diner with French doors to garden
Huge rear garden with paved seating and children's play area
Gated driveway and integrated garage provide secure parking
Built c.1996–2002; double glazing and mains gas heating
Village location — remoter community with average broadband
Council Tax Band E (above local average)
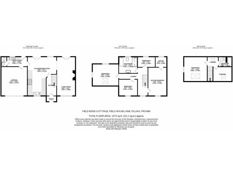
Set on a large plot on the edge of Pilling village, this five-bedroom detached home offers generous family living with a strong rural outlook. The house was built c.1996–2002, has modern double glazing and mains gas central heating, and combines comfortable living spaces with practical rooms including a utility and integrated garage.
Ground-floor living centres on a large living room with a feature brick fireplace and an open-plan kitchen/dining area, both with French doors to the substantial rear garden. The layout includes a downstairs WC, utility room and internal access to the garage, making everyday family life straightforward.
All five bedrooms are arranged over two upper floors; the principal bedroom includes an en-suite and there is a four-piece family bathroom plus a further bathroom on the second floor. The property sits on a large landscaped plot with paved seating areas, raised beds, a lawn and a children’s play area, plus a gated driveway to the front and views over farmland.
Practical considerations: the house is freehold and in a low flood-risk area, but it lies in a remoter village community with average mobile and broadband speeds. Council Tax is in Band E (above local average), and while the home is presented well, buyers should note its rural location if commuting or high-speed connectivity are priorities.
4 bedroom detached house for sale in Bradshaw Lane, Pilling, Preston, Lancashire, PR3 — £475,000 • 4 bed • 2 bath • 1870 ft²
4 bedroom detached house for sale in Smallwood Hey Road, Pilling, PR3 — £325,000 • 4 bed • 3 bath • 1599 ft²
3 bedroom semi-detached house for sale in Bluebell Cottages, Pilling, PR3 — £250,000 • 3 bed • 3 bath • 1228 ft²
3 bedroom semi-detached house for sale in Smallwood Hey Road, Preston, PR3 — £245,000 • 3 bed • 2 bath • 905 ft²
3 bedroom semi-detached house for sale in St. Johns Avenue, Pilling, PR3 — £245,000 • 3 bed • 2 bath • 1094 ft²
4 bedroom bungalow for sale in Smallwood Hey Road, Pilling, PR3 — £375,000 • 4 bed • 2 bath • 1450 ft²






























































































