W11 1QR - 2 bedroom apartment for sale in Lancaster Road, London, W11

View on Property Piper

2 bedroom apartment for sale in Lancaster Road, London, W11

Summary - GROUND FLOOR FLAT, 66 LANCASTER ROAD, LONDON W11 1QR

2 bed 1 bath Apartment

**Standout Features:**

- Newly renovated two-bedroom apartment in Notting Hill
- Open-plan living area with bay windows and built-in shelving
- Modern kitchen with quartz worktops and integrated appliances
- Impressive vaulted ceilings and skylights in the main bedroom
- Private entrance and internal courtyard access
- Underfloor heating and new Vaillant boiler
- SHARE OF FREEHOLD tenure, chain-free sale
- Close proximity to local amenities, shops, and transport links

**Potential Concerns:**

- High crime rate in the area
- Solid brick walls with no insulation (assumed)
- No indications of external garden size or views

---

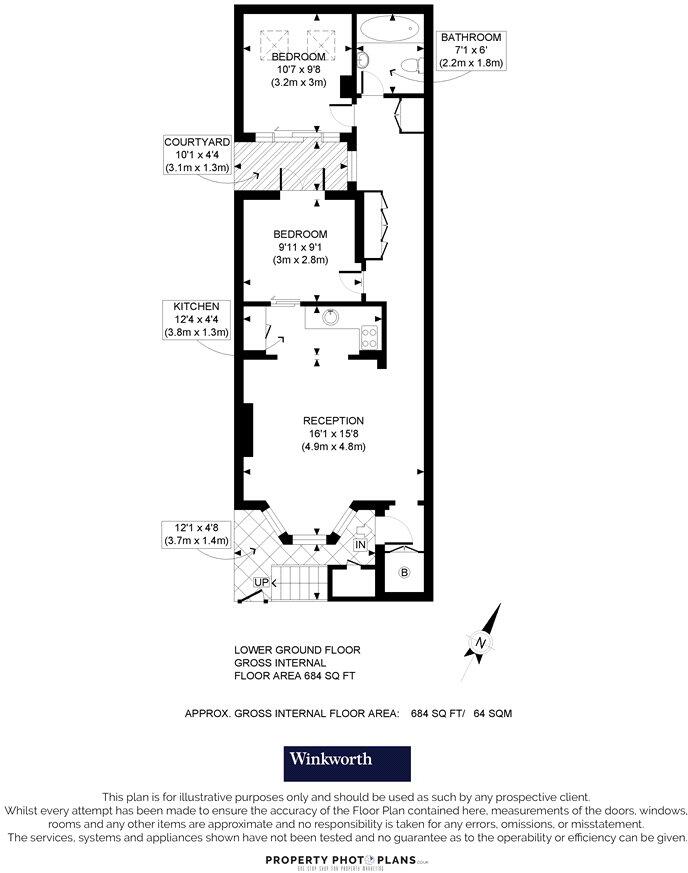
Embrace urban living in this beautifully renovated two-bedroom apartment located in the vibrant heart of Notting Hill. With 684 sq. ft. of stylishly designed living space, the open-plan reception area features large bay windows that flood the rooms with natural light, creating an inviting atmosphere. The contemporary kitchen is equipped with high-end finishes and complemented by impressive vaulted ceilings in the principal bedroom, enhancing the overall charm.

Take advantage of the SHARE OF FREEHOLD ownership and enjoy the benefits of underfloor heating, a new boiler, and the exceptional choice of high-quality materials throughout. Positioned just a stone's throw from the bustling shops, bars, and restaurants of Portobello Road, this residence offers both convenience and a true sense of community.

Though the area does have a high crime rate and the building lacks insulation, the apartment's prime location offers significant potential for future growth and desirability. Whether for first-time buyers or investors seeking rental opportunities, this charming flat presents an exclusive lifestyle choice in one of London's most sought-after neighborhoods. Act quickly—properties like this don’t linger on the market for long!

Property Details

Brochure Descriptions

Image Descriptions

Floorplan Description

Rooms

Textual Property Features

Detected Visual Features

EPC Details

Nearby Schools

Nearest Bars And Restaurants

,,,,}

Nearest General Shops

,,}

Nearest Grocery shops

,,}

Nearest Supermarkets

,,}

Nearest Religious buildings

,,}

Nearest Medical buildings

,,,}

Nearest Airports

,}

Nearest Leisure Facilities

,,,,}

Nearest Tourist attractions

,,}

Nearest Train stations

,,,,}

Nearest Bus stations and stops

,,,,}

Nearest Hotels

,,}

Tags

Local Market Stats

AirBnB Data

Similar Properties

Meta

High Res Images

Compatible Images

Low res Images

Thumbnails

Raw Images

High Res Floorplan Images

Compatible Floorplan Images

Low res Floorplan Images

FloorplanImages Thumbnail

Raw Floorplan Images