**Standout Features:**
- Recently refurbished two-bedroom ground flat
- Private patio and off-street parking available
- Excellent transport links to central London (12 minutes to central)
- Part-furnished and ready for occupancy in November 2023
- Low crime rates and affordable council tax
**Potential Concerns:**
- Leasehold property with an average service charge of £1,848
- Solid brick walls with assumed no insulation
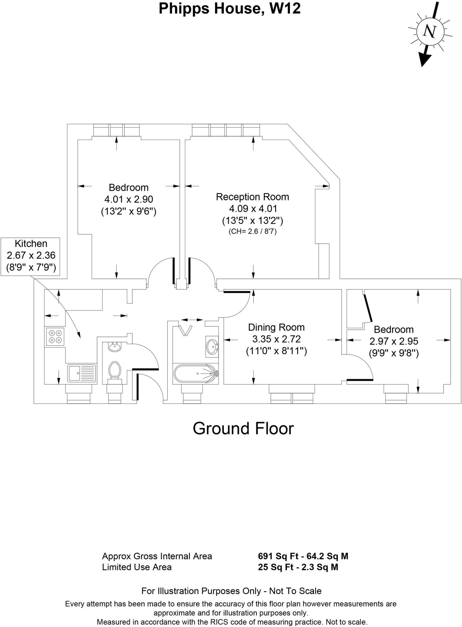
Discover this beautifully updated two-bedroom ground floor flat in the vibrant White City Estate, perfect for first-time buyers or investors. With its modern kitchen, two reception rooms, and a stylishly refurbished bathroom, this apartment offers comfort and contemporary living within a prime location. Enjoy a private patio for outdoor relaxation and the convenience of off-street parking.
Located just a short walk from Wood Lane and White City stations, commuting to central London is a breeze, making it ideal for professionals or families seeking access to the bustling city life. The surrounding area boasts excellent amenities, including the renowned Westfield Shopping Centre and a variety of local shops and cafes. Families will appreciate the nearby schools, with top-rated options just minutes away.
Despite its many advantages, please note the property is leasehold, with a manageable service charge. The solid brick construction may not include insulation, potentially affecting energy efficiency. Don’t miss out on this unique opportunity to own a stylish and conveniently located home in a thriving community. Act fast—properties like this don’t last long!
2 bedroom flat for sale in White City Estate, Shepherds Bush, W12 — £325,000 • 2 bed • 1 bath • 541 ft²
2 bedroom flat for sale in White City Estate, White City, London, W12 — £350,000 • 2 bed • 1 bath • 636 ft²
2 bedroom flat for sale in White City, W12 — £360,000 • 2 bed • 1 bath • 555 ft²
2 bedroom apartment for sale in Bowery Apartments, Fountain Park Way, London, W12 — £1,180,000 • 2 bed • 2 bath • 857 ft²
2 bedroom flat for sale in Pavilion Terrace, Shepherds Bush, W12 — £500,000 • 2 bed • 1 bath • 730 ft²
2 bedroom flat for sale in White City Estate, Shepherds Bush, W12 — £395,000 • 2 bed • 1 bath • 654 ft²










































