Central, characterful and move-in ready for buyers seeking turnkey convenience.
Allocated gated parking space included
Grade II listed — restrictions may complicate alterations
New boiler 2023; underfloor heating on slate flooring
Chain-free; immediate vacant possession
Medium flood risk in local area
Service charge £826.24 per annum (security, cleaning, windows)
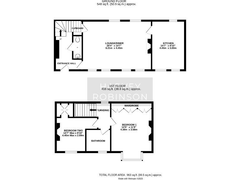
Two double bedrooms, one modern bathroom, 963 sqft
Very small rear plot; town-centre setting
This two-bedroom Victorian mews house sits within a gated, former brewery conversion close to St Neots market square. The current owners have fully modernised the interior while retaining period features such as sash windows, cast-iron fireplaces and ornate wood panelling, creating a comfortable, characterful home ready for immediate occupation.
Practical, low-maintenance upgrades include a new boiler (2023), underfloor heating on slate, NEST thermostat, modern bathroom and integrated kitchen appliances with a water softener and filtration system. The property comes with an allocated gated parking space, off-street access and optional furnished sale — useful for first-time buyers seeking a turnkey option.
Important considerations: the house is Grade II listed, which will impose restrictions and may complicate alterations or maintenance. The development has a modest annual service charge (£826.24) for communal upkeep and security. There is a medium flood risk for the area and local crime levels are higher than average; buyers should make independent enquiries and insurance checks.
Overall, this chain-free, newly renovated mews home offers a rare combination of historical character and contemporary systems in a central, well-connected town-centre location. It suits buyers who value easy access to shops, transport links and a low-movement, finished property, but who are comfortable managing listed-status responsibilities and local risk factors.
3 bedroom semi-detached house for sale in New Street, St. Neots, PE19 — £435,000 • 3 bed • 1 bath • 1505 ft²
2 bedroom semi-detached house for sale in Bedford Street, St. Neots, PE19 — £315,000 • 2 bed • 1 bath • 796 ft²
3 bedroom town house for sale in New Street, St. Neots, PE19 — £300,000 • 3 bed • 1 bath • 760 ft²
3 bedroom terraced house for sale in River Terrace, St. Neots, PE19 — £450,000 • 3 bed • 1 bath • 1165 ft²
3 bedroom end of terrace house for sale in New Street, St Neots, PE19 — £375,000 • 3 bed • 2 bath • 1215 ft²
3 bedroom terraced house for sale in New Street, St. Neots, Cambridgeshire, PE19 — £300,000 • 3 bed • 1 bath • 875 ft²










































































































