**Standout Features:**
- Charming 2-bedroom Victorian terraced house
- Beautifully maintained rear garden with fruit trees
- Prime location: short walk to Gorleston High Street and local amenities
- New gas boiler, PVCu double glazing, and gas central heating
- Well-presented interiors with a lovely kitchen and dining area
**Potential Concerns:**
- Average-sized rooms may not suit all preferences
- Property constructed without insulation
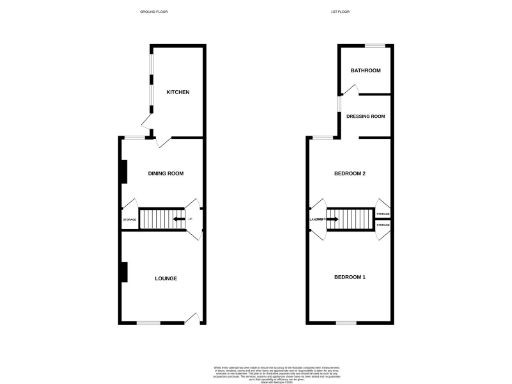
This well-presented Victorian terraced house is an excellent first-time purchase, boasting two spacious double bedrooms plus a dressing room and a conveniently accessed bathroom. Step outside to a beautifully landscaped rear garden, perfect for enjoying quiet evenings or family gatherings. The property features a newly installed Worcester gas boiler, PVCu double glazing, and gas central heating, ensuring comfort and efficiency throughout the year.
Located just a short stroll from the bustling Gorleston High Street, you will enjoy easy access to shopping, healthcare, and leisure facilities. Families will appreciate the availability of several local schools rated 'Good' by Ofsted, ensuring solid educational options for children. While the average room size and lack of insulation might present some consideration for future renovations, this home offers a wonderful opportunity to create a personal touch and capitalize on its potential. Don’t miss out on this charming property that combines comfort, convenience, and a sense of community—act quickly, as opportunities like this are rare!
2 bedroom terraced house for sale in Trafalgar Road East, Gorleston, NR31 — £110,000 • 2 bed • 1 bath
3 bedroom terraced house for sale in Suffield Road, Gorleston, Great Yarmouth, NR31 — £175,000 • 3 bed • 2 bath • 819 ft²
2 bedroom terraced house for sale in Burnt Lane, Gorleston, Great Yarmouth, NR31 — £170,000 • 2 bed • 2 bath • 808 ft²
2 bedroom semi-detached house for sale in Roslyn Road, Gorleston, NR31 — £225,000 • 2 bed • 1 bath • 631 ft²
2 bedroom terraced house for sale in Colomb Road, Gorleston, NR31 — £170,000 • 2 bed • 1 bath
2 bedroom terraced house for sale in Church Road, Gorleston, NR31 — £120,000 • 2 bed • 1 bath • 776 ft²














































































