**Standout Features:**
- 5 spacious en-suite bedrooms
- Stylish modern fitted kitchen with separate utility area
- Large communal living space for relaxation
- Prime location near Nautical College
- Exceptional 12% investment yield
- Freehold tenure with council tax band C
- EPC Rating: C
**Property Summary:**
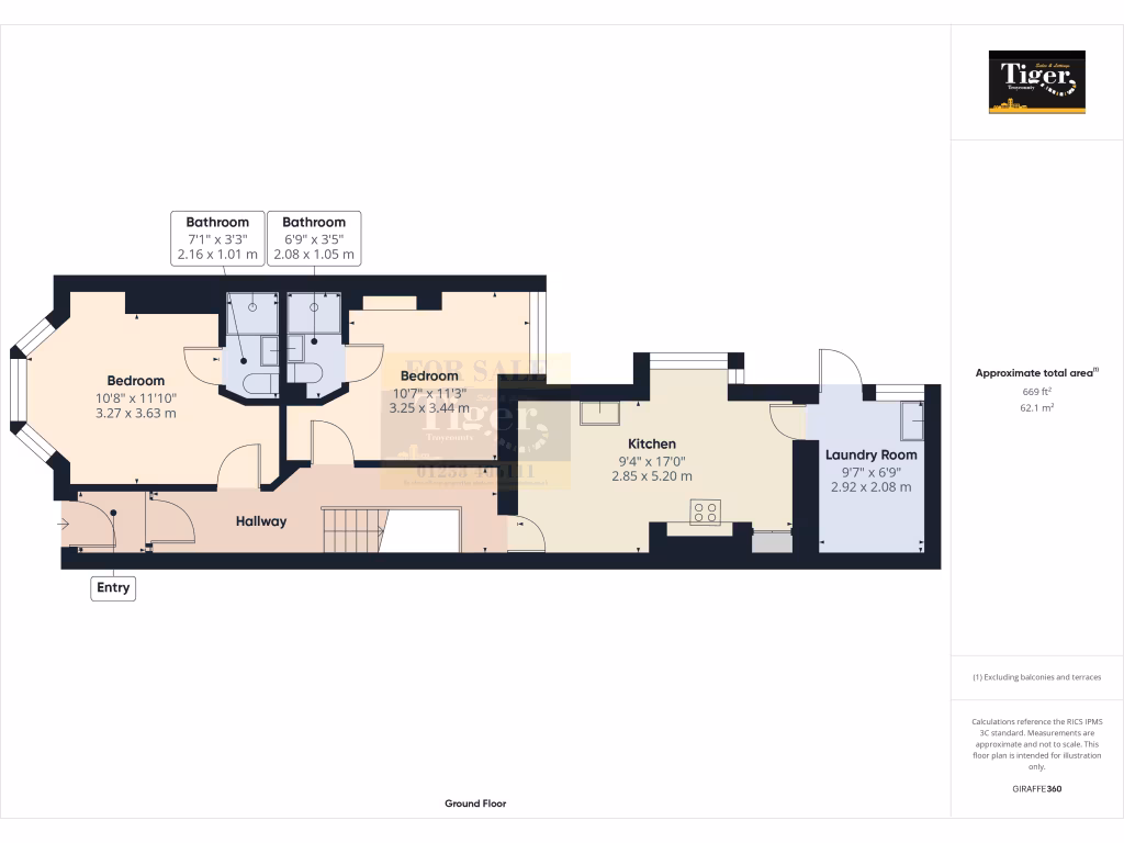
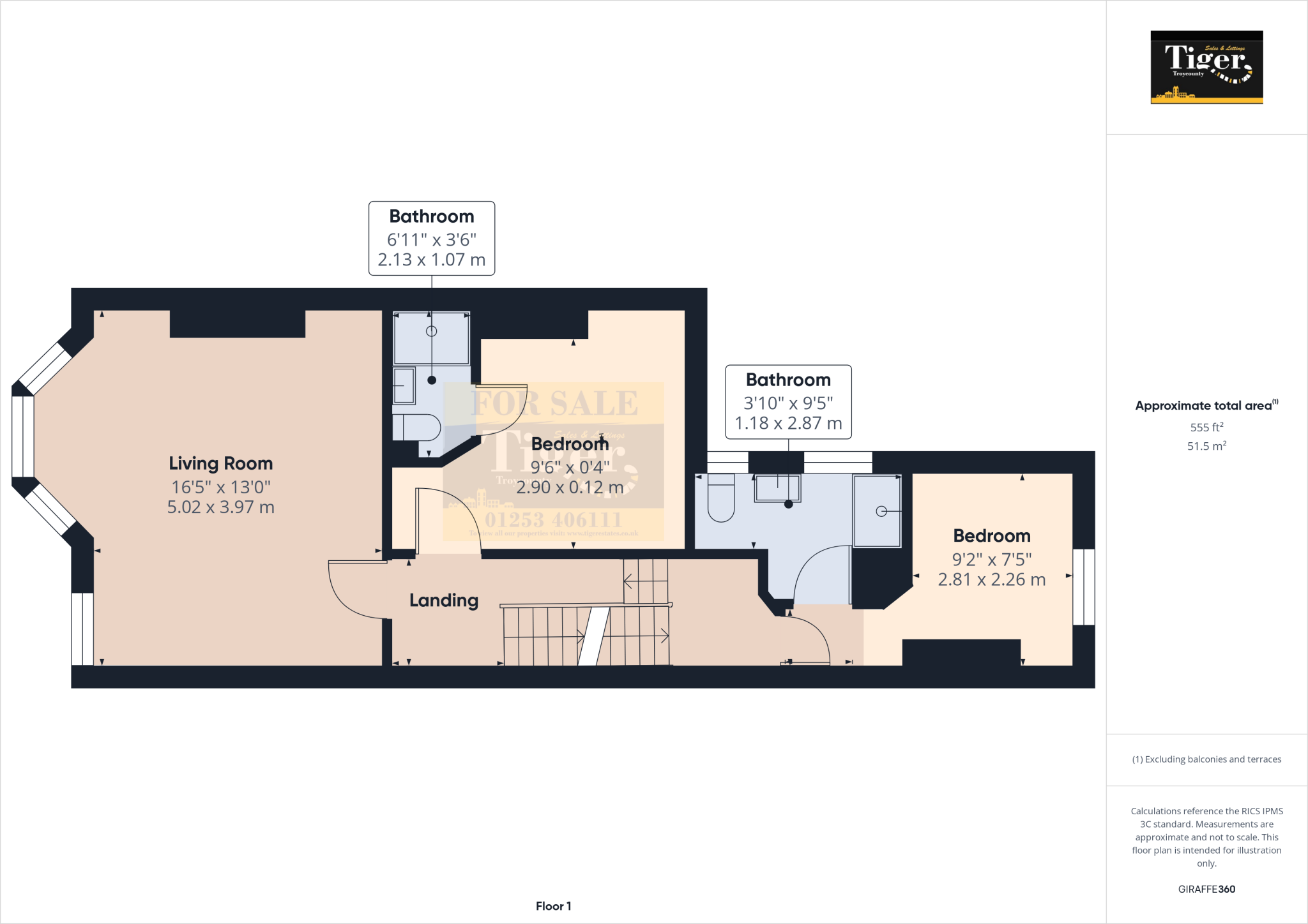
This modern, well-maintained 5-bedroom House in Multiple Occupation (HMO) is an outstanding investment opportunity, boasting a strong rental demand strategically located near Nautical College. The property is spread across three floors, featuring five generously sized en-suite bedrooms, each enhancing tenant privacy and comfort. A stylish fitted kitchen and convenient utility area add practicality, while an expansive communal living space promotes social interaction, making it ideal for student living.
Currently generating about £2,100 per month, this property promises an annual gross income of around £25,000, translating to an attractive 12% yield—perfect for investors looking for steady returns. Be aware that while the area has strong amenities, it is classified as having a very high crime rate and significant levels of deprivation; this context might affect potential tenant demographics. Despite this, the property offers excellent value in a competitive rental market. This exceptional HMO opportunity won’t last long; secure your future investment and capitalize on the consistent demand for quality student living today!
7 bedroom terraced house for sale in Bold Street, Fleetwood, FY7 — £330,000 • 7 bed • 7 bath
House of multiple occupation for sale in London Street, Fleetwood, Lancashire, FY7 6EU, FY7 — £120,000 • 1 bed • 1 bath
5 bedroom house of multiple occupation for sale in Burlington Road, Blackpool, FY4 — £155,000 • 5 bed • 4 bath • 2519 ft²
3 bedroom terraced house for sale in Woolman Road, Blackpool, FY1 4AH, FY1 — £79,950 • 3 bed • 1 bath • 1033 ft²
7 bedroom terraced house for sale in North Albert Street, Fleetwood, Lancashire, FY7 — £190,000 • 7 bed • 5 bath • 313 ft²
7 bedroom house of multiple occupation for sale in London Street, Fleetwood, FY7 — £120,000 • 7 bed • 2 bath • 2196 ft²






























































































































