SO20 6LY - 4 bedroom detached house for sale in Houghton, Stockbridge,…

View on Property Piper

4 bedroom detached house for sale in Houghton, Stockbridge, Hampshire, SO20

Summary - MARTINS HOUGHTON STOCKBRIDGE SO20 6LY

4 bed 3 bath Detached

**Standout Features:**
- **Property Type:** Detached 1930s family home
- **Accommodation:** 4 bedrooms, 3 bathrooms
- **Renovation Opportunity:** Requires updating
- **Planning Permission:** For a new contemporary house and a two-storey extension
- **Garage:** Large double garage with potential for conversion
- **Garden:** Compact and manageable outdoor space
- **Location:** Quiet edge of Houghton village, close to outdoor activities and amenities
- **Driveway:** Spacious, providing ample parking
- **Postcode:** SO20 6LY, known for low crime and fast broadband

This charming 1930s detached home offers an exceptional opportunity for renovation and expansion within a serene village setting. With approved planning for a contemporary new build on the side garden and a two-storey extension to the existing house, the potential for modern family living is considerable. The current layout could accommodate a large open-plan living area and four spacious bedrooms, including a master suite with an en-suite bath, perfect for comfort and privacy.

Situated at the edge of Houghton, this property brings the tranquility of rural life while being close to excellent local amenities and stunning walks along the River Test. The double garage and large driveway add practical value, making it easy to envision both family gatherings and the golf cart commute to the nearby countryside.

While the property needs renovation, it is an exciting blank canvas for families, investors, or those seeking a project in a desirable locale. Don’t miss the chance to create your dream home in this picturesque village. Interested buyers would be wise to act quickly, as opportunities like this in such a sought-after area don’t last long!

Property Details

Brochure Descriptions

Image Descriptions

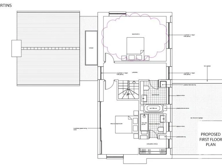
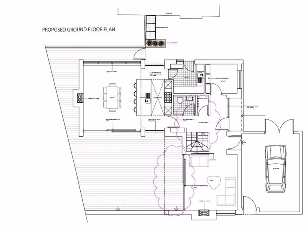
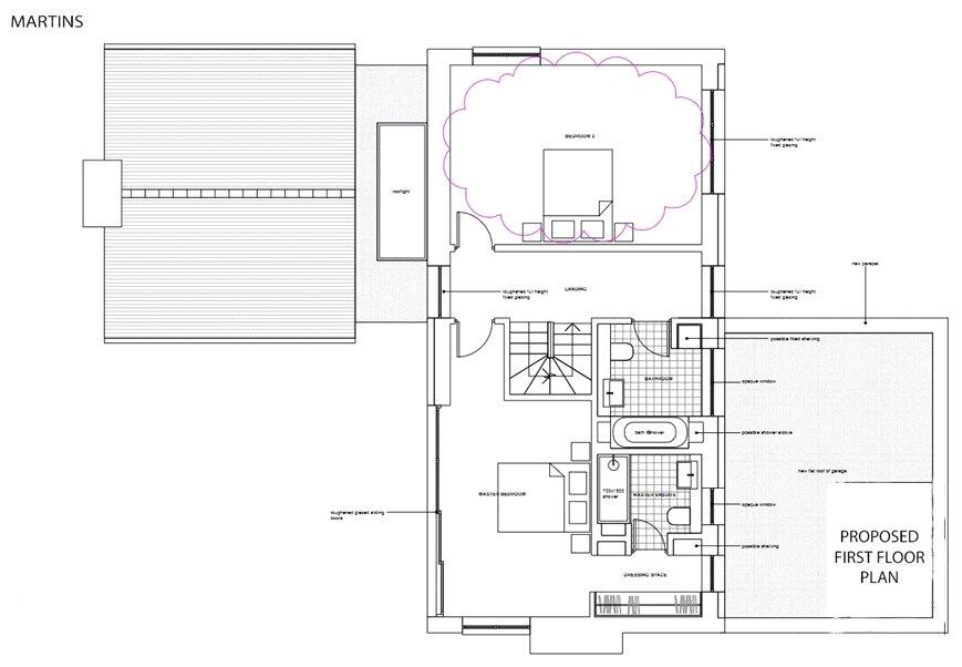
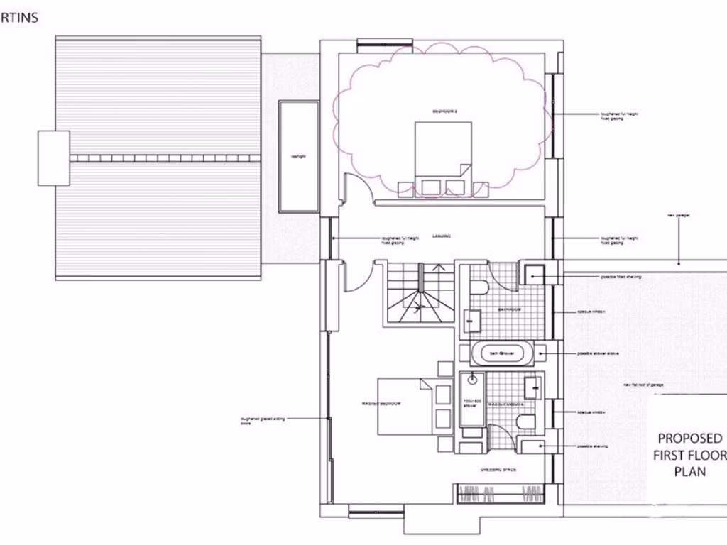
Floorplan Description

Rooms

Textual Property Features

Detected Visual Features

EPC Details

Nearby Schools

Nearest Bars And Restaurants

,,,,}

Nearest General Shops

,,}

Nearest Grocery shops

,,}

Nearest Supermarkets

,,}

Nearest Religious buildings

,,}

Nearest Medical buildings

,,,}

Nearest Airports

}

Nearest Leisure Facilities

,,,,}

Nearest Tourist attractions

,,}

Nearest Train stations

,,,,}

Nearest Bus stations and stops

,,,,}

Nearest Hotels

,,}

Tags

Local Market Stats

AirBnB Data

Similar Properties

Meta

High Res Images

Compatible Images

Low res Images

Thumbnails

Raw Images

High Res Floorplan Images

Compatible Floorplan Images

Low res Floorplan Images

FloorplanImages Thumbnail

Raw Floorplan Images