TN8 7AJ - 5 bedroom detached house for sale in Tonbridge Road, Bough…

View on Property Piper

5 bedroom detached house for sale in Tonbridge Road, Bough Beech, Edenbridge, TN8

Summary - SOMERDEN OAST, TONBRIDGE ROAD TN8 7AJ

5 bed 3 bath Detached

**Standout Features:**
- Grade II Listed single roundel Kentish Oast House dating back to 1500
- Five spacious bedrooms and three bathrooms
- Beautifully landscaped gardens with a serene pond
- Multiple period features including exposed beams and ornate fireplaces
- Detached double garage, stable block, and open barn/storage area
- Excellent mobile signal and affluent rural village location

**Potential Downsides:**
- Listed status may pose renovation challenges
- Broadband speeds are slow
- Higher council tax band

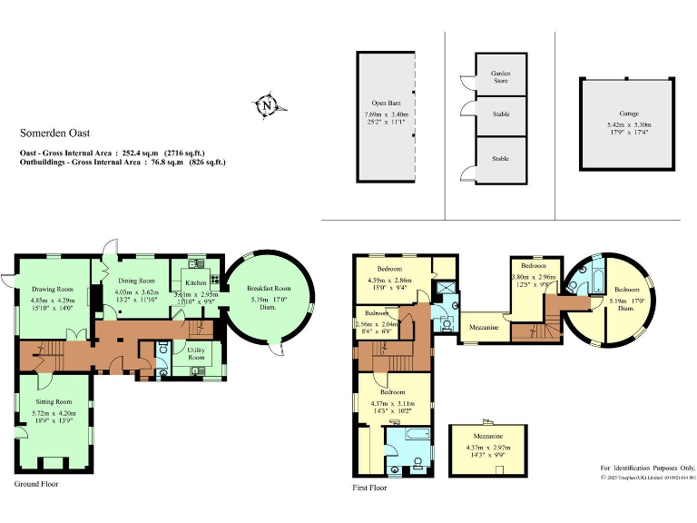
Nestled in the tranquil Kent countryside, Somerden Oast is a quintessential Grade II listed oast house that offers an enchanting blend of historical charm and spacious living. With five well-proportioned bedrooms and three bathrooms, this property is ideal for families seeking comfort and room to grow. Step inside to discover a wealth of character—from the elegantly appointed drawing room with its ornate fireplace to the inviting country kitchen that connects to a delightful breakfast room featuring picturesque garden views.

The beautifully landscaped gardens, complete with a pond, provide a serene outdoor space perfect for leisurely family activities or tranquil mornings with a book. With generous outbuildings, including a detached double garage and stable block, there’s plenty of potential for hobbies or even further development. The property is situated in a charming rural village, close to local amenities and reputable schools, making it a fantastic opportunity for families or those seeking a peaceful retreat from the hustle and bustle. However, as a listed building, modifications may require additional considerations, and potential buyers should note the slower broadband speeds. Experience the unique charm and inviting peace of Somerden Oast before it’s gone!

Property Details

Brochure Descriptions

Image Descriptions

Floorplan Description

Rooms

Textual Property Features

Detected Visual Features

Nearby Schools

Nearest Bars And Restaurants

,,,,}

Nearest General Shops

,,}

Nearest Grocery shops

,,}

Nearest Supermarkets

,,}

Nearest Religious buildings

,,}

Nearest Medical buildings

,,,}

Nearest Airports

}

Nearest Leisure Facilities

,,,,}

Nearest Tourist attractions

,,}

Nearest Train stations

,,,,}

Nearest Bus stations and stops

,,,,}

Nearest Hotels

,,}

Tags

Local Market Stats

AirBnB Data

Similar Properties

Meta

High Res Images

Compatible Images

Low res Images

Thumbnails

Raw Images

High Res Floorplan Images

Compatible Floorplan Images

Low res Floorplan Images

FloorplanImages Thumbnail

Raw Floorplan Images