Period pub with strong roadside profile — ideal for investor refurbishment or conversion..
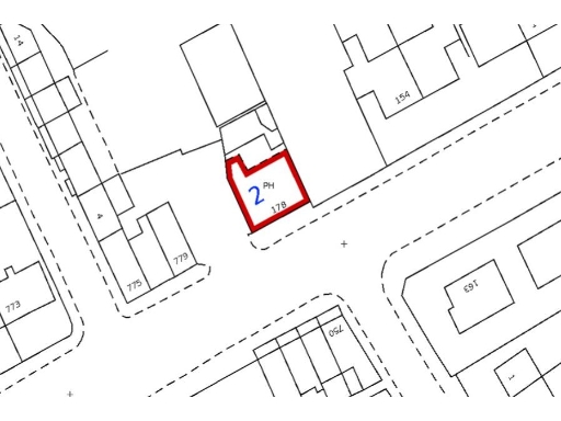
Detached Victorian red-brick pub on busy A58 corner location
Currently closed; requires repair and updating throughout
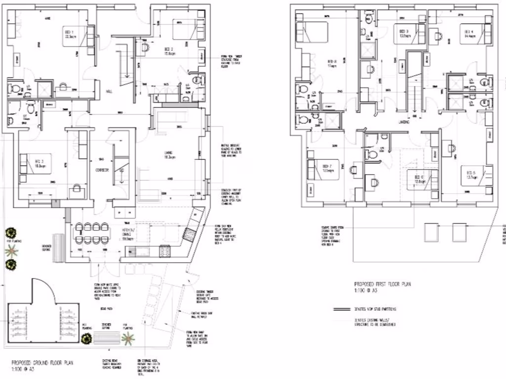
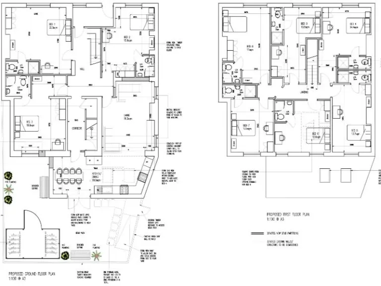
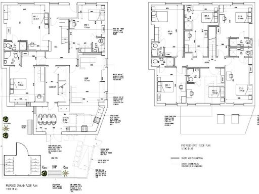
Ground-floor bar, central servery, raised games area and cellar
First-floor living: three bedrooms, lounge, kitchen and bathroom
Small rear yard (former beer garden); side car park not included
Freehold sale at £250,000 with alternative-use potential
Very low local crime, excellent mobile signal and fast broadband
Conversion or change of use subject to planning and refurbishment costs
This detached Victorian red-brick pub occupies a prominent corner plot fronting the busy A58 in a densely populated Littleborough neighbourhood. Arranged over two storeys under a slate roof, the ground floor offers a multi-section bar with central servery, open fire, raised games area and cellar. First-floor living includes three bedrooms, a lounge, kitchen and bathroom. The side car park is not included in the sale; a small rear yard served as a beer garden.
Offered freehold at £250,000, the building is currently closed and presents clear alternative-use and refurbishment potential for an investor or operator prepared to renovate. Services appear adequate (excellent mobile signal, fast broadband) and the area has very low crime and average deprivation, supporting reuse as a pub, restaurant, or conversion subject to necessary consents.
Buyers should note material practical points: the property is vacant and will require repair and updating throughout; the adjacent car park is not owned and may limit customer parking; any change of use will need planning approval. Nearby amenities and several good primary and secondary schools add local convenience for staff and potential residents if converted.
This is a hands-on opportunity for an investor or small operator who values period character, a visible roadside position and scope to add value through refurbishment or repurposing. The price reflects the building’s closed condition and the work required to bring it back to commercial or residential use.
Pub for sale in NW-524621 - Jacks House, 122 Burnley Road, Todmorden OL14 5JT, OL14 — £260,000 • 1 bed • 1 bath
Commercial property for sale in Manchester Road, Oldham, OL8 — £350,000 • 1 bed • 1 bath
Commercial property for sale in FOR SALE - The Former Plough Inn, 475 Oldham Road, Rochdale, OL16 — £380,000 • 1 bed • 1 bath
5 bedroom end of terrace house for sale in The Staff of Life Inn, Burnley Road, Todmorden, West Yorkshire, OL14 — £380,000 • 5 bed • 4 bath
Pub for sale in Lees Road, Oldham, Greater Manchester, OL4 3AF, OL4 — £280,000 • 1 bed • 1 bath
Pub for sale in NW-222846 - Fair View Inn, 78 Broad Lane, Rochdale OL16 4QQ, OL16 — £950,000 • 1 bed • 1 bath • 8277 ft²


























