**Standout Features:**
- Versatile light industrial unit in Royston, Hertfordshire
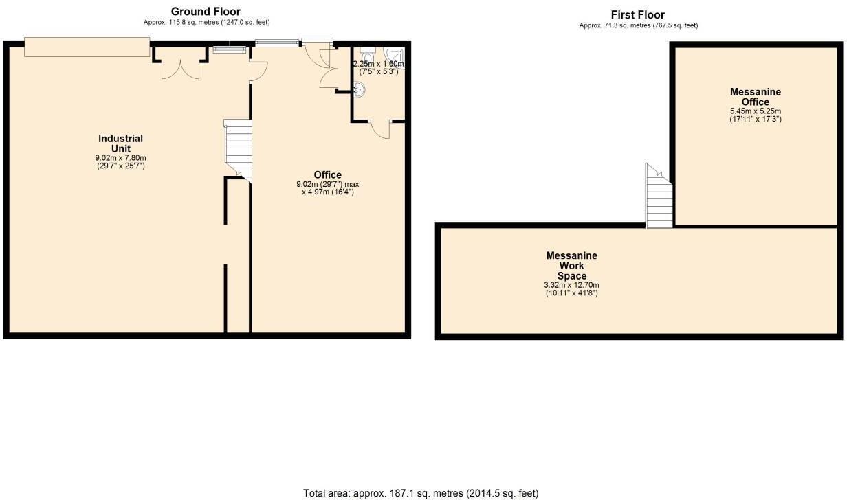
- Spacious 1-bedroom property with 1247 square feet of usable space
- High ceilings, providing a modern industrial feel
- Fitted shower room for added convenience
- Manual high-level roller door for easy access
- Fully tenanted until September 2030 with 100% small business rate relief potential
- Includes a garage for parking
- Well-connected, with easy access to the A505
**Potential Concerns:**
- 7 years left on the lease may limit mortgage lender options
- Average broadband speeds
- Annual service and insurance charge of £1,150
Discover a unique opportunity in this large light industrial unit, ideal for investors or those looking to establish a workspace with potential for future growth. Spread across two levels, this property features a segregated office space and ample storage with a striking modern industrial design, characterized by high ceilings and a spacious layout. With its prime Royston location, you'll benefit from nearby amenities and a range of reputable schools that cater to families.
However, keep in mind the remaining lease term may pose challenges for mortgage acquisition. Priced at £325,000, this gem won’t last long in a comfortable suburban setting with excellent mobile coverage. Imagine the potential for your own business or as a rental investment—schedule your appointment today to explore this versatile space.
Light industrial facility for sale in The Power House, Lumen Road , Royston, SG8 — £295,000 • 1 bed • 1 bath • 2626 ft²
Light industrial facility for sale in 11 Woodside Industrial Estate, Works Road, Letchworth, Hertfordshire, SG6 1LA, SG6 — £275,000 • 1 bed • 1 bath • 1611 ft²
Light industrial facility for sale in 17 Jubilee Trade Centre, Jubilee Road, Letchworth, Hertfordshire, SG6 1SP, SG6 — £375,000 • 1 bed • 1 bath • 3115 ft²
Restaurant for sale in Kneesworth Street, Royston, , SG8 — £350,000 • 1 bed • 1 bath • 1450 ft²
Light industrial facility for sale in 2/3 Amor Way, Letchworth, Hertfordshire, SG6 1UG, SG6 — £1,795,000 • 1 bed • 1 bath • 9398 ft²
Light industrial facility for sale in Unit 8 Woodside Ind Estate, Works Road, Letchworth, Hertfordshire, SG6 1LA, SG6 — £550,000 • 1 bed • 1 bath • 3383 ft²














































