DL12 8XT - Industrial park for sale in Carrosserie House, Harmire Ente…
View on Property Piper
Industrial park for sale in Carrosserie House, Harmire Enterprise Park, Barnard Castle, County Durham, DL12
Property Details
- Price: £875000
- Bedrooms: 1
- Bathrooms: 1
- Property Type: undefined
- Property SubType: undefined
Brochure Descriptions
- This is a modern, industrial-style commercial property comprised of multiple units (1-5) within Carrosserie House in Barnard Castle. The building is constructed from metal cladding and brick, with large windows at the entrance and high bay access suitable for commercial vehicles. The property features a paved parking area with multiple spaces, well-maintained landscaping, and a large open space around the units. Based on the image, the property size appears large, suitable for business or industrial use, with substantial floor space and high ceilings.
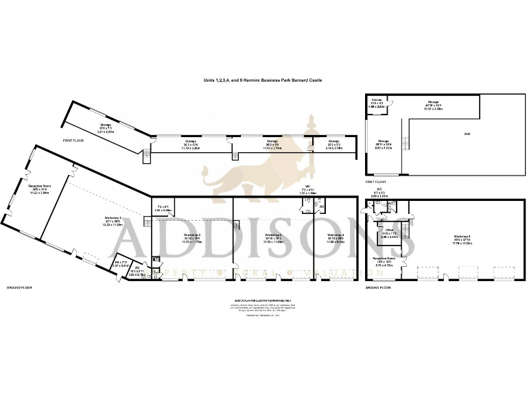
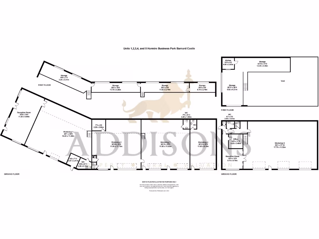
- The property consists of five connected commercial/industrial units situated in a business park setting, each offering a mixture of large workshops and smaller storage areas. The ground floor includes multiple workshops of varying sizes, substantial reception space, and numerous WCs. The first floor appears to consist largely of storage rooms and a kitchen in one of the units. Based on the floor plan, the units together comprise a large industrial/commercial building well-suited for business, warehousing, or light manufacturing use. There are no views depicted, given the commercial context and the layout drawings presented.
- This property comprises a series of modern industrial units on a business park, featuring flexible workshops/showrooms with full height roller shutters, solid construction, and brick elevations with metal cladding. The units appear to be well maintained, with wide vehicular access and extensive paved yard areas suitable for parking or loading. Unit sizes are large and functional, suitable for a range of commercial or storage uses. There is clear external yard space and no significant landscaping or scenic views noted; the outlook is onto the industrial estate. Overall, the property offers substantial floor space and mezzanine areas ideal for business tenants.
Image Descriptions
- commercial or industrial building modern industrial
- commercial unit industrial
Floorplan Description
- Business units with workshops, storage, and office space in Barnard Castle.
Rooms
- Reception Room:
- Workshop 1:
- Workshop 2:
- Workshop 3:
- Workshop 4:
- Workshop 5:
- Office:
- Kitchen:
- Storage:
Textual Property Features
Detected Visual Features
- commercial
- industrial
- modern
- warehouse
- high ceiling
- commercial unit
- roller doors
- brickwork
- metal cladding
- parking area
Nearby Schools
- Barnard Castle School
- Staindrop CofE (Controlled) Primary School
- Green Lane Church of England Primary School
- Teesdale School and Sixth Form
- St Mary's Catholic Primary School, Barnard Castle
- Montalbo Nursery & Primary School
- Staindrop Academy
- Cockfield Primary School
- Butterknowle Primary School
- Bowes Hutchinson's CofE (Aided) School
- Cotherstone Primary School
Nearest General Shops
- Id: 3839021754
- Tags:
- Addr:
- Name: Decor Carpet Centre
- Shop: yes
- TagsNormalized:
- Lat: 54.5472433
- Lon: -1.9192674
- FullGeoHash: gcwwk642tz4s
- PartitionGeoHash: gcww
- Images:
- FoodStandards: null
- Distance: 790.1
,- Id: 380061510
- Tags:
- Addr:
- City: Barnard Castle
- Street: Harmire Road
- Building: yes
- Name: Stephen Maude
- Phone: +44 1833 637341
- Shop: car_repair
- TagsNormalized:
- Lat: 54.5538247
- Lon: -1.9183609
- FullGeoHash: gcwwk75p4fn2
- PartitionGeoHash: gcww
- Images:
- FoodStandards: null
- Distance: 196.3
,- Id: 3834076569
- Tags:
- Addr:
- City: Barnard Castle
- Postcode: DL12 8QN
- Street: Harmire Road
- Name: Barnard Castle golf Shop
- Phone: +44 1833 631980
- Shop: sports
- TagsNormalized:
- Lat: 54.5556716
- Lon: -1.9211075
- FullGeoHash: gcwwk791ffq3
- PartitionGeoHash: gcww
- Images:
- FoodStandards: null
- Distance: 158.8
}
Nearest Religious buildings
- Id: 380548172
- Tags:
- Addr:
- Postcode: DL12 8PW
- Street: Scar Top
- Amenity: place_of_worship
- Building: yes
- Circuit: Barnard Castle and Teesdale
- Denomination: methodist
- Fhrs:
- Name: Barnard Castle Methodist Church
- Religion: christian
- Source:
- Website: http://www.teesdalemethodists.co.uk/barnard-castle.html
- TagsNormalized:
- place of worship
- methodist
- church
- christian
- Lat: 54.5444936
- Lon: -1.9254368
- FullGeoHash: gcwwk1tbwnd6
- PartitionGeoHash: gcww
- Images:
- FoodStandards:
- Id: 304414
- FHRSID: 304414
- LocalAuthorityBusinessID: 4546
- BusinessName: Methodist Church - Pathway
- BusinessType: Other catering premises
- BusinessTypeID: 7841
- AddressLine1: Middleton Methodist Church
- AddressLine2: Horsemarket
- AddressLine3: Middleton-In-Teesdale
- AddressLine4: Barnard Castle
- PostCode: DL12 8PW
- RatingValue: 5
- RatingKey: fhrs_5_en-GB
- RatingDate: 2019-02-26
- LocalAuthorityCode: 706
- LocalAuthorityName: Durham
- LocalAuthorityWebSite: http://www.durham.gov.uk
- LocalAuthorityEmailAddress: ehcp@durham.gov.uk
- Scores:
- Hygiene: 0
- Structural: 0
- ConfidenceInManagement: 5
- NewRatingPending: false
- Geocode:
- Longitude: -1.92577200000000
- Latitude: 54.54423000000000
- Distance: 1116.8
,- Id: 380569517
- Tags:
- Amenity: place_of_worship
- Building: chapel
- Name: Cemetery chapel
- Religion: christian
- Wikidata: Q26513551
- TagsNormalized:
- place of worship
- chapel
- cemetery
- christian
- church
- Lat: 54.5456499
- Lon: -1.9180358
- FullGeoHash: gcwwk3er6w0g
- PartitionGeoHash: gcww
- Images:
- FoodStandards: null
- Distance: 979.3
,- Id: 3839076366
- Tags:
- Addr:
- City: Barnard Castle
- Street: Galgate
- Amenity: place_of_worship
- Denomination: pentecostal
- Name: Influence Church
- Religion: christian
- Website: http://www.influencechurch.co.uk/barnardcastle/
- TagsNormalized:
- place of worship
- pentecostal
- church
- christian
- Lat: 54.5460017
- Lon: -1.92265
- FullGeoHash: gcwwk1zcrp8q
- PartitionGeoHash: gcww
- Images:
- FoodStandards: null
- Distance: 921.1
}
Nearest Leisure Facilities
- Id: 380583117
- Tags:
- TagsNormalized:
- Lat: 54.5490098
- Lon: -1.918455
- FullGeoHash: gcwwk6750b2q
- PartitionGeoHash: gcww
- Images:
- FoodStandards: null
- Distance: 611.1
,- Id: 117907277
- Tags:
- Addr:
- City: Barnard Castle
- Postcode: DL12 8QN
- Street: Harmire Road
- Leisure: golf_course
- Name: Barnard Castle Golf Course
- Phone: +44 1833 638355
- Website: https://www.barnardcastlegolfclub.org/
- TagsNormalized:
- Lat: 54.5572957
- Lon: -1.9283921
- FullGeoHash: gcwwk5gg31n9
- PartitionGeoHash: gcww
- Images:
- FoodStandards: null
- Distance: 568.3
,- Id: 380060553
- Tags:
- TagsNormalized:
- Lat: 54.5561267
- Lon: -1.9165279
- FullGeoHash: gcwwk7skmxjh
- PartitionGeoHash: gcww
- Images:
- FoodStandards: null
- Distance: 372.7
,- Id: 1327114235
- Tags:
- TagsNormalized:
- Lat: 54.5518101
- Lon: -1.92286
- FullGeoHash: gcwwk4zg647w
- PartitionGeoHash: gcww
- Images:
- FoodStandards: null
- Distance: 288.9
,- Id: 380060554
- Tags:
- TagsNormalized:
- Lat: 54.555769
- Lon: -1.9181942
- FullGeoHash: gcwwk7e4qu6w
- PartitionGeoHash: gcww
- Images:
- FoodStandards: null
- Distance: 262.8
}
Nearest Tourist attractions
- Id: 274810567
- Tags:
- HE_ref: 1007505
- Building: yes
- Designation: scheduled_monument
- Historic: castle
- Listed_status: Grade I
- Name: Barnard Castle
- Ruins: yes
- Tourism: attraction
- Website: https://www.english-heritage.org.uk/visit/places/barnard-castle/
- Wikidata: Q17644043
- Wikipedia: en:Barnard Castle (castle)
- TagsNormalized:
- Lat: 54.5433304
- Lon: -1.9263539
- FullGeoHash: gcwwk1m3btwr
- PartitionGeoHash: gcww
- Images:
- FoodStandards: null
- Distance: 1256.8
,- Id: 1447463315
- Tags:
- Addr:
- City: Barnard Castle
- Housenumber: 85
- Postcode: DL12 8ES
- Street: Galgate
- Fhrs:
- Name: Homelands Guest House
- Source:
- Tourism: guest_house
- TagsNormalized:
- Lat: 54.5465731
- Lon: -1.9201129
- FullGeoHash: gcwwk3cuf4hn
- PartitionGeoHash: gcww
- Images:
- FoodStandards:
- Id: 955629
- FHRSID: 955629
- LocalAuthorityBusinessID: 309410
- BusinessName: Homelands Guest House
- BusinessType: Hotel/bed & breakfast/guest house
- BusinessTypeID: 7842
- AddressLine1: null
- AddressLine2: 85 Galgate
- AddressLine3: null
- AddressLine4: Barnard Castle
- PostCode: DL12 8ES
- RatingValue: 5
- RatingKey: fhrs_5_en-GB
- RatingDate: 2019-06-17
- LocalAuthorityCode: 706
- LocalAuthorityName: Durham
- LocalAuthorityWebSite: http://www.durham.gov.uk
- LocalAuthorityEmailAddress: ehcp@durham.gov.uk
- Scores:
- Hygiene: 0
- Structural: 0
- ConfidenceInManagement: 5
- NewRatingPending: false
- Geocode:
- Longitude: -1.91972400000000
- Latitude: 54.54663500000000
- Distance: 857
,- Id: 9487943920
- Tags:
- Fixme: Confirm location
- Operator: The Hub
- Tourism: hostel
- Website: https://www.tcrhub.co.uk/accommodation-camping/
- TagsNormalized:
- Lat: 54.5536936
- Lon: -1.908837
- FullGeoHash: gcwwke4n2cef
- PartitionGeoHash: gcww
- Images:
- FoodStandards: null
- Distance: 807.1
}
Nearest Train stations
- Id: 102208484
- Tags:
- Name: Bishop Auckland
- Naptan:
- Network: National Rail
- Public_transport: station
- Railway: station
- Ref:
- Train: yes
- Wikidata: Q2347286
- Wikipedia: en:Bishop Auckland railway station
- TagsNormalized:
- Lat: 54.6572212
- Lon: -1.6779534
- FullGeoHash: gcwycy41kue2
- PartitionGeoHash: gcwy
- Images:
- FoodStandards: null
- Distance: 19410.3
,- Id: 265975371
- Tags:
- Name: Frosterley
- Naptan:
- Public_transport: station
- Railway: station
- Train: yes
- Usage: tourism
- Wikidata: Q106437999
- TagsNormalized:
- Lat: 54.7269224
- Lon: -1.9640609
- FullGeoHash: gcwx769z6jf0
- PartitionGeoHash: gcwx
- Images:
- FoodStandards: null
- Distance: 19396.5
,- Id: 265975358
- Tags:
- Name: Wolsingham
- Naptan:
- Public_transport: station
- Railway: station
- Train: yes
- Usage: tourism
- TagsNormalized:
- Lat: 54.7262139
- Lon: -1.8843934
- FullGeoHash: gcwxm4eg63wm
- PartitionGeoHash: gcwx
- Images:
- FoodStandards: null
- Distance: 19268.7
,- Id: 1001411887
- Tags:
- Name: Bishop Auckland West
- Naptan:
- Public_transport: station
- Railway: station
- Train: yes
- Usage: tourism
- TagsNormalized:
- Lat: 54.657132
- Lon: -1.6816499
- FullGeoHash: gcwycwp2yeyu
- PartitionGeoHash: gcwy
- Images:
- FoodStandards: null
- Distance: 19212.7
,- Id: 6272187613
- Tags:
- Name: Witton-le-Wear
- Network: Weardale Railway
- Operator: Weardale Railway
- Public_transport: station
- Railway: station
- Train: yes
- Usage: tourism
- TagsNormalized:
- Lat: 54.6763739
- Lon: -1.766657
- FullGeoHash: gcwxpc98cyv4
- PartitionGeoHash: gcwx
- Images:
- FoodStandards: null
- Distance: 16839.7
}
Nearest Hotels
- Id: 1141965286
- Tags:
- Addr:
- Postcode: DL12 9SE
- Street: The Street
- Alt_name: The Morritt Arms
- Amenity: pub
- Description: AA 4 star Hotel
- Fhrs:
- Name: The Morritt Hotel & Garage Spa
- Phone: +44 1833 627232
- Source: local_knowledge
- Tourism: hotel
- Website: https://www.themorritt.co.uk/
- Wikidata: Q26414855
- TagsNormalized:
- bar
- pub
- garage
- hotel
- spa
- tourism
- Lat: 54.5148281
- Lon: -1.8703198
- FullGeoHash: gcwwjkn5fks2
- PartitionGeoHash: gcww
- Images:
- FoodStandards: null
- Distance: 5480.7
,- Id: 1716291852
- Tags:
- Addr:
- City: Barnard Castle
- Housenumber: 17
- Postcode: DL12 8NF
- Street: Market Place
- Amenity: pub
- Contact:
- Facebook: Rabyarmsbarnardcastle
- Fhrs:
- Image: https://www.geograph.org.uk/photo/252520
- Name: The Raby Arms Hotel
- Phone: +44 7541 960859
- Source:
- TagsNormalized:
- Lat: 54.5427258
- Lon: -1.9234693
- FullGeoHash: gcwwk1pq7vj2
- PartitionGeoHash: gcww
- Images:
- FoodStandards: null
- Distance: 1288.8
,- Id: 3839137822
- Tags:
- Accommodation: yes
- Addr:
- City: Barnard Castle
- Housenumber: 12
- Postcode: DL12 8BG
- Street: Galgate
- Amenity: pub
- Contact:
- Facebook: TheCommercialHotelBC
- Fhrs:
- Image: https://www.geograph.org.uk/photo/2538055
- Name: The Commercial Hotel
- Wikidata: Q26504628
- TagsNormalized:
- Lat: 54.5451511
- Lon: -1.9246669
- FullGeoHash: gcwwk1ws810k
- PartitionGeoHash: gcww
- Images:
- FoodStandards: null
- Distance: 1034.4
}
Tags
- commercial
- industrial
- modern
- warehouse
- high ceiling
- industrial
- commercial unit
- warehouse
- high ceiling
- roller doors
- brickwork
- metal cladding
- parking area
Local Market Stats
- Average Price/sqft: £210
- Avg Income: £40200
- Rental Yield: 3%
- Social Housing: 5%
- Planning Success Rate: 96%
AirBnB Data
- 1km average: £81/night
- Listings in 1km: 1
Similar Properties
Warehouse for sale in Montalbo Road, Barnard Castle, Durham, DL12 8ED, DL12 — £850,000 • 1 bed • 1 bath • 15624 ft²
Residential development for sale in Galgate, Barnard Castle, DL12 — £475,000 • 1 bed • 1 bath • 2800 ft²
Light industrial facility for sale in Innovation House, Centurion Way, Darlington, Durham, DL3 0UP, DL3 — £3,000,000 • 1 bed • 1 bath • 581 ft²
Land for sale in Newgate, Barnard Castle, DL12 — £250,000 • 1 bed • 1 bath • 3323 ft²
Light industrial facility for sale in Scania Darlington, Whessoe Road, Darlington, DL3 0XE, DL3 — £950,000 • 1 bed • 1 bath • 11668 ft²
Light industrial facility for sale in Lingfield Way, Darlington, DL1 4XX, DL1 — POA • 1 bed • 1 bath • 26888 ft²
Meta
- {
"@context": "https://schema.org",
"@type": "Residence",
"name": "Industrial park for sale in Carrosserie House, Harmire Ente…",
"description": "",
"url": "https://propertypiper.co.uk/property/ed0dce48-95e2-4b1c-8023-d81119b987ad",
"image": "https://image-a.propertypiper.co.uk/c5965965-fa5a-4c2d-ac44-d9d629d6f85a-1024.jpeg",
"address": {
"@type": "PostalAddress",
"streetAddress": "Units 1,2,3,4, and 5 Harmire Business Park Barnard Castle",
"postalCode": "DL12 8XT",
"addressLocality": "County Durham",
"addressRegion": "Bishop Auckland",
"addressCountry": "England"
},
"geo": {
"@type": "GeoCoordinates",
"latitude": 54.554248744894906,
"longitude": -1.9213155904402142
},
"numberOfRooms": 1,
"numberOfBathroomsTotal": 1,
"floorSize": {
"@type": "QuantitativeValue",
"value": 6035,
"unitCode": "FTK"
},
"offers": {
"@type": "Offer",
"price": 875000,
"priceCurrency": "GBP",
"availability": "https://schema.org/InStock"
},
"additionalProperty": [
{
"@type": "PropertyValue",
"name": "Feature",
"value": "commercial"
},
{
"@type": "PropertyValue",
"name": "Feature",
"value": "industrial"
},
{
"@type": "PropertyValue",
"name": "Feature",
"value": "modern"
},
{
"@type": "PropertyValue",
"name": "Feature",
"value": "warehouse"
},
{
"@type": "PropertyValue",
"name": "Feature",
"value": "high ceiling"
},
{
"@type": "PropertyValue",
"name": "Feature",
"value": "industrial"
},
{
"@type": "PropertyValue",
"name": "Feature",
"value": "commercial unit"
},
{
"@type": "PropertyValue",
"name": "Feature",
"value": "warehouse"
},
{
"@type": "PropertyValue",
"name": "Feature",
"value": "high ceiling"
},
{
"@type": "PropertyValue",
"name": "Feature",
"value": "roller doors"
},
{
"@type": "PropertyValue",
"name": "Feature",
"value": "brickwork"
},
{
"@type": "PropertyValue",
"name": "Feature",
"value": "metal cladding"
},
{
"@type": "PropertyValue",
"name": "Feature",
"value": "parking area"
}
]
}
High Res Floorplan Images
Compatible Floorplan Images
FloorplanImages Thumbnail