Characterful village home with planning permission for a lofty upgrade and private patio.
Lake District National Park location with countryside views
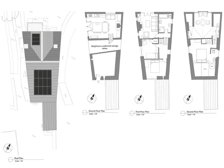
Set in the heart of Finsthwaite within the Lake District National Park, Bullace Cottage is a characterful detached house dating from 1698. The open-plan kitchen/living room is the home's focal point, with exposed beams, slate floors and a wood-burning stove creating a warm, social space. French doors and a sunny, low-maintenance paved patio open to tranquil country views — ideal for morning coffee or quiet outdoor time.
The cottage currently provides three bedrooms and a large loft room. Planning permission has been granted for a dormer loft conversion with a Juliette balcony and integrated solar panels (ref 7/2024/5520, expires 16/09/2027), so there is clear scope to create a substantial master suite or additional living space and to improve energy performance. Off-street parking is available on the gravel driveway and there are two useful outdoor stores, one with plumbing.
Buyers should note some practical considerations: the property uses electric heating (Heatredistributed system) and connects to a shared sewage treatment plant with costs shared among six properties. The driveway includes a public footpath and neighbours retain some access rights; a small ground-floor store is owned by an adjoining neighbour and some rear garden areas belong to that neighbour. There is currently no mobile signal at the house, though ultrafast broadband is available.
This home will suit buyers seeking a peaceful village lifestyle, easy access to lakes and long walks from the doorstep, and who value period character with clear scope to add value through the approved loft works. It is sold freehold with vacant possession and no upper chain.
2 bedroom terraced house for sale in 8 Railway Cottages, Newby Bridge, Nr Ulverston, Cumbria, LA12 8AW, LA12 — £280,000 • 2 bed • 1 bath • 603 ft²
2 bedroom detached house for sale in Rose Cottage, Woodland, Broughton in Furness LA20 6AG, LA20 — £475,000 • 2 bed • 2 bath • 1134 ft²
3 bedroom cottage for sale in Lowick Green, Ulverston LA12 8DX, LA12 — £375,000 • 3 bed • 1 bath • 1355 ft²
3 bedroom cottage for sale in 1 Milestone Cottage, Leasgill, Milnthorpe, Cumbria, LA7 7EX, LA7 — £385,000 • 3 bed • 2 bath • 1135 ft²
3 bedroom semi-detached house for sale in Brow Edge Road, LA12 8PP, LA12 — £375,000 • 3 bed • 1 bath • 1560 ft²
4 bedroom detached house for sale in Fell Foot House, Nibthwaite, Ulverston LA12 8DF, LA12 — £575,000 • 4 bed • 2 bath • 1655 ft²


















































































































