WA10 5NT - 5 bed spacious five bedroom detached in Knowsley Road, WA10…

View on Property Piper

5 bedroom detached house for sale in Knowsley Road, St. Helens, WA10

Summary - 230, Knowsley Road, ST. HELENS WA10 5NT

5 bed 3 bath Detached

Large family home with huge garden — renovation opportunity and no onward chain.
- Over 2,500 sq ft across three floors, five bedrooms
- Large, extensive rear garden with private outdoor space
- Chain free — vacant possession possible without onward chain
- Single-storey side/garage extension increases footprint
- Requires renovation throughout; finishing works and investment needed
- EPC and Council Tax band TBC; professional survey recommended
- Located near several Good-rated primary schools and transport links
- Area classified as very deprived; consider resale/rental implications
A substantial five-bedroom detached house offering over 2,500 sq ft of flexible family accommodation and a large rear garden. The property is chain free and set on a raised corner plot with a single-storey side/garage extension, providing scope for extra living space or conversion. With a principal suite, three bathrooms and multiple reception rooms, the layout suits a growing family or buyers seeking space to redesign.

The house requires renovation and finishing throughout, giving an opportunity to tailor interiors to taste but also meaning immediate works and investment will be needed. Key services are present (gas central heating, double glazing noted) but the EPC is TBC and a full inspection is advised to confirm condition, wiring and structural state.

Positioned within walking distance of several primary schools rated Good and convenient for local shops, bus routes and road links, the home balances suburban convenience with generous outdoor space. Note the property sits in an area of higher deprivation; buyers should consider resale and rental market factors locally when planning refurbishment and budgets.

Overall, this is a roomy, characterful detached house with strong potential for a family wanting space and a large garden, or an investor prepared to carry out works to unlock value.

Property Details

Brochure Descriptions

Image Descriptions

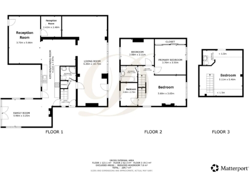
Floorplan Description

Rooms

Textual Property Features

Target Audience

AI Tags

Detected Visual Features

Nearby Schools

Nearest Bars And Restaurants

,,,,}

Nearest General Shops

,,}

Nearest Grocery shops

,,}

Nearest Supermarkets

,,}

Nearest Religious buildings

,,}

Nearest Medical buildings

,,,}

Nearest Airports

,}

Nearest Leisure Facilities

,,,,}

Nearest Tourist attractions

,,}

Nearest Train stations

,,,,}

Nearest Bus stations and stops

,,,,}

Nearest Hotels

,,}

Tags

Local Market Stats

Similar Properties

Meta

High Res Images

Compatible Images

Low res Images

Thumbnails

Raw Images

High Res Floorplan Images

Compatible Floorplan Images

Low res Floorplan Images

FloorplanImages Thumbnail

Raw Floorplan Images