Move-in-ready two-bedroom terrace with recent shower room and no upward chain.
Two bedrooms in a well-presented mid-terrace layout
This recently refreshed two-bedroom mid-terrace offers a straightforward, move-in-ready home for a first-time buyer or downsizer. The interior has been well maintained with a stylish, recently fitted shower room and neutral décor throughout — you can unpack and settle straight away.
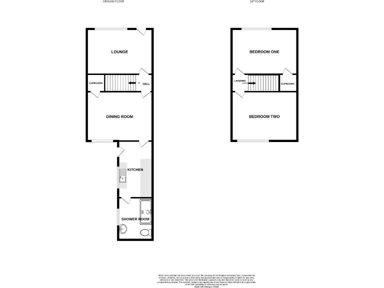
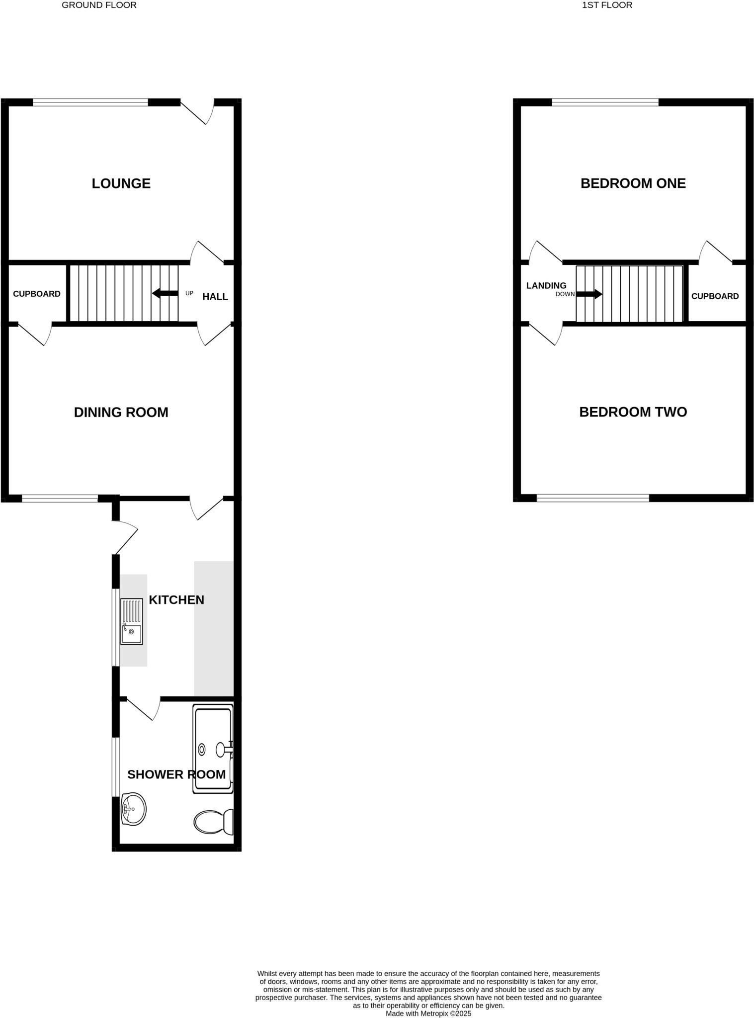
Ground floor living includes a separate lounge and dining room plus a compact kitchen; two modest bedrooms sit on the first floor. The layout is practical for everyday life and low on maintenance, with mains gas central heating and double glazing already in place.
Practical advantages include freehold tenure, no upward chain and very low council tax, alongside fast broadband and convenient local amenities and transport links. Nearby primary and secondary schools have good Ofsted ratings, which is useful if family plans change.
Notable issues to be aware of: the roof shows some damage and will need attention, and the original solid brick walls are likely uninsulated, so expect to consider insulation when budgeting long-term. The property sits on a paved frontage with limited private outdoor space, and the surrounding area shows economic deprivation despite low recorded crime. These points affect running costs and future improvement scope but also keep the entry price modest.
2 bedroom terraced house for sale in Mount Street, Cannock, WS12 — £139,500 • 2 bed • 1 bath • 766 ft²
2 bedroom end of terrace house for sale in Church Street, Bridgtown, Cannock, WS11 — £135,000 • 2 bed • 1 bath • 782 ft²
2 bedroom terraced house for sale in Sandon Road, Stafford, Staffordshire, ST16 — £150,000 • 2 bed • 1 bath
2 bedroom terraced house for sale in Wharf Road, Brereton, WS15 — £170,000 • 2 bed • 1 bath • 622 ft²
2 bedroom terraced house for sale in Lamplight Way, Hednesford, WS12 — £195,000 • 2 bed • 1 bath • 599 ft²
2 bedroom terraced house for sale in Walkers Fold, WILLENHALL, West Midlands, WV12 — £180,000 • 2 bed • 1 bath • 597 ft²






























































