High-spec open-plan living with large landscaped gardens and generous parking.
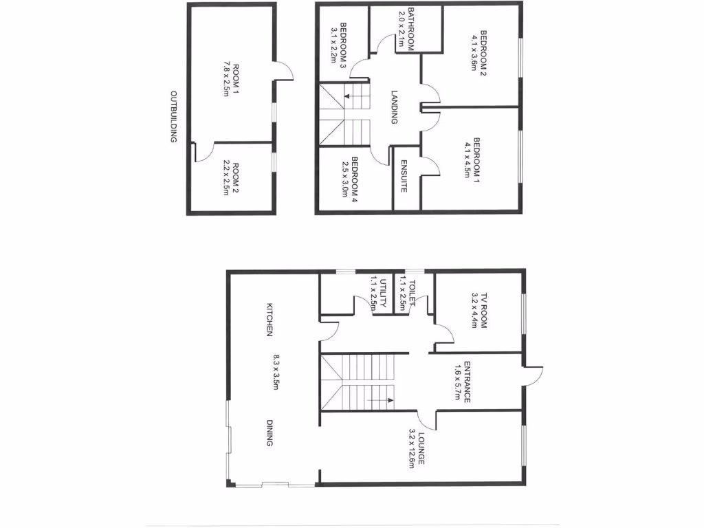
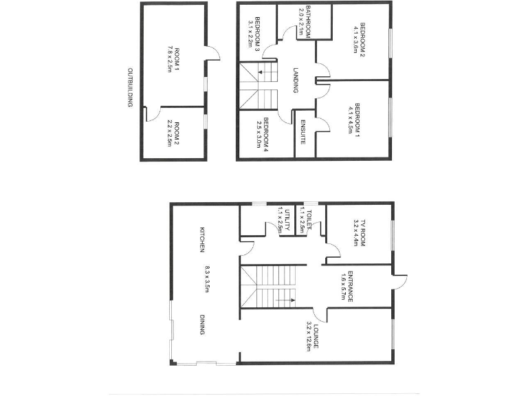
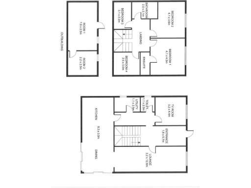
Fully refurbished four-bedroom detached family home
A beautifully remodelled four-bedroom detached home set on a generous plot in a quiet rural section of Sealand Road. The property has been fully modernised with high-spec finishes including app-controlled underfloor heating, premium granite worktops, acoustic double glazing and a smart home security system. The open-plan kitchen/dining area with roof lantern and bi-fold doors provides an excellent family hub, flowing directly to a 100 sqm granite patio and landscaped gardens.
Practical advantages include ample off-street parking for 8–10 cars, electric gates, a large 2,500 L double-skinned oil tank and a Klargester BioFicient drainage system meeting current septic regulations. A fully owned solar array contributes modest annual income (approx. £800) and the house is offered chain free and ready for immediate occupation; it can also be sold fully furnished if required.
Families will appreciate the flexible ground-floor layout — cinema/snug or home office, utility room and convenient ground-floor WC — plus four well-proportioned bedrooms on the first floor, including a bay-fronted master with en suite. The property benefits from fast broadband and good road links to Chester, with open countryside and long views at the rear.
Important practical points: the home is heated by an oil-fired boiler and underfloor heating, so ongoing oil costs should be considered. The setting is rural and isolated, which suits privacy but brings reliance on cars and limited local services. Local area indicators show higher-than-average crime and significant area deprivation; buyers should factor this into their search and visit to assess local suitability.
4 bedroom detached house for sale in Sealand Road, Sealand, CH5 — £425,000 • 4 bed • 2 bath • 1981 ft²
4 bedroom detached house for sale in New Brighton Road,
Mold,
CH7 6ZA, CH7 — £369,995 • 4 bed • 3 bath • 1110 ft²
4 bedroom detached house for sale in Manor Road, Sealand, Deeside, Flintshire, CH5 — £525,000 • 4 bed • 3 bath • 1595 ft²
5 bedroom detached house for sale in Marford, Wrexham, LL12 — £800,000 • 5 bed • 3 bath • 2509 ft²
3 bedroom detached house for sale in Rackery Lane, Caergwrle, Wrexham, LL12 — £675,000 • 3 bed • 1 bath • 1335 ft²
4 bedroom detached house for sale in Ffordd Las, Gwernymynydd, Mold, CH7 — £799,950 • 4 bed • 2 bath • 2052 ft²


































































































































































