Characterful, practical home ideal for first-time buyers.
Three bedrooms across multi-storey layout
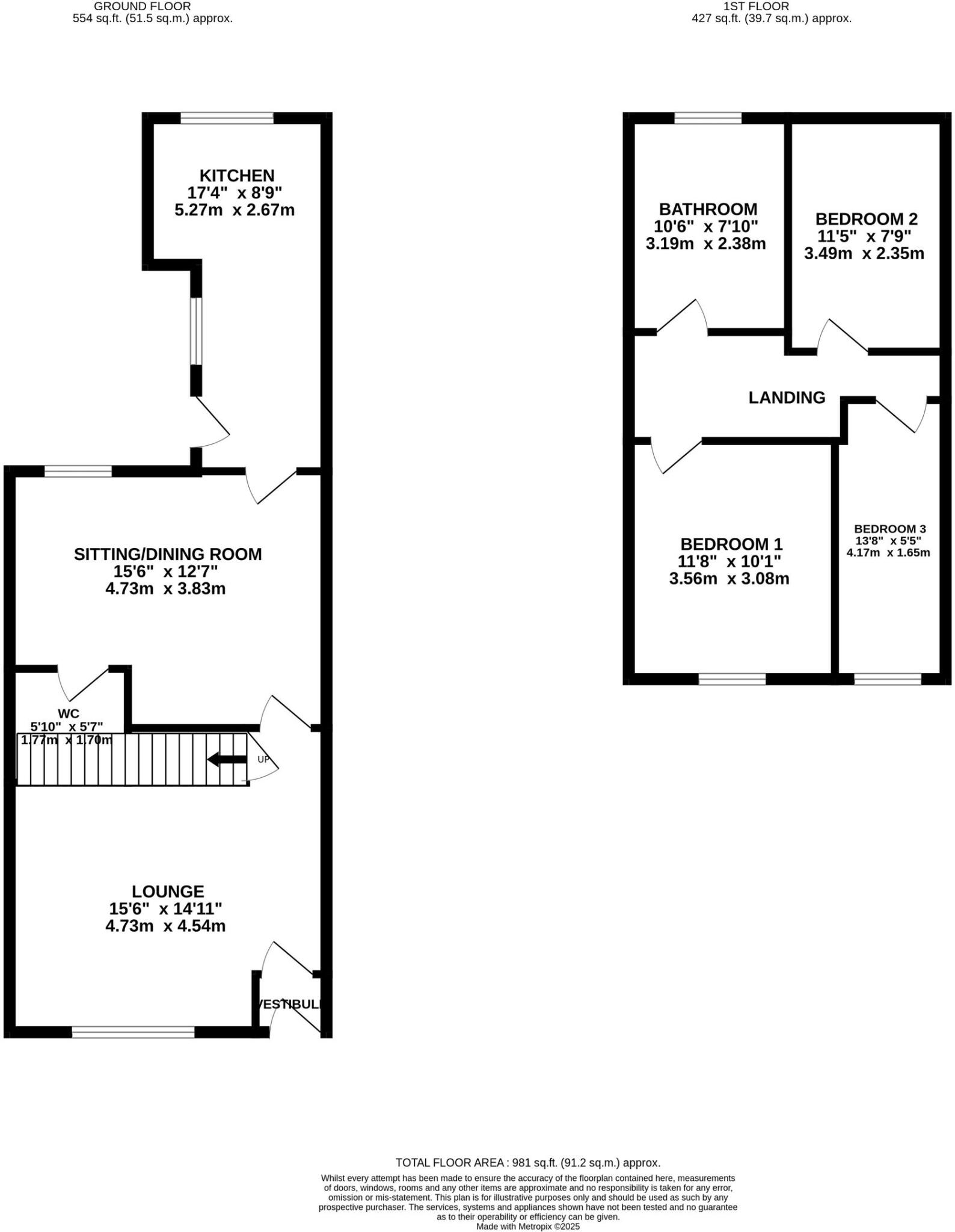
A substantial three-bedroom mid-terrace presented with a mix of period character and modern finishes. The house offers two reception rooms, a good-sized contemporary kitchen and a large modern bathroom — comfortable living for a first-time buyer or young family. Original features such as sash-style windows and a front forecourt add kerb appeal while double glazing (install date unknown) and gas central heating provide everyday practicality.
Externally there is an enclosed rear yard suited to low-maintenance outdoor living; the plot is small but private. At around 958 sq ft across multiple storeys, the layout delivers useful living space but only one family bathroom and a ground-floor WC, which should be considered for larger households.
Practical strengths include freehold tenure, very low local crime, excellent mobile signal and fast broadband. The property sits close to bus routes, shops and local schools rated Good, making everyday life straightforward. EPC rating D and the build date (1900–1929) mean some period maintenance may be needed over time; double glazing install date is unknown and cavity walls are filled.
The wider neighbourhood is classified as a deprived, blue-collar terrace area; while this affects local socioeconomics, immediate surroundings benefit from local amenities and transport. This home offers an accessible, characterful entry point to homeownership with scope to personalise and add value.
3 bedroom terraced house for sale in VICTOR STREET, Hopwood, Heywood OL10 2HL, OL10 — £170,000 • 3 bed • 1 bath • 807 ft²
3 bedroom town house for sale in Stanley Street, Heywood, Greater Manchester, OL10 — £195,000 • 3 bed • 1 bath • 888 ft²
3 bedroom terraced house for sale in Raymond Avenue, Bury, Greater Manchester, BL9 6NN, BL9 — £200,000 • 3 bed • 1 bath • 1138 ft²
3 bedroom end of terrace house for sale in Kingsland Road, Rochdale, OL11 — £168,000 • 3 bed • 1 bath • 814 ft²
3 bedroom town house for sale in Drymoss, Bardsley, Oldham, OL8 — £210,000 • 3 bed • 1 bath • 840 ft²
3 bedroom terraced house for sale in French Avenue, Watersheddings, Oldham, Greater Manchester, OL1 — £190,000 • 3 bed • 1 bath • 755 ft²






































































