E7 0NQ - 2 bedroom ground floor flat for sale in Sebert Road, London…

View on Property Piper

2 bedroom ground floor flat for sale in Sebert Road, London, E7

Summary - 44a Sebert Road,LONDON,E7 0NQ E7 0NQ

2 bed 1 bath Ground Flat

**Standout Features:**
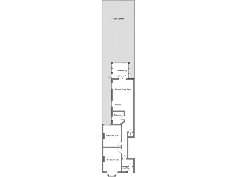
- Spacious ground-floor Victorian conversion
- Two generously sized double bedrooms
- Modern open-plan kitchen/living/dining area
- High-quality fitted family bathroom with underfloor heating
- Impressive 80ft south-facing garden
- Recent renovations and modern finishes
- Close proximity to Forest Gate and Wanstead Park train stations
- Excellent catchment area for schools
- Vibrant local amenities

**Concise Summary:**
Discover this charming and spacious ground-floor Victorian conversion flat on Sebert Road, nestled in the desirable Village Area of Forest Gate. Recently renovated, this home boasts two large double bedrooms and a modern open-plan kitchen, living, and dining area, perfect for families and entertaining. The high-quality fitted family bathroom, enhanced with luxurious underfloor heating, adds a touch of elegance.

The property opens up to a remarkable 80ft south-facing garden, a rare find that offers ample space for outdoor activities and potential for gardening enthusiasts. With Forest Gate's Elizabeth Line just a short walk away, commuting into central London is quick and convenient.

Families will appreciate being in the catchment area for reputable local schools like Woodgrange Infant School and Godwin Junior School. Although the area has been noted for above-average crime rates, the vibrant community surrounding this flat offers a wealth of local amenities, including cafes, bars, and parks. This home presents a unique opportunity to embrace comfort, character, and convenience in one of London’s up-and-coming neighborhoods. Don't miss out on the chance to make this inviting space your own!

Property Details

Image Descriptions

Floorplan Description

Rooms

Textual Property Features

Detected Visual Features

Nearby Schools

Nearest Bars And Restaurants

,,,,}

Nearest General Shops

,,}

Nearest Grocery shops

,,}

Nearest Supermarkets

,,}

Nearest Religious buildings

,,}

Nearest Medical buildings

,,,}

Nearest Airports

,}

Nearest Leisure Facilities

,,,,}

Nearest Tourist attractions

,,}

Nearest Train stations

,,,,}

Nearest Bus stations and stops

,,,,}

Nearest Hotels

,,}

Tags

Local Market Stats

AirBnB Data

Similar Properties

Meta

High Res Images

Compatible Images

Low res Images

Thumbnails

Raw Images

High Res Floorplan Images

Compatible Floorplan Images

Low res Floorplan Images

FloorplanImages Thumbnail

Raw Floorplan Images