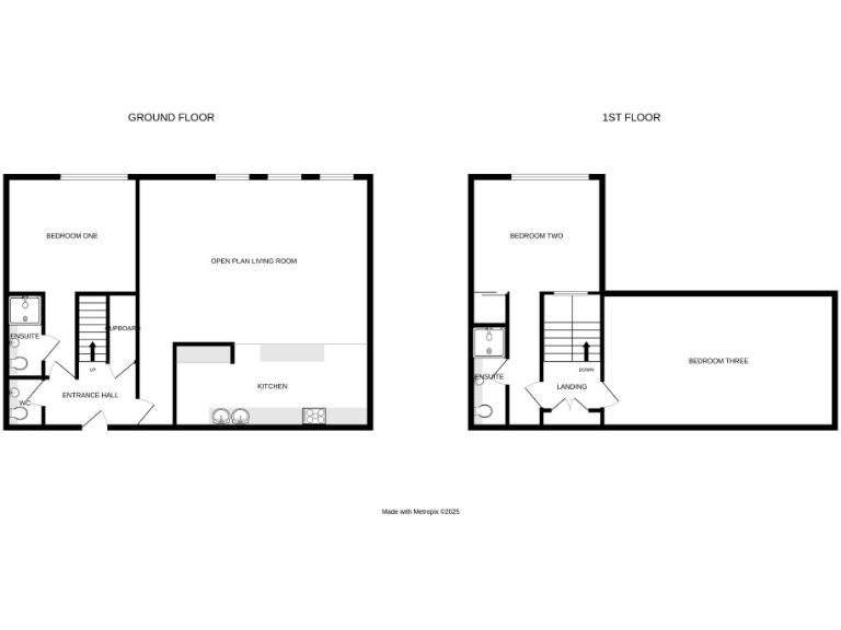
Spacious three-bed with mezzanine bedrooms, gardens and parking.
Grade II listed Victorian conversion with striking double-height living
Set within an iconic Grade II listed Victorian conversion, this spacious three-bedroom maisonette combines dramatic double-height living with adaptable, characterful accommodation. The open-plan lounge/diner with high ceilings and large windows creates a bright social heart, while two bedrooms on a mezzanine add quirky, flexible sleeping space and make the layout feel loft-like.
Practical benefits include two bathrooms, communal gardens, reserved off-street parking and an unusually long lease of circa 199 years. The property is offered chain free, which can speed completion, and has fast broadband and excellent mobile signal — appealing for families who need good connectivity.
Buyers should note this is a listed building: alterations will be restricted and may require consents, which can add time and cost to refurbishment plans. There is an annual service charge of approximately £4,000 and a ground rent of about £250, which are material ongoing costs to factor into affordability. The neighbourhood is described as deprived with above-average crime statistics, so prospective purchasers should consider local context and carry out their own checks.
Internal viewing is strongly recommended to appreciate the scale, period detail and flexible layout. For families the location offers several well-rated primary and secondary schools nearby and accessible local amenities and transport in the city centre.
1 bedroom apartment for sale in Paradise Road, Plymouth, PL1 — £125,000 • 1 bed • 1 bath • 720 ft²
1 bedroom flat for sale in Paradise Road, Plymouth, PL1 — £150,000 • 1 bed • 2 bath • 740 ft²
2 bedroom flat for sale in Paradise Road, Plymouth, PL1 — £180,000 • 2 bed • 1 bath • 1120 ft²
2 bedroom flat for sale in Clarendon House, 1-3 Albert Road, Plymouth, Devon, PL2 — £170,000 • 2 bed • 2 bath • 1084 ft²
3 bedroom maisonette for sale in Craigie Drive, Plymouth, PL1 — £350,000 • 3 bed • 2 bath • 1411 ft²
1 bedroom apartment for sale in Craigie Drive, Plymouth Gated community one bedroom apartment, PL1 — £170,000 • 1 bed • 1 bath • 434 ft²














































































