Single-level bungalow with garage, garden and solar panels — walk to waterfront..
Two double bedrooms, single-level living ideal for downsizers or retirees
Solar panels fitted — helps reduce energy bills
Good-sized private rear garden with landscaping potential
Garage plus driveway for off-street parking and storage
Quiet no-through road; short walk to town centre and waterfront
Compact footprint (558 sq ft) — limited internal space
Cavity walls likely uninsulated; consider energy-efficiency upgrades
Slow broadband and average mobile signal may affect remote working
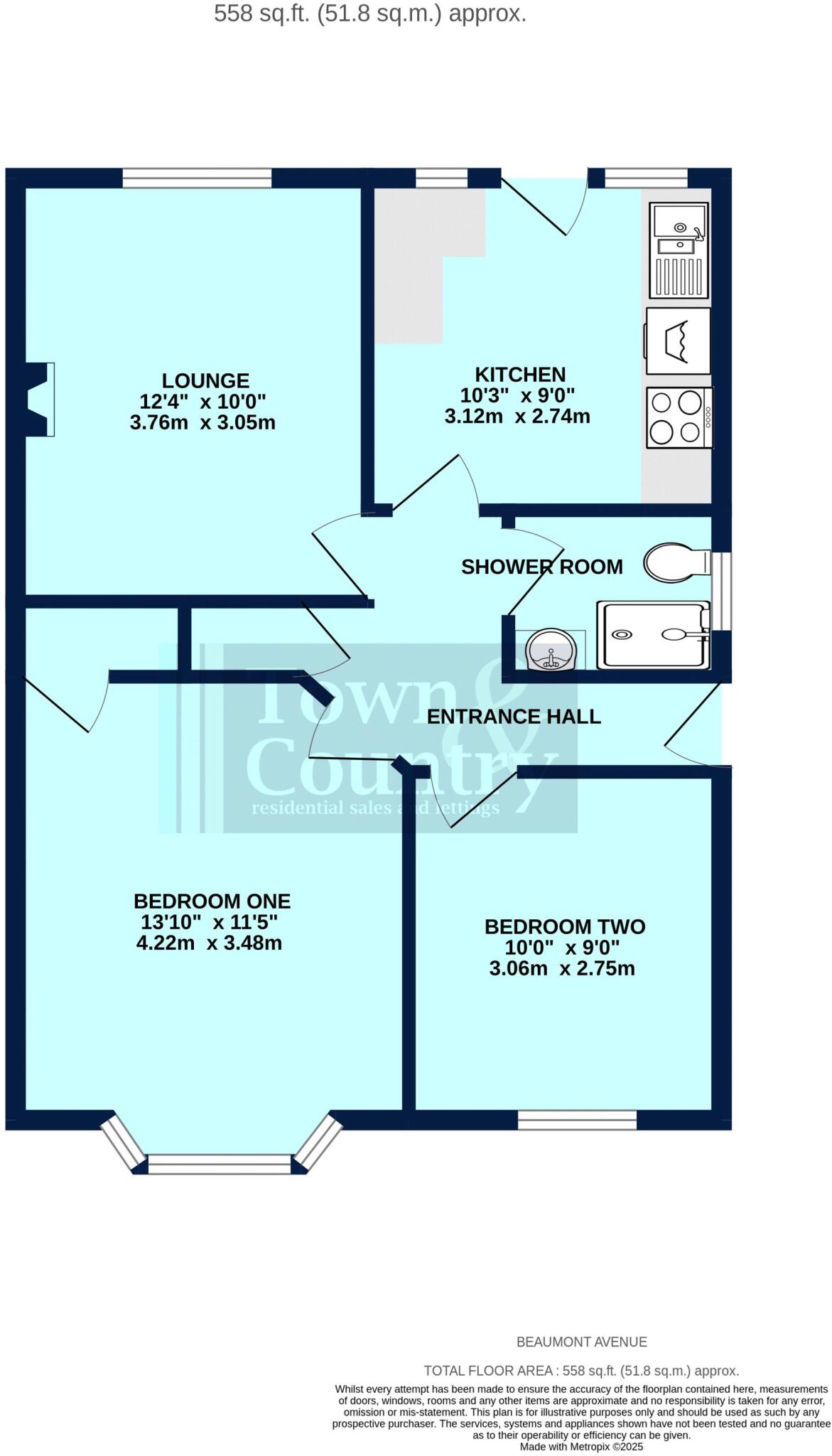
Set on a quiet no-through road a short walk from Brightlingsea’s shops and waterfront, this two-bedroom semi-detached bungalow offers practical, single-level living for downsizers or retirees. The layout is compact but sensible: separate lounge overlooking an unoverlooked rear garden, fitted kitchen with external access, two double bedrooms and a shower room. Solar panels reduce running costs and the property is sold with no onward chain.
Outside there’s a long, private rear garden, lawned front garden, driveway and a single garage — useful for parking or storage. The plot is a genuine asset for anyone wanting outdoor space close to town; it will suit buyers who want an easily managed garden or who see opportunity to personalise landscaping and storage arrangements.
The bungalow is modest in size (approximately 558 sq ft) and was built mid-20th century. Walls are cavity construction with no confirmed insulation upgrades, so buyers should consider potential energy-efficiency improvements. Broadband is reported slow and mobile signal average — factors to note if remote working is a priority. Overall this is a convenient, low-maintenance home ideal for those prioritising location, single-floor ease and outdoor space, with scope for updating to modern standards.
2 bedroom bungalow for sale in Marsh Way, Brightlingsea, CO7 — £275,000 • 2 bed • 1 bath • 780 ft²
3 bedroom bungalow for sale in Maltings Road, Brightlingsea, CO7 — £294,000 • 3 bed • 1 bath • 1085 ft²
2 bedroom detached bungalow for sale in Rye Close, Brightlingsea, Colchester, CO7 — £275,000 • 2 bed • 1 bath • 678 ft²
2 bedroom bungalow for sale in York Road, Brightlingsea, CO7 , CO7 — £290,000 • 2 bed • 2 bath • 818 ft²
2 bedroom bungalow for sale in Richard Avenue, Brightlingsea, CO7 — £325,000 • 2 bed • 1 bath • 1019 ft²
3 bedroom detached bungalow for sale in Albert Road, Brightlingsea, CO7 — £360,000 • 3 bed • 1 bath • 1227 ft²


















































