Low‑maintenance living with on-site bistro and 24/7 manager support.
One-bedroom purpose-built retirement apartment, built 2022
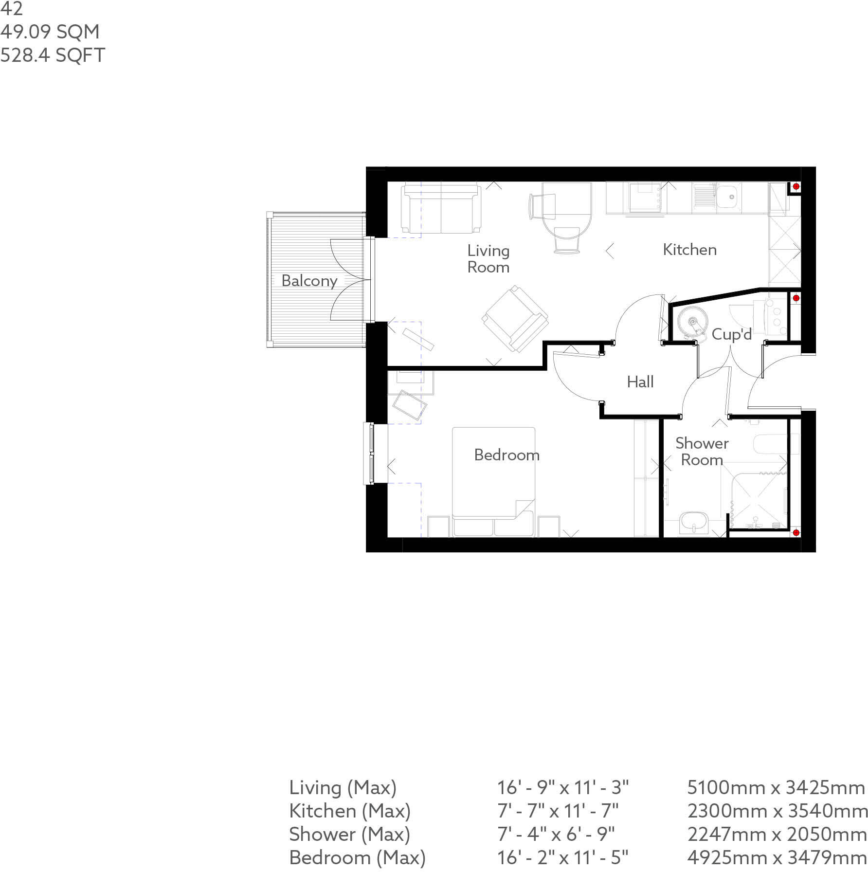
A bright, easy-care one-bedroom apartment in a purpose-built Retirement Living PLUS development, ideal for someone looking to downsize without losing modern comforts. The open-plan living space opens to a south-westerly walk-out balcony, bringing good afternoon light, while integrated kitchen appliances and clever storage keep the footprint efficient and usable.
The development is aimed at over-70s and offers genuine convenience: an on-site chef-run bistro with barista coffee, landscaped communal gardens, and a 24/7 on-site manager for peace of mind. Safety features include an emergency call system, fire detection and door-camera entry — practical benefits for independent retirement living.
Practical considerations: heating is by electric room heaters rather than gas central heating, and the property sits in an area assessed as medium flood risk, which may affect insurance and personal preparedness. The apartment is leasehold (999 years remaining) and around 528 sq ft, so it suits those seeking a compact, low-maintenance home rather than a larger family property.
Overall, this is a modern, energy-efficient apartment (SAP rating up to 83) with strong communal amenities and a convenient historic town location. It will appeal to buyers wanting social facilities on-site, low-maintenance living and the reassurance of 24/7 on-site support, with the trade-offs of electric heating and a medium flood risk to bear in mind.
2 bedroom retirement property for sale in 4 Langholm Close,
Beverley,
HU17 — £324,950 • 2 bed • 1 bath • 815 ft²
1 bedroom retirement property for sale in 4 Langholm Close,
Beverley,
HU17 — £239,950 • 1 bed • 1 bath • 528 ft²
1 bedroom retirement property for sale in 4 Langholm Close,
Beverley,
HU17 — £254,950 • 1 bed • 1 bath • 528 ft²
1 bedroom retirement property for sale in 4 Langholm Close,
Beverley,
HU17 — £168,750 • 1 bed • 1 bath • 528 ft²
2 bedroom retirement property for sale in 4 Langholm Close,
Beverley,
HU17 — £236,250 • 2 bed • 1 bath • 839 ft²
2 bedroom retirement property for sale in 4 Langholm Close,
Beverley,
HU17 — £334,950 • 2 bed • 1 bath • 812 ft²


































