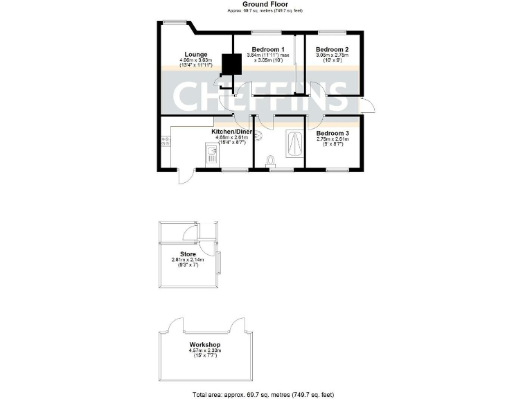
**Standout Features:**
- Semi-detached bungalow with three bedrooms
- Modern shower room
- Spacious kitchen/dining room and cozy lounge
- Front and rear gardens with two brick outbuildings
- Additional land for off-street parking and a workshop
- Freehold property, Council Tax Band B, EPC Rating D
- Low crime area in a peaceful cul-de-sac
This well-established semi-detached bungalow is ideal for families or first-time buyers seeking a comfortable home with versatile space. Featuring three good-sized bedrooms, a modern shower room, and an open-plan kitchen/dining room that seamlessly flows into a cozy lounge, this property ensures easy living in a tranquil suburban setting.
Enhancing the appeal are the delightful front and rear gardens, accented by brick outbuildings that provide valuable storage or workshop potential. The additional parcel of land offers excellent off-street parking ability, a significant asset in this area, allowing you to keep everyday convenience at your fingertips.
While the property is in good condition overall, be mindful of potential electric storage heater upgrades. With a Council Tax Band B, it remains an affordable option providing a solid foundation to create your dream home. In a neighborhood known for its low crime rate and proximity to local amenities and good schools, this bungalow promises comfort, convenience, and future value. Don't miss out on the opportunity to make this delightful property your own!
2 bedroom semi-detached bungalow for sale in Bishop Laney Drive, Ely, CB6 — £310,000 • 2 bed • 1 bath • 576 ft²
3 bedroom detached bungalow for sale in Victoria Street, Littleport, Ely, CB6 — £380,000 • 3 bed • 2 bath • 1294 ft²
3 bedroom semi-detached house for sale in Lawn Lane, Little Downham, Ely, CB6 — £275,000 • 3 bed • 1 bath • 923 ft²
1 bedroom semi-detached bungalow for sale in Morello Chase, Soham, Ely, CB7 — £235,000 • 1 bed • 1 bath • 527 ft²
3 bedroom detached bungalow for sale in Brook Street, Soham, CB7 — £350,000 • 3 bed • 1 bath • 1099 ft²
3 bedroom detached bungalow for sale in Willow Court, Littleport, Ely, CB6 — £375,000 • 3 bed • 1 bath • 1140 ft²














































