HP9 2DX - 3 bedroom terraced house for sale in Yew Tree Close, Beacon…

View on Property Piper

3 bedroom terraced house for sale in Yew Tree Close, Beaconsfield, HP9

Summary - 5 YEW TREE CLOSE BEACONSFIELD HP9 2DX

3 bed 1 bath Terraced

Compact three-bedroom home in prime Beaconsfield school catchment, with garage and garden..
- End-terrace with private courtyard garden
- Bright open-plan living and dining area
- Garage plus off-street parking
- Excellent primary and secondary school catchment
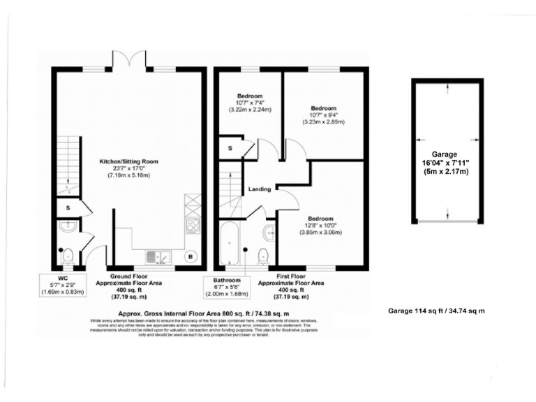
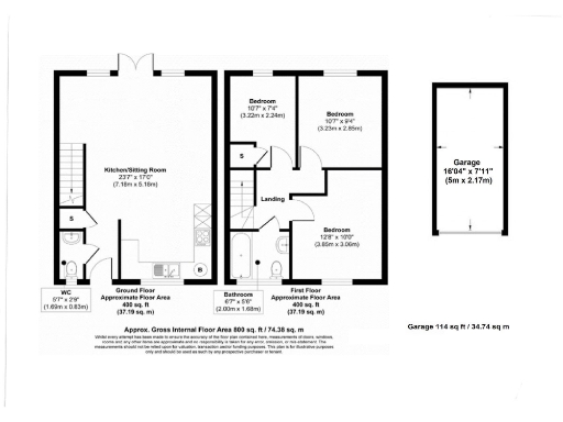
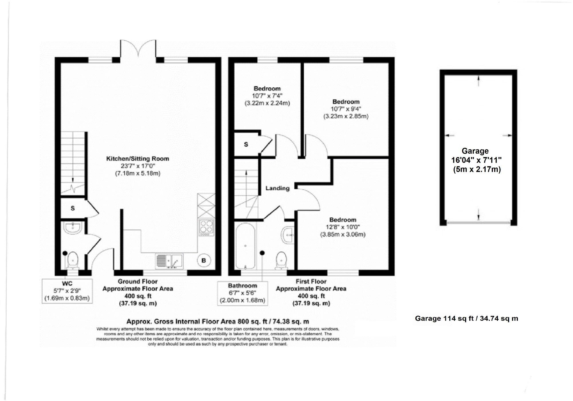
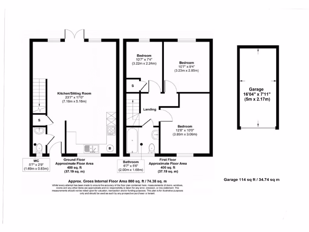
- Compact overall size — about 800 sq ft
- Single family bathroom only
- Exterior/roof repairs and maintenance needed
- Local crime rate above average
This well‑maintained three-bedroom end-terrace sits quietly in Yew Tree Close, a short stroll from Beaconsfield Old Town and the New Town train station. The house makes the most of its footprint with a bright, open-plan living and dining area that flows through French doors to a secluded courtyard garden.

The property will suit families seeking excellent school catchment and easy commuting to London Marylebone. Practical benefits include a single garage, off-street parking, double glazing and mains gas central heating; the freehold tenure and an EPC rating of C are additional positives.

Buyers should note the home is compact at about 800 sq ft and has one family bathroom, so space will be tight for larger households. Exterior maintenance is required — photos indicate some roof/external repairs and general upkeep needs. Crime levels in the immediate area are above average, which some buyers will want to investigate further.

Overall this is a convenient, characterful town property with sensible family-friendly layout and scope for modest updating. It offers a straightforward purchase for those prioritising location and school catchment over generous internal space.

Property Details

Brochure Descriptions

Image Descriptions

Floorplan Description

Rooms

Textual Property Features

Target Audience

AI Tags

Detected Visual Features

EPC Details

Nearby Schools

Nearest Bars And Restaurants

,,,,}

Nearest General Shops

,,}

Nearest Grocery shops

,,}

Nearest Supermarkets

,,}

Nearest Religious buildings

,,}

Nearest Medical buildings

,,,}

Nearest Airports

}

Nearest Leisure Facilities

,,,,}

Nearest Tourist attractions

,,}

Nearest Train stations

,,,,}

Nearest Bus stations and stops

,,,,}

Nearest Hotels

,,}

Tags

Local Market Stats

Similar Properties

Meta

High Res Images

Compatible Images

Low res Images

Thumbnails

Raw Images

High Res Floorplan Images

Compatible Floorplan Images

Low res Floorplan Images

FloorplanImages Thumbnail

Raw Floorplan Images