Spacious, versatile home just minutes from the beach and local amenities.
Two off-street parking spaces plus front garden for landscaping potential
Short walk to Whitley Bay seafront, cafes and local amenities
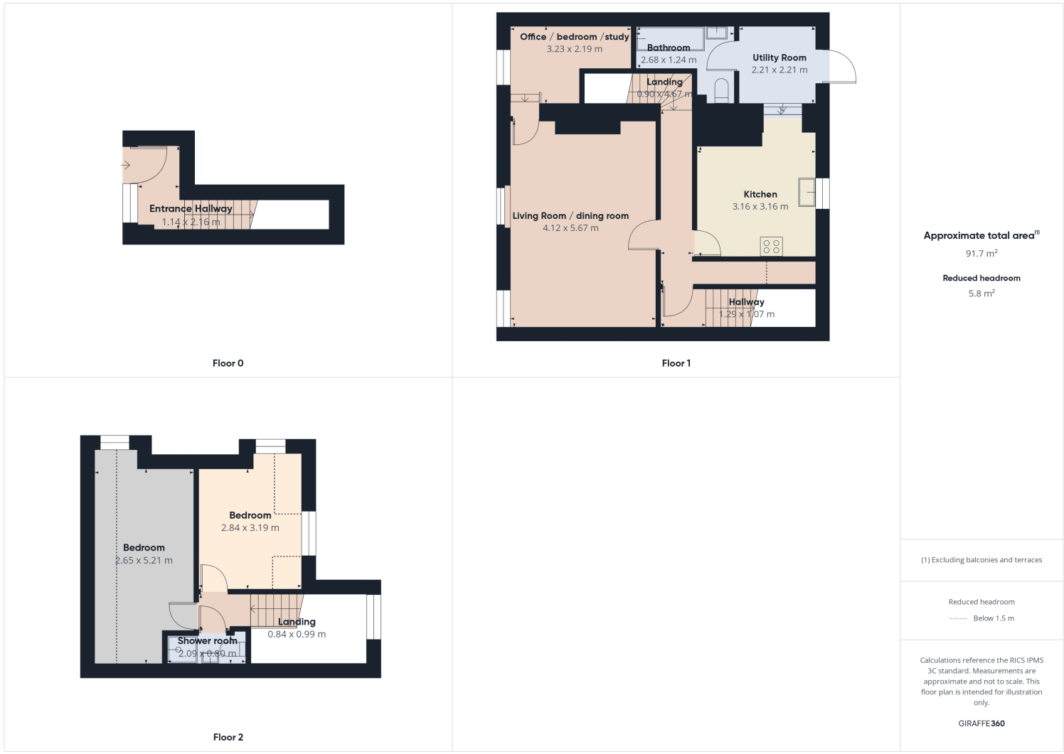
Two bedrooms plus versatile office/study/third bedroom
Two bathrooms (bathroom and separate shower room)
Leasehold with 988 years remaining — long-term security
Approx 841 sq ft; average overall size with eaves bedrooms
Minimal rear outdoor space; front offers better external area
Area has above-average crime; consider security measures
Bright, well-presented maisonette a short walk from Whitley Bay seafront, arranged over two floors with versatile living space ideal for families. The layout includes a generous living/dining room, a useful office that can double as a small bedroom, and two sizable bedrooms in the eaves. A separate utility area and two bathrooms make mornings easier for busy households.
Practical benefits include two off-street parking spaces and a front garden that could be landscaped to extend outdoor living. The property comes leasehold with an exceptionally long term remaining (988 years), and broadband and mobile signal are both strong — convenient for home working and streaming. Local schools are well regarded and the Metro provides quick links into Newcastle.
There are a few trade-offs to note: the rear outdoor area is minimal, and the property sits in an area with above-average crime levels, so buyers should consider security measures. Overall size is average at about 841 sq ft; the maisonette is presented in good decorative order but has the typical period property layout and eaves bedrooms, which may feel cosy rather than spacious.
2 bedroom maisonette for sale in The Links, Whitley Bay, NE26 — £425,000 • 2 bed • 2 bath • 1616 ft²
3 bedroom apartment for sale in Percy Road, Whitley Bay, NE26 — £240,000 • 3 bed • 1 bath • 988 ft²
3 bedroom flat for sale in Churchill House, 31 Holywell Avenue, Whitley Bay, NE26 — £315,000 • 3 bed • 1 bath • 993 ft²
3 bedroom maisonette for sale in Victoria Terrace, Whitley Bay, NE26 — £190,000 • 3 bed • 1 bath • 1059 ft²
2 bedroom apartment for sale in Marine Avenue, Whitley Bay, NE26 — £250,000 • 2 bed • 2 bath • 827 ft²
2 bedroom apartment for sale in Marine Avenue, Whitley Bay, NE26 — £190,000 • 2 bed • 1 bath • 784 ft²






































































