CW6 9NZ - 4 bedroom detached house for sale in Whitchurch Road, Tarpo…

View on Property Piper

4 bedroom detached house for sale in Whitchurch Road, Tarporley, CW6 9NZ , CW6

Summary - 52 Sandford Road,Beeston,Cheshire,CW6 9ZA CW6 9NZ

4 bed 2 bath Detached

Four-bedroom new-build on a huge plot with garage, study and large ensuite—available now.
Large open-plan kitchen/dining room with lots of natural light
Spacious master bedroom with sizeable ensuite shower room
Detached garage, driveway parking and very large private plot
Study, utility and plentiful built-in storage throughout
New-build freehold with 12-year structural warranty (BLP)
Service/management charge £800 plus VAT per year
£3,000 non-refundable reservation fee on booking
One nearby school rated Inadequate; others rated Good
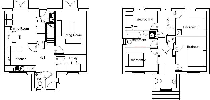
Set on a substantial plot in Beeston, this four-bedroom Tilston detached house offers roomy family living with modern specification. The ground floor balances a large dual-aspect open-plan kitchen/dining area and a separate living room plus a handy study and utility, while the first floor provides a spacious master suite with large ensuite and three further bedrooms served by a family bathroom. The property was the show home and is ready for immediate occupation.

Outdoor space and parking are genuine strengths: a private rear garden, driveway and a detached garage sit on a notably large plot. The new-build comes with a 12-year structural warranty (BLP) and is freehold. Local life centres on attractive villages—Beeston, Bunbury and nearby Tarporley—offering schools, village amenities and good transport links to the wider Cheshire area.

Buyers should note some transactional and annual costs: a £3,000 non-refundable reservation fee applies and there is a service/management charge of £800 plus VAT per year. The setting is a small/hamlet settlement with average local crime and predominantly affluent demographics. One nearby school has a lower Ofsted outcome, though other nearby primaries and Tarporley High School are rated Good.

This home will suit young families or local downsizers seeking ready-to-move-in, low-maintenance accommodation with generous room proportions and outdoor space. The guide price range is £400,000–£450,000.

Property Details

Image Descriptions

Floorplan Description

Rooms

Textual Property Features

Target Audience

AI Tags

Detected Visual Features

Nearby Schools

Nearest Bars And Restaurants

,,,,}

Nearest General Shops

,,}

Nearest Grocery shops

,,}

Nearest Supermarkets

,,}

Nearest Religious buildings

,,}

Nearest Medical buildings

,,,}

Nearest Airports

,}

Nearest Leisure Facilities

,,,,}

Nearest Tourist attractions

,,}

Nearest Train stations

,,,,}

Nearest Bus stations and stops

,,,,}

Nearest Hotels

,,}

Tags

Local Market Stats

Similar Properties

Meta

High Res Images

Compatible Images

Low res Images

Thumbnails

Raw Images

High Res Floorplan Images

Compatible Floorplan Images

Low res Floorplan Images

FloorplanImages Thumbnail

Raw Floorplan Images