Spacious three-bed project near Cardiff city, great for families seeking potential.
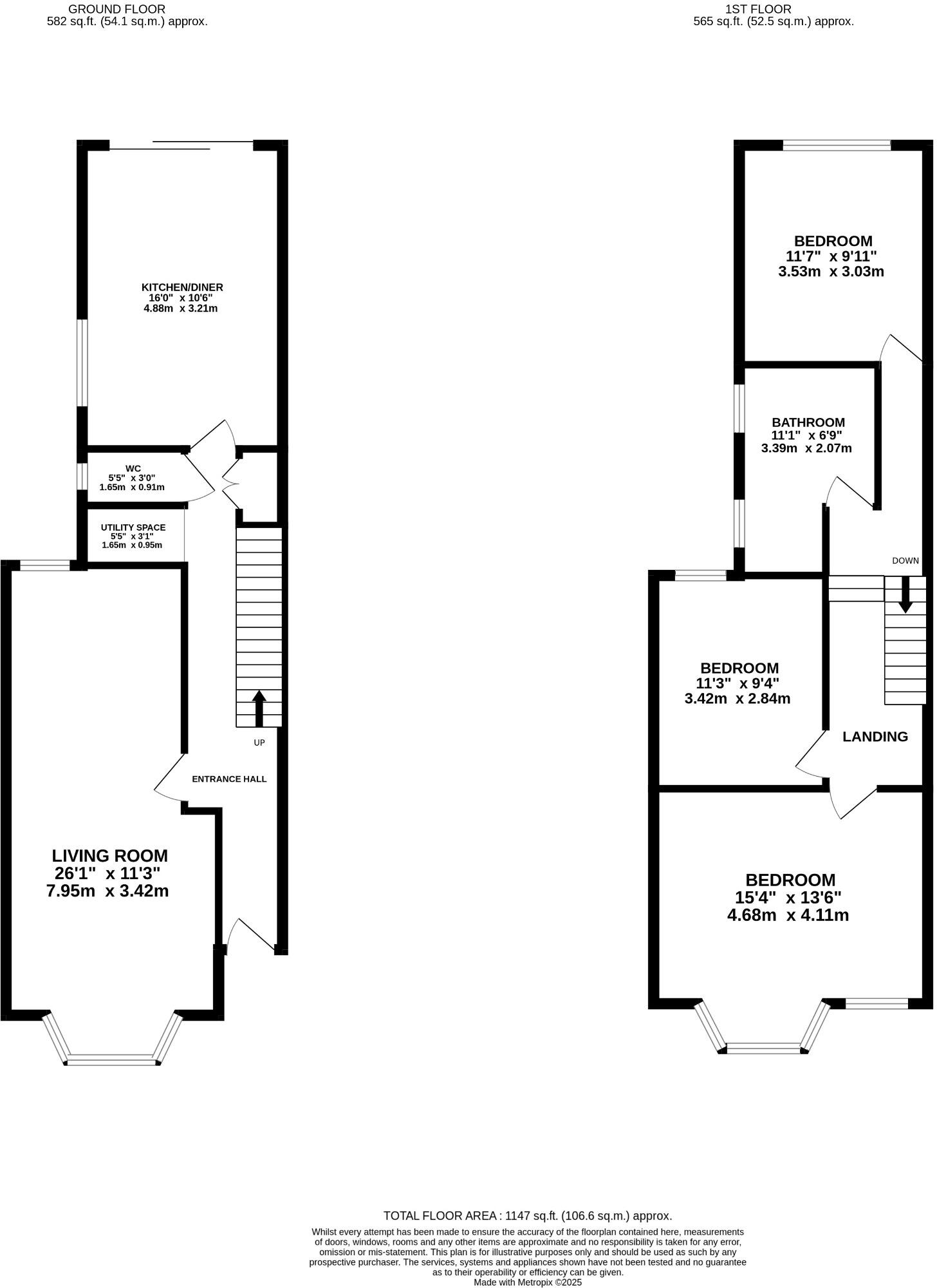
3 double bedrooms, master spans full house width
Large bay-front living room with fireplace and natural light
Open-plan kitchen/breakfast with sliding doors to garden
Private rear garden with paved patio, lawn and shed
Chain-free freehold; convenient commuter location
Requires renovation; roof noted as potential issue
Solid brick walls with no assumed insulation; energy upgrades needed
Area has high crime and high deprivation statistics
A spacious Victorian mid-terrace close to Cardiff city centre, offered chain-free and ready for renovation. The house provides three double bedrooms, a large front reception with bay window and an open-plan kitchen/breakfast room that opens onto a private rear garden. Its solid brick construction and period proportions make it a strong candidate for sympathetic updating to increase comfort and value.
This home suits families or buyers who want a project in a commuter-friendly location. Transport links are excellent, with easy access to bus routes, nearby train stations and the M4; amenities including cafés, shops and green spaces are within a short walk. The layout includes useful ground-floor cloakroom and utility plumbing, and the generous master bedroom spans the full width of the property.
Important practical points: the property needs modernisation throughout and some elements appear to need attention (roof noted as potential issue). The mid-terrace has solid brick walls with no assumed cavity insulation, older double glazing (pre-2002) and a single family bathroom, so buyers should budget for energy-efficiency upgrades and possible rewiring/heating improvements. The area has high crime statistics and is in a very deprived ward, which will be a consideration for some purchasers.
In summary: a characterful period house with good space and location, ideal for an owner-occupier family or buyer seeking renovation potential. Chain-free freehold ownership and a private garden add to the appeal, but scope and cost of necessary works should be factored into any offer.
3 bedroom terraced house for sale in Beresford Road, Adamsdown, Cardiff, CF24 — £175,000 • 3 bed • 1 bath • 1184 ft²
3 bedroom terraced house for sale in Arabella Street, Cardiff, CF24 — £250,000 • 3 bed • 2 bath • 1020 ft²
4 bedroom terraced house for sale in North Road, Heath, Cardiff, CF14 — £300,000 • 4 bed • 2 bath • 1412 ft²
3 bedroom semi-detached house for sale in Lansdowne Road, Canton, Cardiff, CF5 — £275,000 • 3 bed • 1 bath • 1020 ft²
3 bedroom terraced house for sale in Lisvane Street, Cathays, Cardiff, CF24 — £335,000 • 3 bed • 1 bath • 1090 ft²
3 bedroom terraced house for sale in Wells Street, Cardiff, CF11 — £240,000 • 3 bed • 1 bath • 1055 ft²






















































