Chain-free apartment with garden and two parking spaces near shops and station.
Chain-free ground-floor flat with private garden
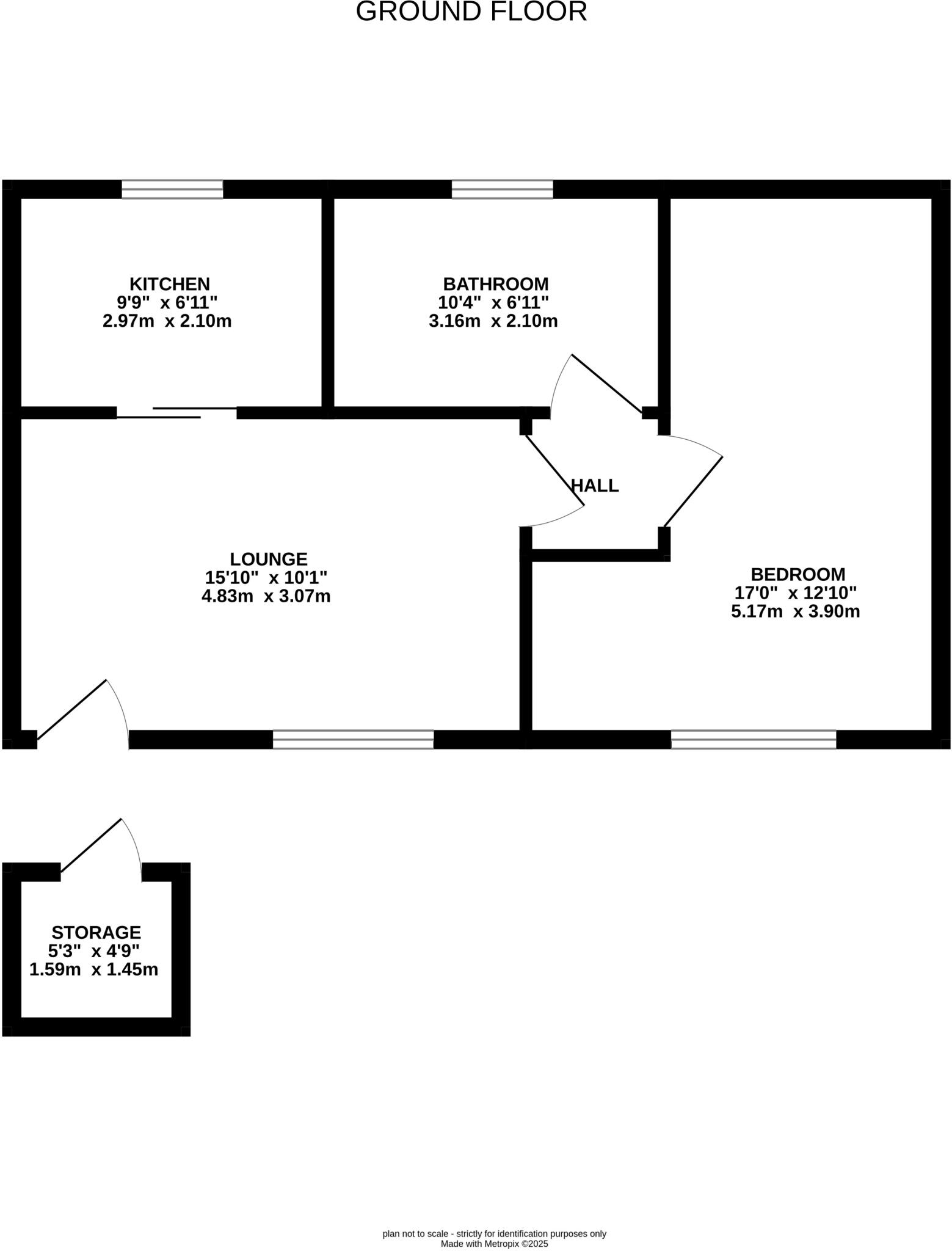
A chain-free, ground-floor flat set in popular Farsley, offered with two allocated parking spaces and a small private garden. The living room flows to a separate kitchen and an inner lobby leading to a double bedroom and three-piece bathroom. Practical features include gas central heating via boiler and double glazing (install dates unknown).
The building dates from the 1980s and the apartment will suit a buyer happy to modernise — décor and fittings are dated and the property needs cosmetic refurbishment throughout. There are notes of low-maintenance external elements but image descriptions suggest potential roof issues on the garden structure that should be inspected.
Leasehold with 88 years remaining and no onward chain removes a sales-contingency risk; council tax is very low. Commuters benefit from nearby New Pudsey station and local shops on Farsley Town Street; fast broadband and excellent mobile signal are practical pluses. Be aware the local crime rate is above average — viewings and surveys should check security and condition before purchase.
 2 bedroom apartment for sale in Flat 2, Mill Beck Close, Farsley, Pudsey, West Yorkshire, LS28 — £170,000 • 2 bed • 2 bath • 580 ft²
 2 bedroom apartment for sale in Flat 2, Mill Beck Close, Farsley, Pudsey, West Yorkshire, LS28 — £170,000 • 2 bed • 2 bath • 580 ft² 2 bedroom semi-detached house for sale in New Park Croft, Farsley, Pudsey, West Yorkshire, LS28 — £210,000 • 2 bed • 1 bath • 578 ft²
 2 bedroom semi-detached house for sale in New Park Croft, Farsley, Pudsey, West Yorkshire, LS28 — £210,000 • 2 bed • 1 bath • 578 ft² 2 bedroom apartment for sale in Whitehall Green, Leeds, West Yorkshire, LS12 — £100,000 • 2 bed • 1 bath • 527 ft²
 2 bedroom apartment for sale in Whitehall Green, Leeds, West Yorkshire, LS12 — £100,000 • 2 bed • 1 bath • 527 ft² 2 bedroom terraced house for sale in Newlands, Farsley, West Yorkshire, LS28 — £200,000 • 2 bed • 1 bath • 837 ft²
 2 bedroom terraced house for sale in Newlands, Farsley, West Yorkshire, LS28 — £200,000 • 2 bed • 1 bath • 837 ft² 1 bedroom apartment for sale in Greenleigh Court, Pudsey, LS28 — £95,000 • 1 bed • 1 bath • 444 ft²
 1 bedroom apartment for sale in Greenleigh Court, Pudsey, LS28 — £95,000 • 1 bed • 1 bath • 444 ft² 2 bedroom apartment for sale in Flat 2, Raynville Road, Leeds, West Yorkshire, LS13 — £85,000 • 2 bed • 1 bath • 704 ft²
 2 bedroom apartment for sale in Flat 2, Raynville Road, Leeds, West Yorkshire, LS13 — £85,000 • 2 bed • 1 bath • 704 ft²


















































