Large, characterful one-bedroom loft in Wood Wharf, ready to personalise..
Open-plan loft living with exposed concrete and brickwork
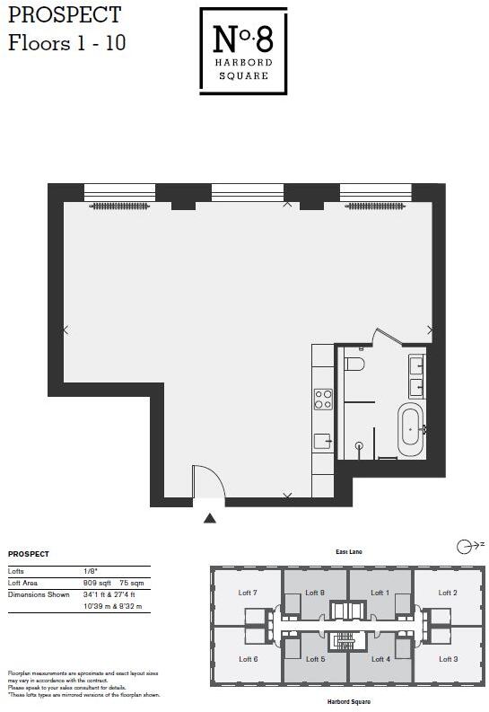
Large one-bedroom: c.809 sq ft — unusually spacious for E14
Residents’ garden terrace and access to Wood Wharf amenities
Completed and ready to move into
Excellent transport: Jubilee, Elizabeth lines, DLR nearby
Leasehold with 235 years remaining
Community heating scheme; check service charges and running costs
Local crime rated high; verify security and neighbourhood safety
This large one-bedroom loft at No.8 Harbord Square offers flexible, open-plan living across approximately 809 sq ft. Exposed concrete ceilings, brick walls and Crittall-style windows give an industrial, characterful canvas you can personalise — ideal for buyers who want a distinctive, adaptable home rather than a turnkey cookie-cutter flat.
Set within the 128-acre Canary Wharf private estate, the apartment is a short walk from Jubilee and Elizabeth lines, DLR and the Thames River Bus. Residents benefit from a communal garden terrace and immediate access to Wood Wharf’s shops, cafes and riverside amenities. The property is completed and ready to move into.
Practical points: the home is leasehold with 235 years remaining and uses a community heating scheme. Broadband speeds are average. Important local considerations include a high crime score for the area and council tax details are not provided — buyers should verify running costs, service charges and specific security arrangements.
This is a strong option for a first-time buyer seeking a spacious, characterful one-bedroom in a highly connected, newly built development. If you value location, creative freedom to configure your interior and long lease security, this apartment delivers; if you need quiet suburban streets or guaranteed low-crime surroundings, investigate neighbourhood safety and on-site management before committing.
2 bedroom apartment for sale in No.8 Harbord Square, Canary Wharf, E14 — £936,000 • 2 bed • 1 bath • 1037 ft²
1 bedroom apartment for sale in No.8 Harbord Square, Canary Wharf, E14 — £805,500 • 1 bed • 1 bath • 809 ft²
2 bedroom apartment for sale in No.8 Harbord Square, Canary Wharf, E14 — £990,000 • 2 bed • 1 bath • 1037 ft²
2 bedroom apartment for sale in No.8 Harbord Square, Canary Wharf, E14 — £1,025,000 • 2 bed • 1 bath • 1037 ft²
2 bedroom apartment for sale in No.8 Harbord Square, Canary Wharf, E14 — £967,500 • 2 bed • 1 bath • 1037 ft²
1 bedroom flat for sale in 8 Harbord Square, Canary Wharf, London, E14 — £819,000 • 1 bed • 1 bath • 809 ft²






































