Secure underground parking and fast rail links into London.
Second-floor modern apartment with lift access
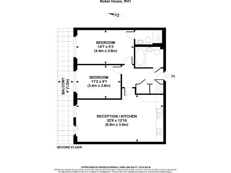
Light-filled, second-floor apartment in central Redhill, offered chain-free with a secure underground parking space. The open-plan reception and floor-to-ceiling glazing create a sociable living area; the contemporary kitchen includes integrated appliances and the master bedroom benefits from an en-suite. At about 686 sq ft the layout feels generous for a two-bedroom urban home.
This property suits first-time buyers or investors seeking a low-entry point near excellent rail links and town-centre amenities. Leasehold terms are long (about 135 years remaining) and ground rent is modest (£50). The building is modern, has lift access and a communal entrance, supporting easy everyday living.
Buyers should note the apartment’s heating is electric (room heaters), which can be pricier than gas central heating. There is a high crime statistic for the area which may affect insurance and personal security considerations. A buyer’s commission may be required on completion — check costs before proceeding.
Overall, this is a practical, ready-to-move-in urban home with good transport links and parking, offering straightforward rental or homeownership potential for someone willing to accept electric heating and local area safety considerations.
2 bedroom flat for sale in Chapel Road, Redhill, RH1 — £260,000 • 2 bed • 2 bath • 671 ft²
2 bedroom flat for sale in Marketfield Way, Redhill, RH1 — £390,000 • 2 bed • 2 bath • 775 ft²
2 bedroom flat for sale in Warwick Road, Redhill, Surrey, RH1 — £275,000 • 2 bed • 2 bath • 743 ft²
2 bedroom apartment for sale in Queensway, Redhill, RH1 — £240,000 • 2 bed • 2 bath • 689 ft²
2 bedroom apartment for sale in Station Road, Redhill, Surrey, RH1 — £250,000 • 2 bed • 1 bath • 614 ft²
2 bedroom apartment for sale in Marketfield Way, Redhill, Surrey, RH1 — £375,000 • 2 bed • 2 bath • 687 ft²














































