CH7 1BQ - High street retail property for sale in 49 High Street, Mol…

View on Property Piper

High street retail property for sale in 49 High Street, Mold, CH7 1BQ, CH7

Summary - 49, HIGH STREET CH7 1BQ

1 bed 1 bath Retail Property (high street)

**Standout Features:**
- Prime location on Mold High Street
- Five modernized apartments (1 & 2-bedroom)
- Commercial unit currently let to a barbershop
- Fully refurbished in 2018 with high-quality fixtures
- Strong rental income of £54,372 per annum (yield 9.08%)
- Communal courtyard enhancing outdoor space
- Freehold, chain-free sale
- High energy ratings: Shop - C, Apartments - D

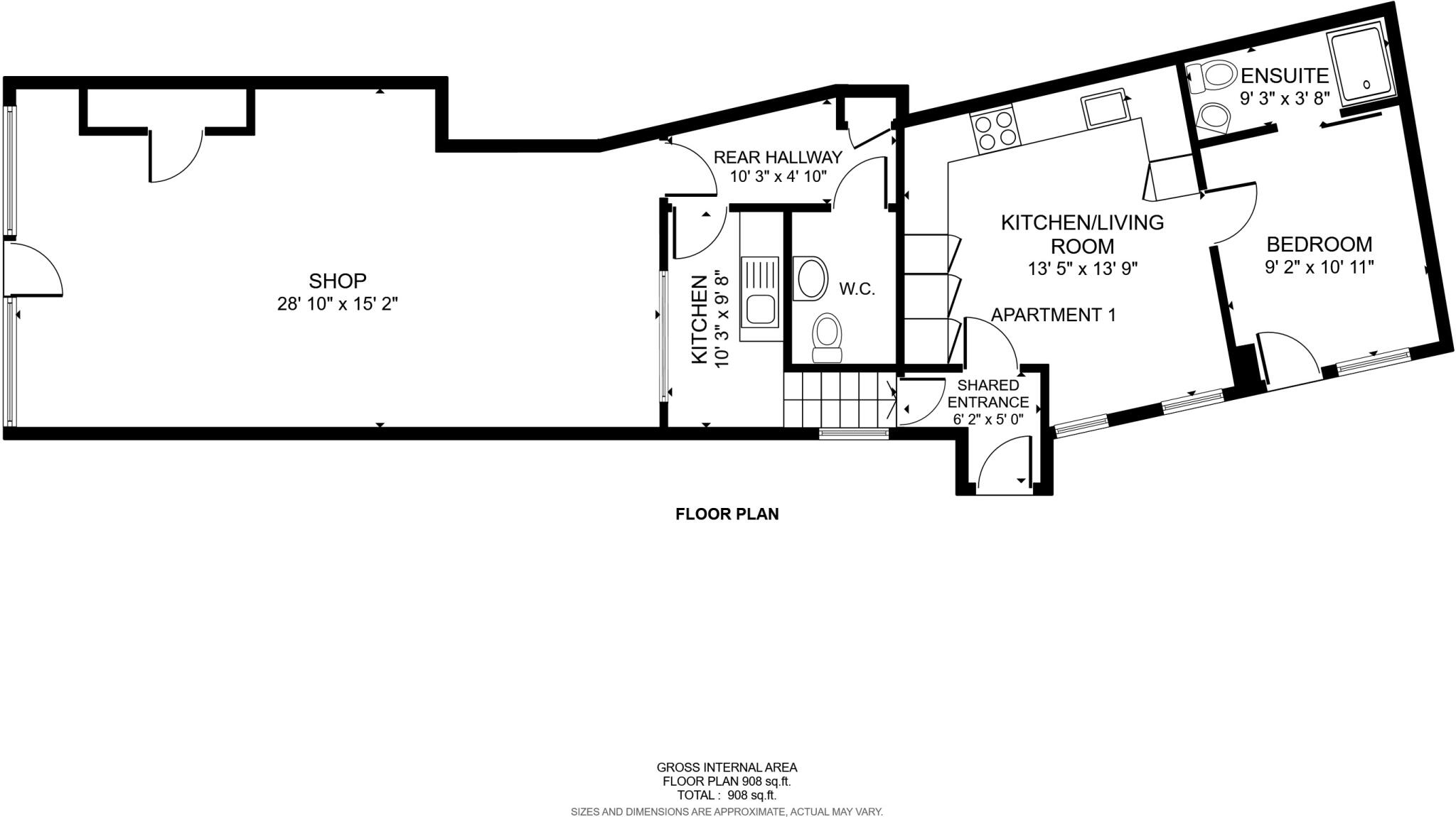
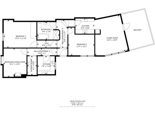
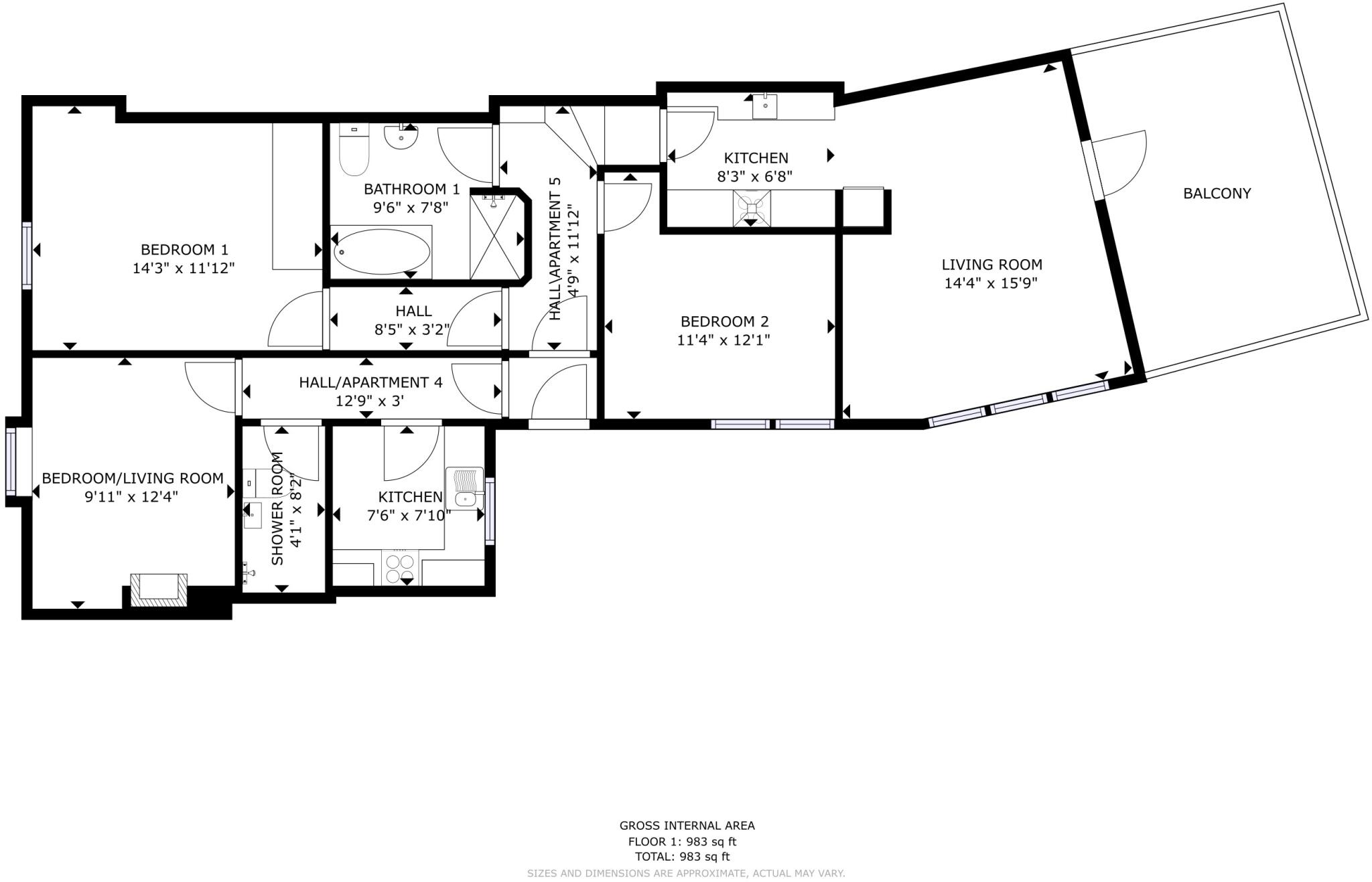
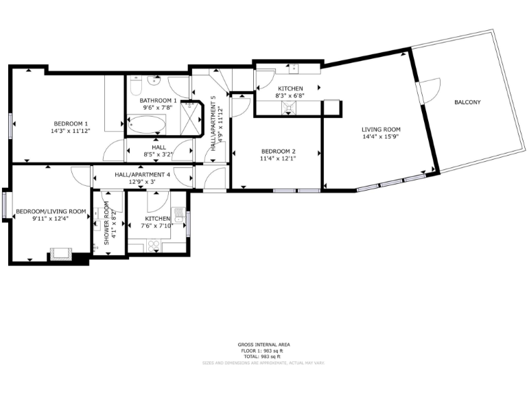
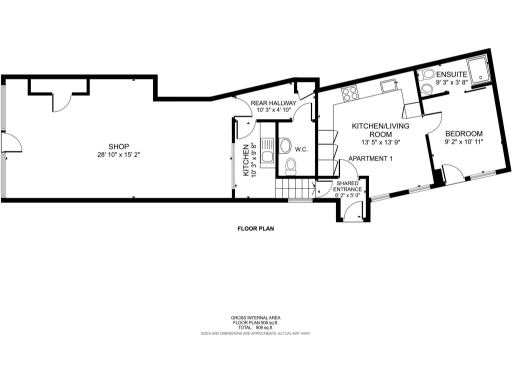
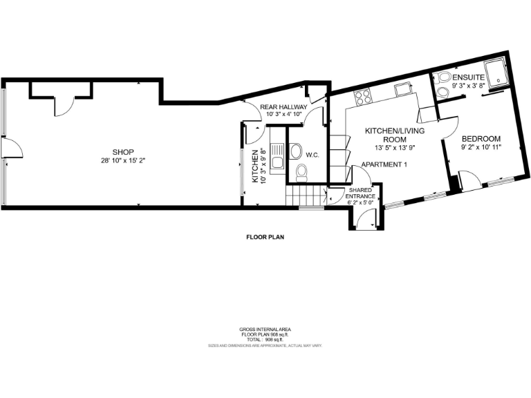
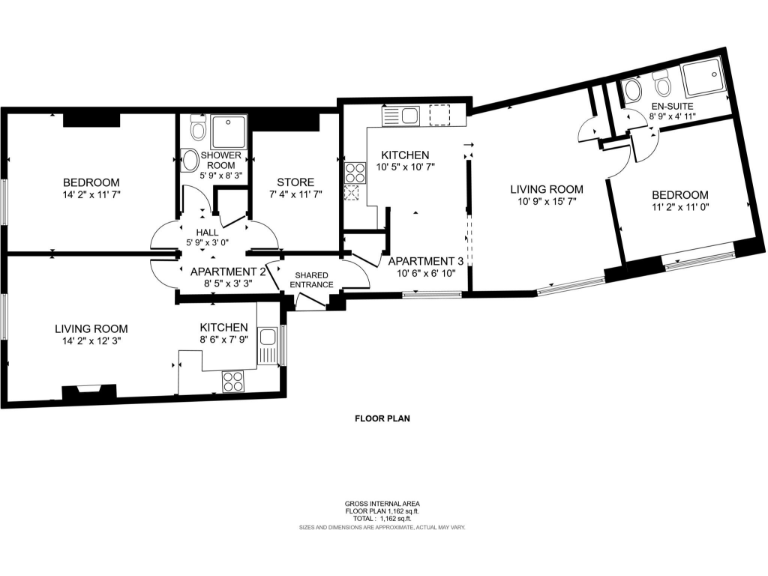
This impressive investment property on Mold High Street combines modern living with a vibrant commercial presence. The substantial three-story building houses five self-contained apartments and a well-established barbershop, creating appealing opportunities for both rental income and owner occupancy. Each apartment features stylish, fitted kitchens and wet floor shower rooms, ideal for attracting quality tenants. The highlight is Apartment No. 5, boasting two double bedrooms and a lovely balcony with expansive views. Completed in 2018, the property meets current regulations and offers attractive communal spaces, including a courtyard.

While the location benefits from strong commercial footfall, potential buyers should note that the crime rate is above average in the area. However, the low council tax and above-average mobile reception provide appealing conveniences. Located near vital transport links and amenities, this property reflects the perfect blend of investment and lifestyle, ready to accommodate families, young professionals, and savvy investors looking for a substantial annual yield. Don't miss the chance to secure this rare, high-yielding gem in a thriving market town—an opportunity that won't last long!

Property Details

Brochure Descriptions

Image Descriptions

Floorplan Description

Rooms

Textual Property Features

Detected Visual Features

EPC Details

Nearest Bars And Restaurants

,,,,}

Nearest General Shops

,,}

Nearest Grocery shops

,,}

Nearest Supermarkets

,,}

Nearest Religious buildings

,,}

Nearest Medical buildings

,,,}

Nearest Airports

}

Nearest Leisure Facilities

,,,,}

Nearest Tourist attractions

,,}

Nearest Train stations

,,,,}

Nearest Bus stations and stops

,,,,}

Nearest Hotels

,,}

Tags

Local Market Stats

AirBnB Data

Similar Properties

Meta

High Res Images

Compatible Images

Low res Images

Thumbnails

Raw Images

High Res Floorplan Images

Compatible Floorplan Images

Low res Floorplan Images

FloorplanImages Thumbnail

Raw Floorplan Images