Flexible two-floor home with strong rental potential near transport links.
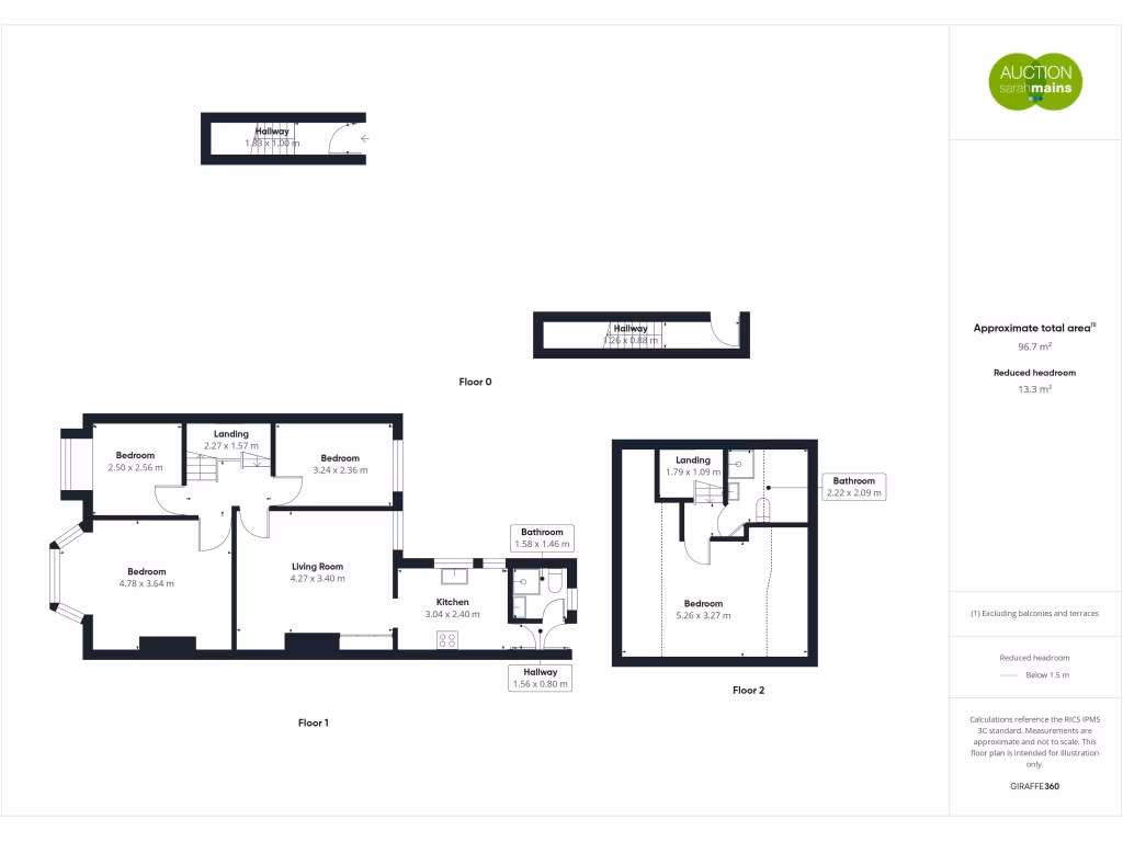
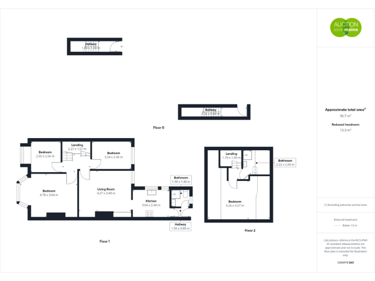
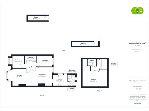
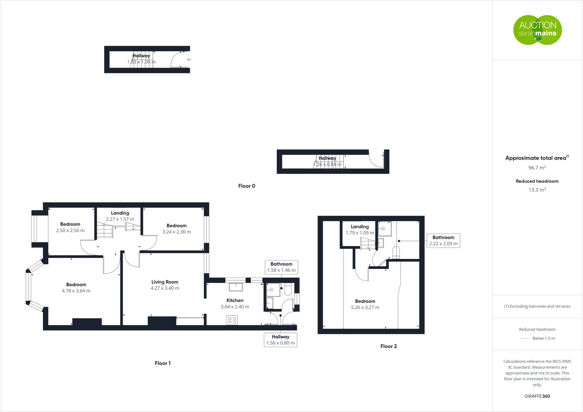
Four bedrooms including large dual-aspect top-floor room
Approx 1,040 sq ft living space across two storeys
Two shower rooms; practical for shared occupancy or family use
Long lease (997 years) and low Council Tax Band A
EPC Rating D; heating via mains gas boiler and radiators
Kitchen and interiors dated — requires modernisation
Sold unconditionally at auction — funds and surveys required
Local crime above average; consider security improvements
Spacious four-bedroom maisonette arranged over two floors, offered for sale by online auction. The layout includes a generous dual‑aspect top-floor bedroom, two shower rooms and a fitted kitchen — providing flexible living or rental accommodation in a well-connected Heaton location. The property sits on Chillingham Road within easy reach of shops, cafés, bus and Metro links to Newcastle city centre.
Practical positives include a long lease (997 years), low council tax (Band A) and an EPC rating of D. At approximately 1,040 sq ft, the accommodation is larger than many local flats and will appeal to investors or buyers seeking room-to-let potential in a student and young-professional catchment.
There are clear refurbishment needs: the kitchen and some internal fittings are dated and would benefit from modernisation, and the original cavity walls appear to have no added insulation. The property is sold under unconditional auction terms — buyers should budget for immediate completion and carry out their own surveys and due diligence.
Location benefits — fast broadband, excellent mobile signal and a strong rental market nearby — support letting prospects. However, local crime is above average; investors should factor suitable security measures into refurbishment plans. This maisonette is a practical buy for those comfortable with auction purchases who want a flexible, well-located property with scope to add value.
3 bedroom apartment for sale in Tosson Terrace, Heaton, NE6 — £115,000 • 3 bed • 1 bath • 635 ft²
2 bedroom flat for sale in Chillingham Road, Heaton, Newcastle upon Tyne, Tyne and Wear, NE6 5XL, NE6 — £99,000 • 2 bed • 1 bath • 730 ft²
4 bedroom maisonette for sale in Welbeck Road, Walker, Newcastle upon Tyne, Tyne and Wear, NE6 3AA, NE6 — £99,000 • 4 bed • 1 bath
2 bedroom apartment for sale in King John Terrace, Heaton, Newcastle Upon Tyne, NE6 — £135,000 • 2 bed • 1 bath
4 bedroom terraced house for sale in Irthing Avenue, ., Newcastle upon Tyne, Tyne and Wear, NE6 2TQ, NE6 — £95,000 • 4 bed • 1 bath • 1283 ft²
2 bedroom flat for sale in Buckthorne Grove, Heaton, Newcastle upon Tyne, Tyne and Wear, NE7 7PS, NE7 — £100,000 • 2 bed • 1 bath • 711 ft²










































