Secure, low‑maintenance two‑bed retirement flat with communal facilities and long lease..
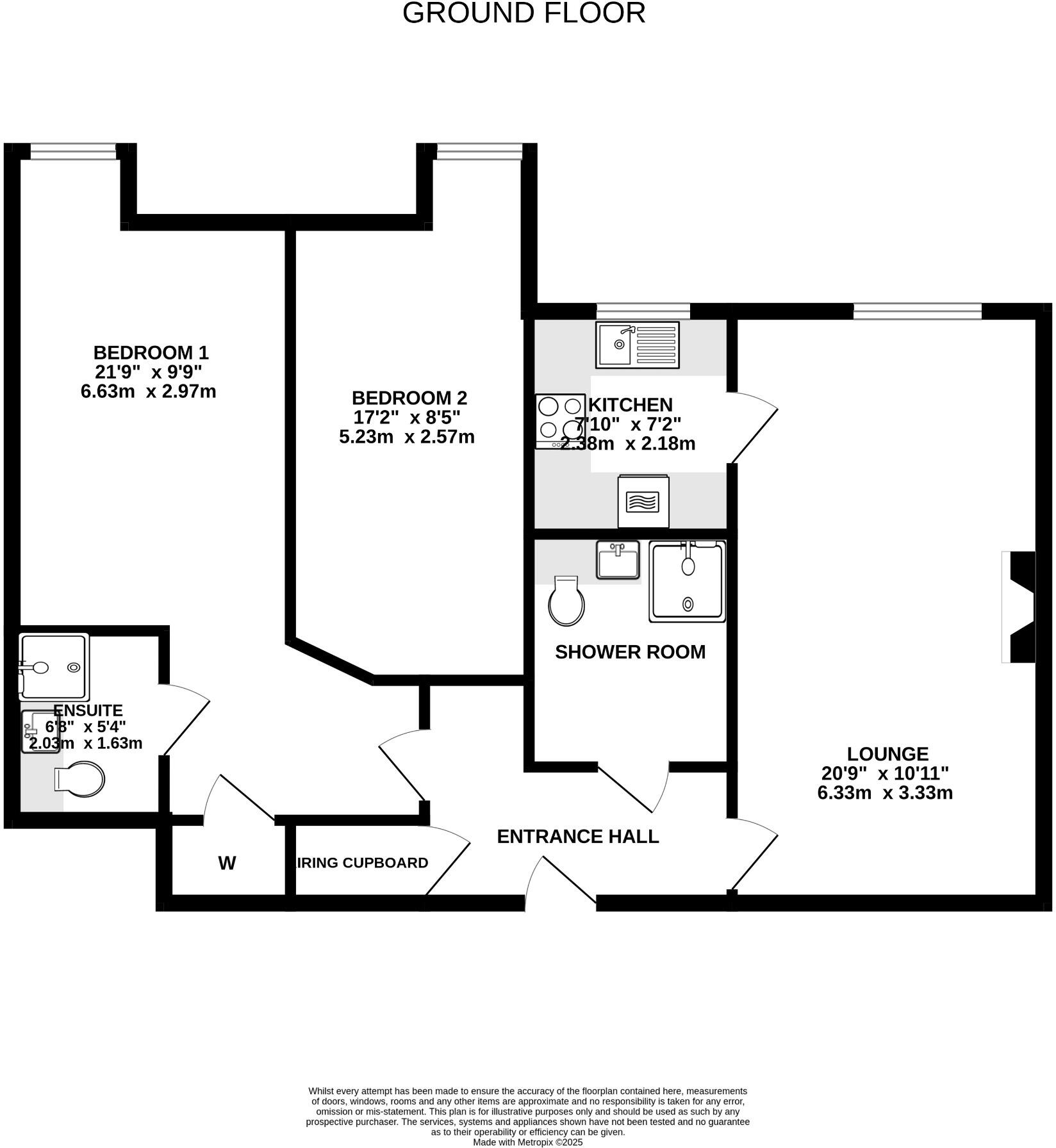
Top‑floor two bedroom, two bathroom apartment with ensuite and walk‑in wardrobe
Electric underfloor heating and UPVC double glazing for efficient warmth
24‑hour emergency call system, house manager, guest suite and communal lounge
Vacant possession; two lifts to all floors for easy access
Leasehold: 990 years remaining — long lease security
Service charge £4,768.92pa and ground rent £495pa — above‑average running costs
Allocated permit parking (approx. £250pa) and visitor parking available
Compact kitchen and overall average living size — not a large family home
Designed for over‑60s living, this top‑floor two‑bedroom apartment combines low‑maintenance comfort with useful communal services. The development offers a 24‑hour emergency call system, house manager, guest suite, communal lounge and landscaped gardens — useful for visitors and peace of mind. Vacant possession and two lifts to all floors make access and moving straightforward.
Internally the layout is traditional and practical: a generous lounge with feature wall fire, two double bedrooms (one with walk‑in wardrobe and ensuite) and a compact but well‑equipped kitchen with integrated appliances. Electric underfloor heating provides even warmth and double glazing improves efficiency. The flat totals about 693 sq ft and sits in a very affluent, low‑crime area with good mobile signal.
Costs and practicalities are straightforward but worth noting: this is leasehold with 990 years remaining, an annual service charge of £4,768.92 and ground rent £495. Permitted parking incurs a separate permit fee (approx. £250/yr). The apartment is well suited to downsizers seeking on‑site support and community features, though buyers should budget for the above running costs and the relatively compact kitchen area.
Overall the property is a low‑upkeep, security‑focused retirement apartment in a popular McCarthy & Stone development. It’s aimed at people wanting communal facilities and reassurance, rather than someone seeking a large family home or extensive private garden space.
2 bedroom retirement property for sale in Beaulieu Road, Dibden Purlieu, SO45 — £275,000 • 2 bed • 2 bath • 750 ft²
1 bedroom apartment for sale in Coppice Gate, Beaulieu Road, Southampton, SO45 4PW, SO45 — £249,950 • 1 bed • 1 bath • 1184 ft²
1 bedroom apartment for sale in Haven Court, Southampton Road, Hythe, SO45 — £225,000 • 1 bed • 1 bath • 561 ft²
2 bedroom retirement property for sale in Beaulieu Road, Dibden Purlieu, SO45 — £335,000 • 2 bed • 1 bath • 797 ft²
2 bedroom apartment for sale in Farringford Court, Avenue Road, Lymington, Hampshire, SO41 9PA, SO41 — £215,000 • 2 bed • 1 bath • 737 ft²
2 bedroom apartment for sale in Southampton Road, Hythe, SO45 — £274,000 • 2 bed • 2 bath • 936 ft²


























































