High-spec, chain-free Victorian house near Richmond station — ideal commuter family home..
Chain-free Victorian end-of-terrace, refurbished to high standard in 2022
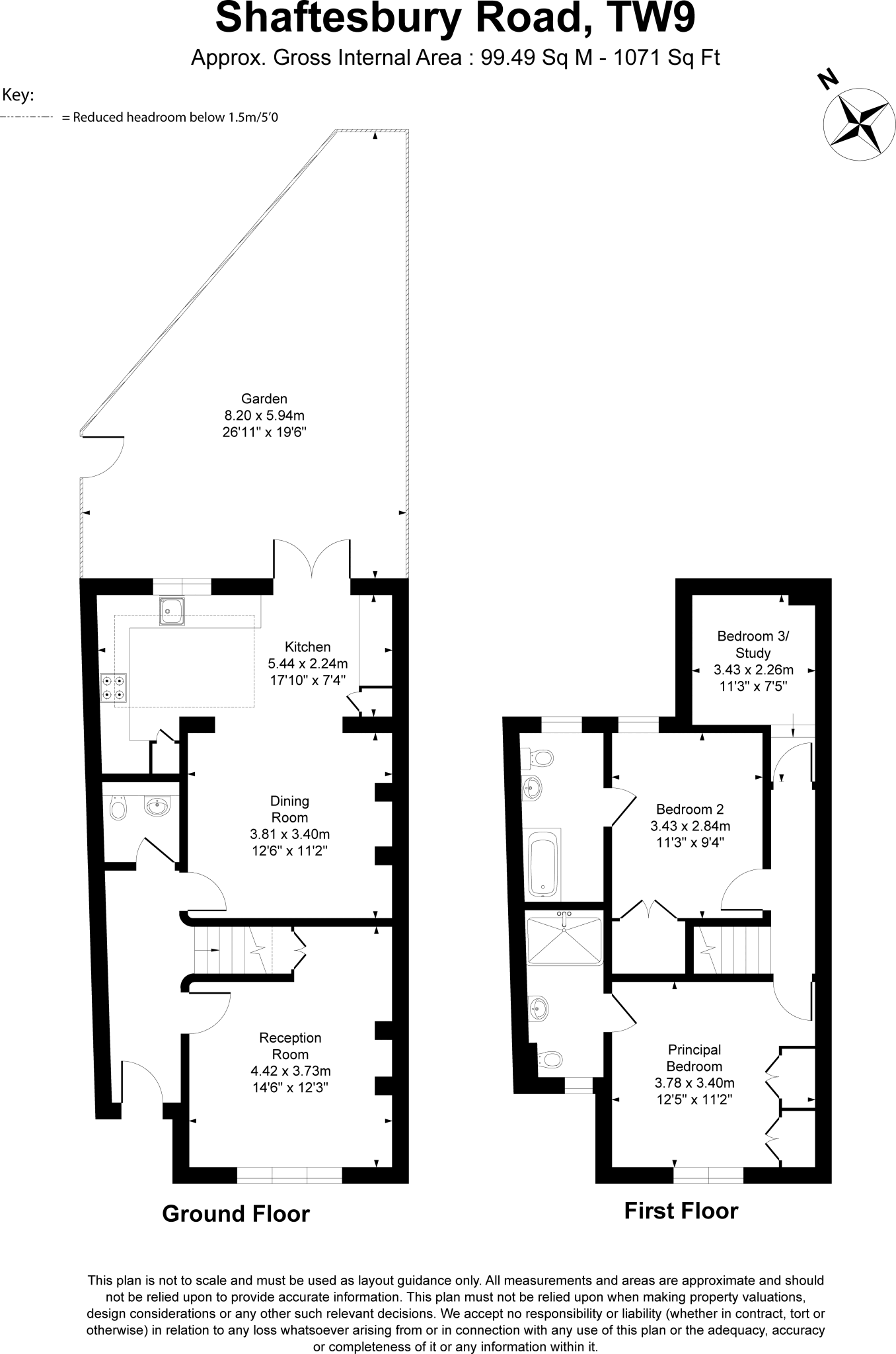
Two double bedrooms, both with ensuite bathrooms
Third small bedroom ideal as study or nursery
Open-plan kitchen/dining/family room with underfloor heating
Private paved rear garden, modest in size
Solid brick walls (pre-1900) — likely no cavity insulation
Council Tax Band F: expensive
Local crime reported above average
This elegant Victorian end-of-terrace on Shaftesbury Road is a high-spec, chain-free home ideal for commuters and small families. Fully refurbished in 2022 with tasteful neutral décor, the house keeps period character—high ceilings, sash windows and a working fireplace—alongside modern comforts such as a fitted Holloways of Ludlow kitchen, Siemens appliances and underfloor heating in the kitchen/dining area.
The layout suits day-to-day family living: a separate front reception room, generous open-plan kitchen/dining/family space that opens onto a private paved garden, two double bedrooms with ensuites and a smaller third bedroom suitable as a study or nursery. Practical details include limestone flooring in the hallway, engineered wood floors downstairs and gas central heating via boiler and radiators.
Be factual about drawbacks: the property dates from before 1900 with solid brick walls that likely lack modern cavity insulation, council tax is high (Band F), and local crime is above average for the area. The rear garden is private but modest in size. Overall, this is a comfortable, move-in-ready Victorian home in a very affluent part of Richmond, close to transport links, parks and highly rated schools.
3 bedroom terraced house for sale in Shaftesbury Road, Richmond, TW9 — £1,750,000 • 3 bed • 2 bath • 1765 ft²
4 bedroom end of terrace house for sale in Selwyn Avenue, Richmond, TW9 — £1,895,000 • 4 bed • 3 bath • 1915 ft²
3 bedroom terraced house for sale in Lower Mortlake Road, Richmond, TW9 — £900,000 • 3 bed • 2 bath • 1083 ft²
3 bedroom end of terrace house for sale in Alton Road, London, TW9 — £885,000 • 3 bed • 2 bath • 1033 ft²
4 bedroom semi-detached house for sale in Castlegate, Richmond, TW9 — £1,395,000 • 4 bed • 2 bath • 1550 ft²
2 bedroom end of terrace house for sale in Jocelyn Road, Richmond, TW9 — £1,100,000 • 2 bed • 1 bath • 925 ft²






















































































