Chain-free two-bedroom bungalow with sunny garden and strong renovation potential..
Chain free detached bungalow, single-level living
Sunny, generous rear garden with decent plot size
Requires full internal modernisation and updating
Potential to add off-street parking subject to planning
Compact rooms, low ceilings and modest overall footprint
Double glazing fitted before 2002; boiler and radiators present
No flood risk; low local crime and fast broadband/mobile signal
Wider area classified as deprived — consider local area profile
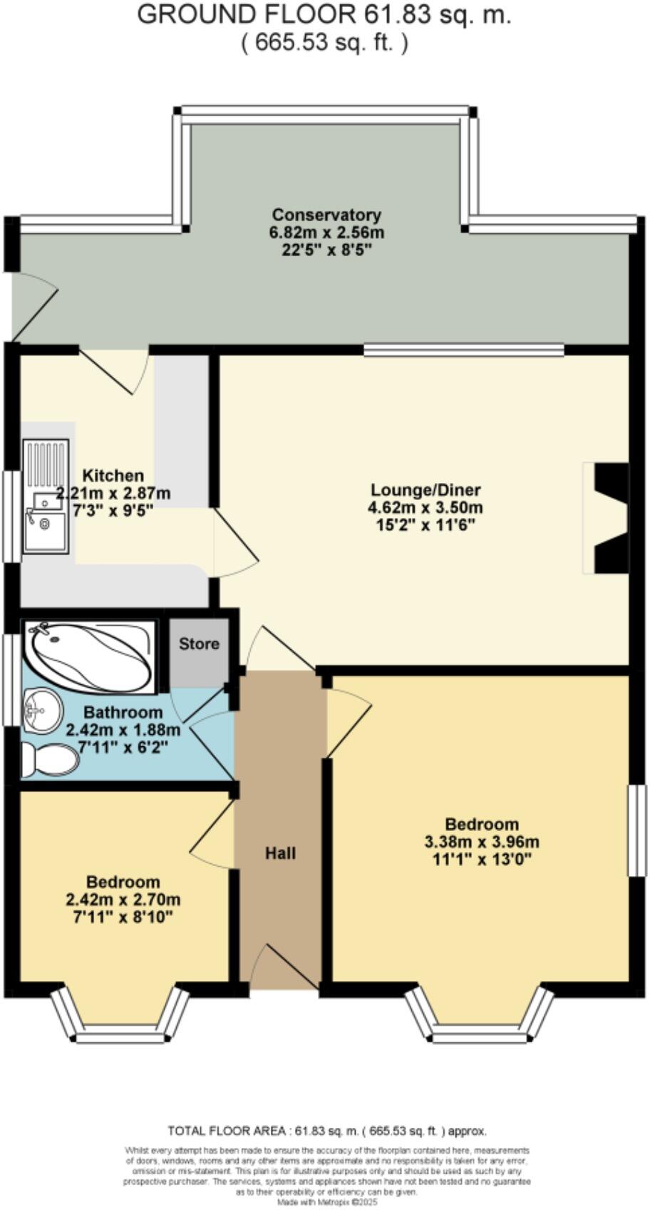
This detached two-bedroom bungalow on Quex View Road is a straightforward, single-level home with genuine potential for someone looking to downsize or create a tailored retirement base. Offered chain free, it sits on a decent plot with a sunny rear garden and scope to add off-street parking to the front (subject to planning). The property totals around 665 sq ft and provides easy access to Birchington’s shops, station and local amenities.
Internally the layout is practical but dated: a modest lounge with an attached lean-to sun room, two bedrooms, separate kitchen and a family bathroom. The property needs modernisation throughout — kitchen and bathroom require updating, decor and finishes are worn, ceilings are relatively low and rooms are compact. Heating is mains gas via a boiler and radiators; double glazing is installed but predates 2002.
For downsizers and buyers seeking a renovation project, this bungalow offers a low-maintenance, single-storey footprint and a sunny garden that will appeal to gardeners or those wanting easy outdoor access. Key positives include no flood risk, low local crime, excellent mobile signal and fast broadband — useful for remote working. Be aware the wider area is classified as more deprived and the house will need investment to bring it up to modern standards.
Practical considerations: the property is freehold and council tax is described as affordable. Early viewing is recommended to appreciate the plot and potential — suitable for someone willing to refurbish rather than move in immediately.
3 bedroom bungalow for sale in Essex Gardens, Birchington, CT7 — £350,000 • 3 bed • 1 bath • 1191 ft²
2 bedroom bungalow for sale in Edward Drive, Birchington, CT7 — £320,000 • 2 bed • 1 bath • 709 ft²
2 bedroom bungalow for sale in Plumstone Road, Birchington, CT7 — £250,000 • 2 bed • 1 bath • 1012 ft²
2 bedroom bungalow for sale in Canterbury Road, Birchington, Kent, CT7 — £350,000 • 2 bed • 1 bath • 1051 ft²
2 bedroom bungalow for sale in Manor Drive, Birchington, CT7 — £400,000 • 2 bed • 1 bath • 1388 ft²
2 bedroom bungalow for sale in Canterbury Road, Birchington, Kent, CT7 — £350,000 • 2 bed • 1 bath • 666 ft²










































