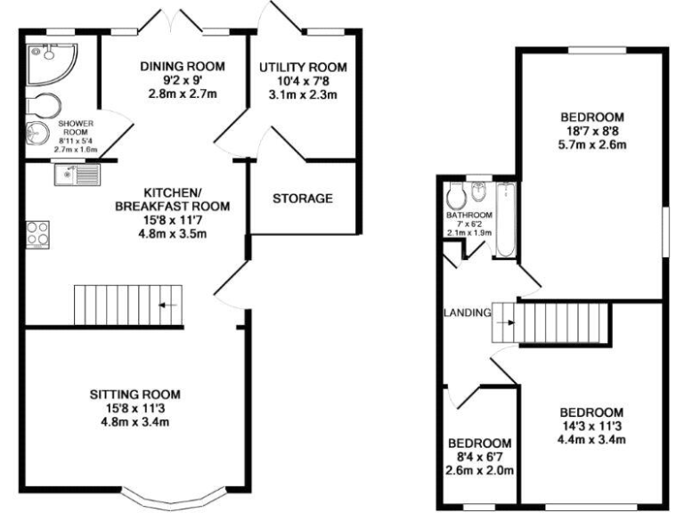
**Standout Features:**
- Three well-proportioned bedrooms
- Double-storey rear extension
- Modern kitchen/diner and separate dining room
- Downstairs shower room and utility room
- Off-street parking with driveway
- Low-maintenance rear garden
- Quiet, residential location with low crime rate
**Concise Summary:**
Discover this beautifully presented three-bedroom semi-detached house, thoughtfully extended to meet the needs of modern family life. This move-in ready home boasts a spacious layout with a welcoming sitting room featuring a large bay window, a generous kitchen/diner perfect for casual meals, and a separate dining room ideal for hosting family gatherings. Convenience is at your fingertips with a utility room and a downstairs shower room, while upstairs, three well-sized bedrooms and a contemporary family bathroom provide ample space for everyone.
Set in a desirable, low-crime neighborhood, this property includes a double drive for off-street parking and a low-maintenance rear garden that offers a private retreat for outdoor relaxation. With excellent schools nearby and fast broadband speeds, it’s perfect for families looking to settle down. Don't miss your opportunity to own this charming home; early viewings are highly recommended!
3 bedroom semi-detached house for sale in Sussex Drive, Chatham, Kent, ME5 — £350,000 • 3 bed • 2 bath • 1125 ft²
3 bedroom semi-detached house for sale in Lords Wood Lane, Chatham, Kent, ME5 — £375,000 • 3 bed • 1 bath • 1023 ft²
3 bedroom semi-detached house for sale in Mafeking Road, Walderslade, Chatham, Kent, ME5 — £330,000 • 3 bed • 1 bath • 1339 ft²
3 bedroom semi-detached house for sale in Quickthorn Crescent, Chatham, ME5 — £325,000 • 3 bed • 1 bath • 891 ft²
3 bedroom semi-detached house for sale in Sussex Drive, Chatham, Kent, ME5 — £325,000 • 3 bed • 1 bath • 947 ft²
3 bedroom semi-detached house for sale in Ballens Road, Lordswood, Kent, ME5 — £325,000 • 3 bed • 1 bath • 808 ft²


























































