**Standout Features:**
- **Location:** Centrally situated in Guildford Town Centre, walking distance to Guildford Mainline Train Station.
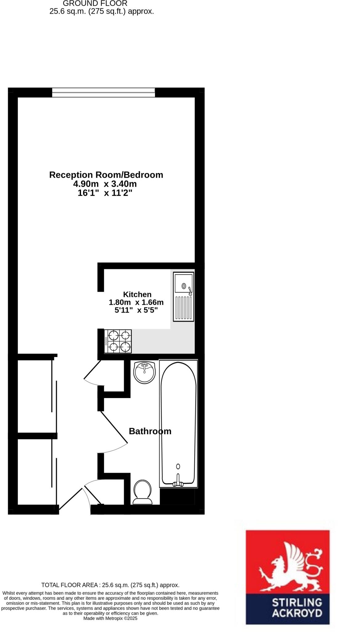
- **Layout:** Spacious studio with a separate kitchen, large studio room, and bathroom with essential fittings.
- **Outdoor Space:** Access to a communal courtyard for relaxation.
- **Amenities:** Close proximity to a wide variety of shops, restaurants, and leisure facilities.
- **Demographics:** Ideal for students and professionals, making it a potentially lucrative investment opportunity.
**Potential Concerns:**
- **Condition:** The apartment may require some modernization.
- **Noise:** Being in a vibrant urban area means potential exposure to noise.
- **Community Scheme Heating:** Less individual control over heating preferences.
This well-located studio apartment offers a fantastic opportunity for first-time buyers or investors looking to tap into the thriving rental market in Guildford. The spacious living area overlooks a peaceful communal courtyard, while the separate kitchen provides added convenience. With essential amenities, top-rated schools, and excellent transport links at your doorstep, this property embodies both comfort and practicality. However, potential buyers should be aware that some modernization may be required. Don’t miss out on this gem in a cosmopolitan neighbourhood, where urban living meets accessibility—ideal for young professionals or as a rental investment!
Studio flat for sale in Millmead Terrace, Guildford, GU2 — £145,000 • 1 bed • 1 bath • 323 ft²
Studio flat for sale in Portsmouth Road, Guildford, Surrey, GU2 — £155,000 • 1 bed • 1 bath
Studio flat for sale in High Street, Guildford, Surrey, GU1 — £135,000 • 1 bed • 1 bath
1 bedroom flat for sale in Portland Terrace, Harvey Road, Guildford, Surrey, GU1 — £165,000 • 1 bed • 1 bath
Ground floor studio flat for sale in Kings Road, Guildford, GU1 — £160,000 • 1 bed • 1 bath
1 bedroom flat for sale in Quarry Street, Guildford, Surrey, GU1 — £299,950 • 1 bed • 1 bath • 542 ft²






















































