Characterful three‑bed home with large garage, workshop and mature gardens.
Grade II Listed 17th‑century terraced cottage with period features
Trafalgar House is a Grade II Listed 17th‑century mid‑terrace cottage quietly set in the centre of Witheridge, a sought‑after village with local shops, a primary school and community facilities. The house retains a wealth of period character — exposed beams, open fireplaces, oak worktops and panelled rooms — and offers spacious, flexible living across multiple levels for a growing family or buyers seeking a character home.
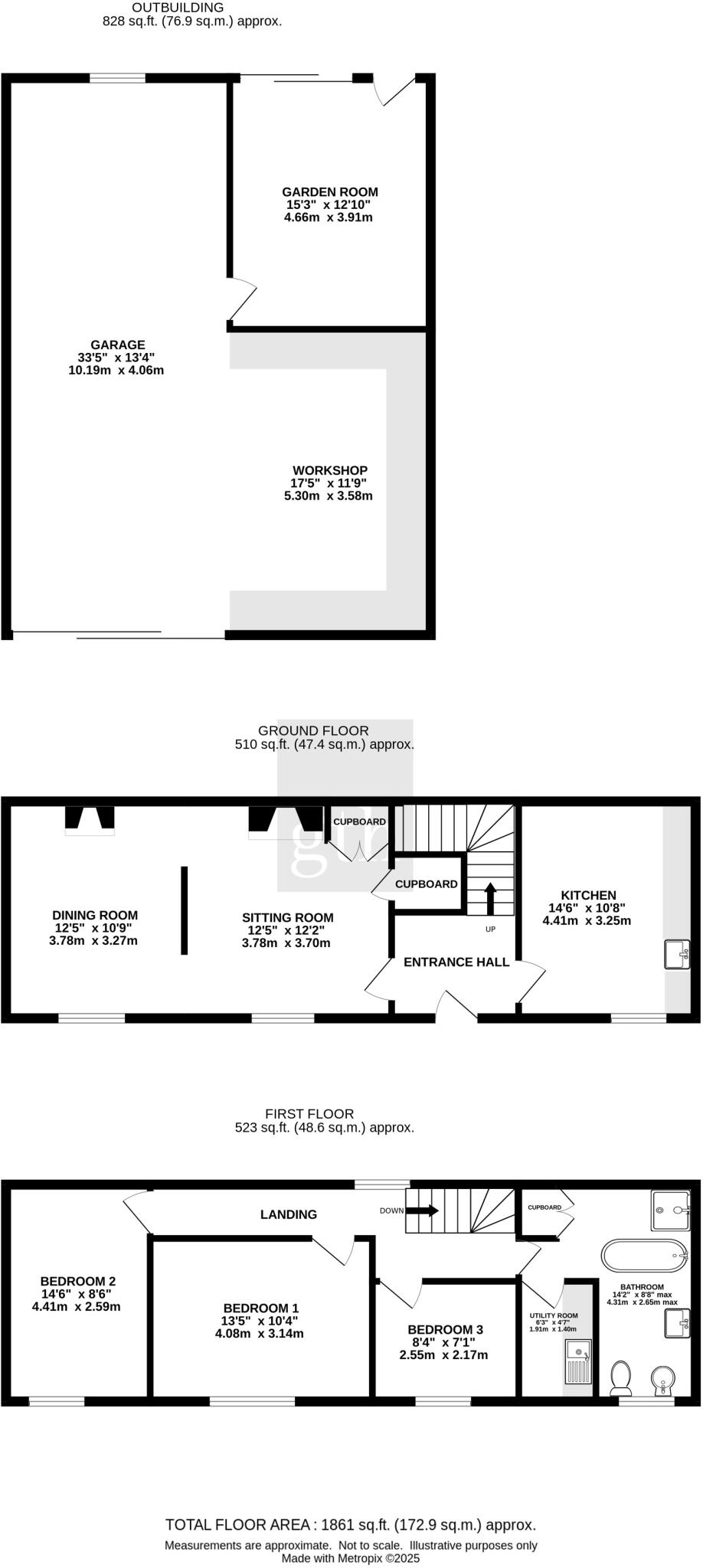
The property sits with a detached garage and large workshop a short distance from the house, providing secure off‑street parking for two vehicles and useful hobby or storage space. A garden room opens onto extensive lawns, mature shrubs and a paved patio with greenhouse — a genuine outdoor entertaining and gardening asset for summer use. Superfast broadband and excellent mobile coverage support home working or streaming.
Practical realities are clear: the house is Grade II Listed and in a conservation area, which will restrict alterations and can complicate repairs or extensions. There is a single bathroom serving three bedrooms and some fixtures and finishes are of a rustic, original nature rather than modern standard. Interested buyers should allow time and budget for any sympathetic maintenance, listed‑consent processes and upgrading where desired.
Overall this is a characterful village cottage with considerable space, a valuable separate garage/workshop and generous gardens. It will suit buyers who value historic charm and village life and are comfortable managing the responsibilities and constraints that come with a listed property.
4 bedroom terraced house for sale in Witheridge, EX16 — £350,000 • 4 bed • 2 bath • 1897 ft²
2 bedroom cottage for sale in West Street, Witheridge, Tiverton, EX16 — £220,000 • 2 bed • 1 bath • 937 ft²
5 bedroom house for sale in Fore Street, Witheridge, Devon, EX16 — £795,000 • 5 bed • 3 bath • 2318 ft²
3 bedroom end of terrace house for sale in The Square, Witheridge, EX16 — £175,000 • 3 bed • 1 bath • 775 ft²
3 bedroom cottage for sale in Chapel Street, Morchard Bishop, EX17 — £450,000 • 3 bed • 1 bath • 1453 ft²
3 bedroom detached house for sale in Fore Street, Morchard Bishop, Crediton, EX17 — £350,000 • 3 bed • 1 bath • 1812 ft²










































































































