Chain-free two-bedroom home with garden and approved extension plans.
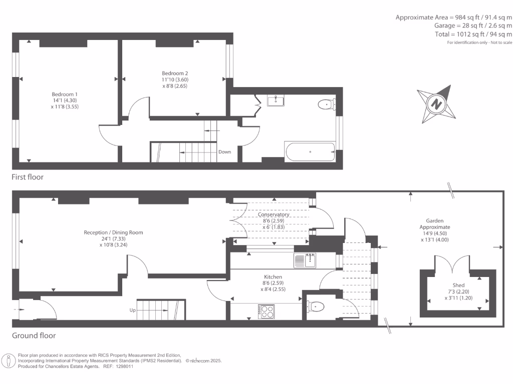
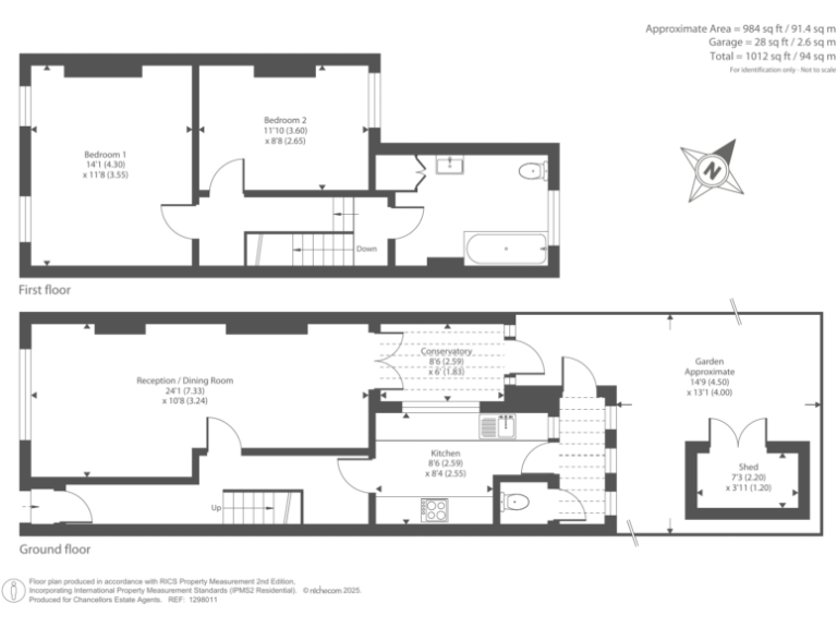
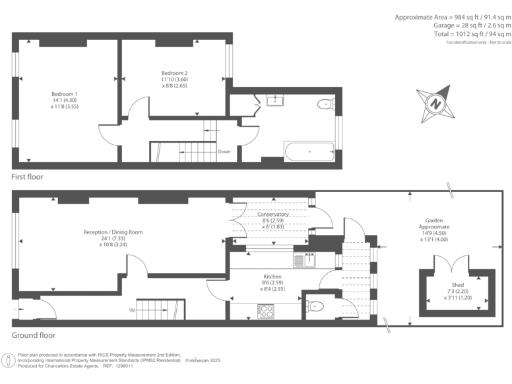
- Two bedrooms with through reception and one bathroom
- Freehold, chain-free sale ready to move quickly
- Private rear garden; plot size small
- Planning permission granted for rear extension and loft
- Mid-terrace Victorian build; solid brick walls (no insulation assumed)
- Heating via mains gas and room heaters, not full modern system
- Very low flood risk; excellent mobile signal and fast broadband
- Council tax band high; buyer should allow budget for upgrades
A charming two-bedroom period cottage tucked on a quiet Mortlake cul-de-sac, overlooking the grounds of St. Mary Magdalen Church. The house offers a through reception, fitted kitchen, one bathroom and a private rear garden — an attractive, compact family home close to Mortlake station and several highly rated schools.
Planning permission has already been granted for a rear extension and loft conversion, giving clear scope to add living space and value. The interior shows a mix of period features and modern finishes, with wood flooring and sash windows in the reception, and presents a straightforward opportunity for a buyer to personalise or extend.
Practical matters are straightforward: freehold tenure, chain-free sale, very low flood risk, excellent mobile signal and fast broadband. Note the plot is small and the house is a mid-terrace Victorian build with solid brick walls likely lacking cavity insulation. Heating is by mains gas and room heaters rather than a modern full central system, and council tax is described as expensive.
This property will suit a young family or buyer seeking a central, school-friendly location with clear extension potential — buyers should budget for insulation improvements and possible heating upgrades when planning works.
2 bedroom terraced house for sale in Worple Street, Mortlake, London, SW14 — £850,000 • 2 bed • 2 bath • 946 ft²
2 bedroom house for sale in Rosemary Gardens, London, SW14 — £725,000 • 2 bed • 1 bath • 696 ft²
3 bedroom semi-detached house for sale in Lower Richmond Road, Mortlake, London, SW14 — £950,000 • 3 bed • 1 bath • 1172 ft²
2 bedroom cottage for sale in Waldeck Terrace, SW14 , SW14 — £750,000 • 2 bed • 1 bath • 684 ft²
3 bedroom terraced house for sale in Rock Avenue, East Sheen, SW14 — £795,000 • 3 bed • 2 bath • 963 ft²
3 bedroom terraced house for sale in First Avenue, SW14 — £1,250,000 • 3 bed • 1 bath • 1125 ft²






























































































