LS22 4AF - 3 bed spacious period duplex in Sicklinghall Road, LS22 4AF

View on Property Piper

3 bedroom duplex for sale in Linton Springs, Sicklinghall Road, LS22

Summary - LINTON SPRINGS 13 SICKLINGHALL ROAD WETHERBY LS22 4AF

3 bed 2 bath Duplex

Large three-bedroom duplex with private gardens and gated parking in Linton Springs.
Approximately 1,800 sq ft duplex living space
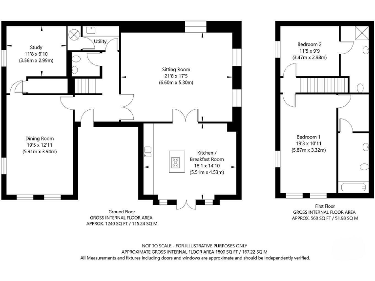
Set within the gated grounds of a former mansion in Linton Springs, this newly renovated three-bedroom duplex blends period character with modern finishes across approximately 1,800 sq ft. The ground floor offers a generous sitting room with full-height sash-style windows, a formal dining room, and a contemporary breakfast kitchen that opens onto privately owned, low-maintenance gardens — an appealing combination for family life and entertaining.

The first floor houses two well-proportioned bedrooms each with modern en-suite shower rooms, plus a versatile ground-floor bedroom or study. The property includes exclusive gated parking and landscaped outdoor space, rare for apartments in the area. Recent upgrades and integrated appliances mean this home is largely move-in ready.

Practical points to note: the tenure is leasehold (circa 980 years remaining) and there is an above-average service charge (£5,426 pa). Heating is electric via room heaters, and the EPC rating is D — running costs may be higher than for gas-heated equivalents. Overall, the layout and finish make this duplex especially suitable for families seeking a substantial, characterful home close to Wetherby with excellent local schools and commuter links.

Property Details

Brochure Descriptions

Image Descriptions

Floorplan Description

Rooms

Textual Property Features

Target Audience

AI Tags

Detected Visual Features

EPC Details

Nearby Schools

Nearest Bars And Restaurants

,,,,}

Nearest General Shops

,,}

Nearest Grocery shops

,,}

Nearest Supermarkets

,,}

Nearest Religious buildings

,,}

Nearest Medical buildings

,,,}

Nearest Airports

}

Nearest Leisure Facilities

,,,,}

Nearest Tourist attractions

,,}

Nearest Train stations

,,,,}

Nearest Bus stations and stops

,,,,}

Nearest Hotels

,,}

Tags

Local Market Stats

Similar Properties

Meta

High Res Images

Compatible Images

Low res Images

Thumbnails

Raw Images

High Res Floorplan Images

Compatible Floorplan Images

Low res Floorplan Images

FloorplanImages Thumbnail

Raw Floorplan Images