Move-in-ready semi-detached home with flexible living and driveway parking.
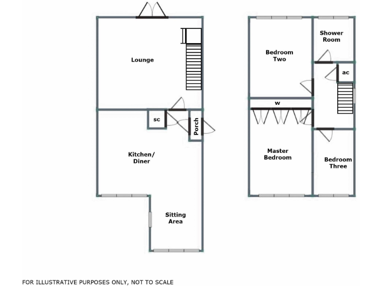
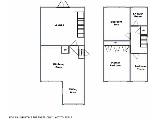
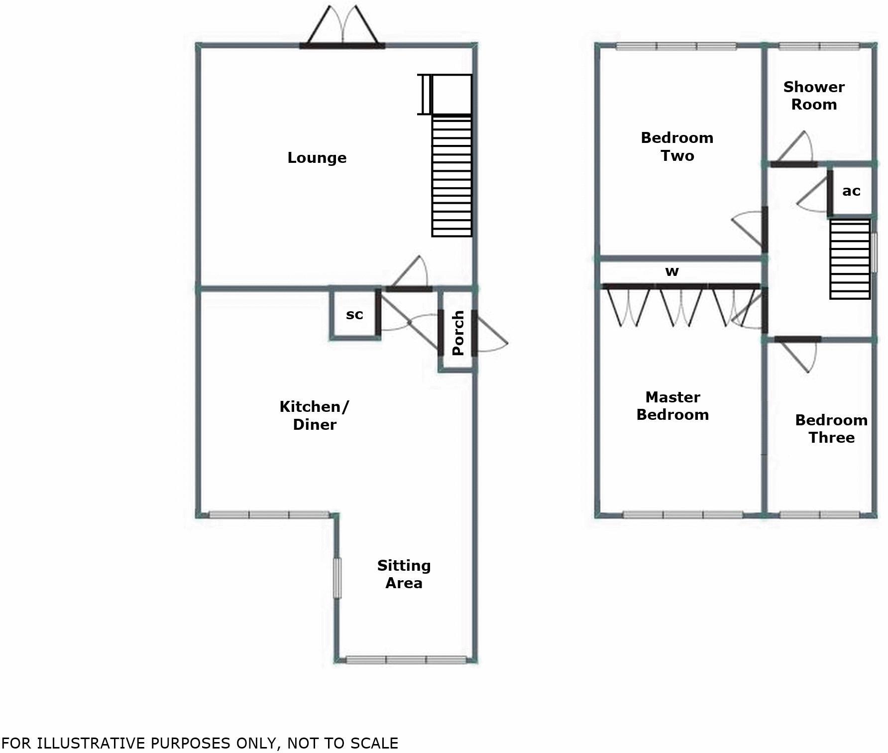
Three bedrooms with flexible converted front sitting area
Contemporary open-plan kitchen-diner with integrated appliances
Private rear garden backing onto the canal, patio and storage outhouses
Off-street driveway parking; small plot size
Single modern shower room only; one bathroom for three bedrooms
Overall internal size modest — approximately 781 sq ft
High local crime level and area deprivation noted
Double glazing and gas central heating; glazing install date unknown
This well-presented three-bedroom semi-detached home offers a contemporary open-plan ground floor and a private garden backing onto the canal. The modern kitchen-diner, large lounge and converted front sitting area give flexible living for families or first-time buyers wanting ready-to-live-in accommodation.
Upstairs provides three well-proportioned bedrooms and a single modern shower room. Practical features include double glazing, gas central heating and useful outdoor storage in two brick-built outhouses. Off-street parking and a driveway add convenience in this quiet cul-de-sac setting opposite a public green.
Buyers should note the property is on a relatively small plot and the overall internal size is modest (circa 781 sq ft). The local area scores high for crime and is described as deprived, which may affect buyer choice and resale dynamics. The house was built in the late 1970s–early 1980s and glazing install date is unknown, so some buyers may wish to check maintenance history and energy performance during survey.
This home suits a family or first-time buyer seeking a move-in-ready house with character, canal-side garden and good commuter links. It also offers straightforward scope for cosmetic updates or modest reconfiguration if more space or modern finishes are desired.
3 bedroom semi-detached house for sale in St. Johns Close, Walsall Wood, Walsall WS9 9NH , WS9 — £260,000 • 3 bed • 1 bath • 786 ft²
3 bedroom semi-detached house for sale in Barns Close, Walsall Wood, WS9 — £280,000 • 3 bed • 1 bath • 1065 ft²
4 bedroom detached house for sale in Prince Street, Walsall Wood, WS9 — £335,000 • 4 bed • 2 bath • 1034 ft²
3 bedroom detached house for sale in Prince Street, Walsall Wood, Walsall, WS9 — £325,000 • 3 bed • 1 bath • 830 ft²
3 bedroom end of terrace house for sale in Beechtree Road, Walsall Wood WS9 9LW, WS9 — £280,000 • 3 bed • 1 bath
3 bedroom semi-detached house for sale in Wrexham Avenue, Walsall, West Midlands, WS2 — £215,000 • 3 bed • 1 bath • 943 ft²






























































































