Private enclosed gardens and move-in ready accommodation in quiet Menstrie street.
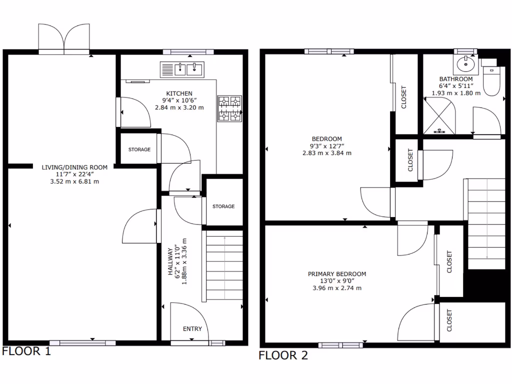
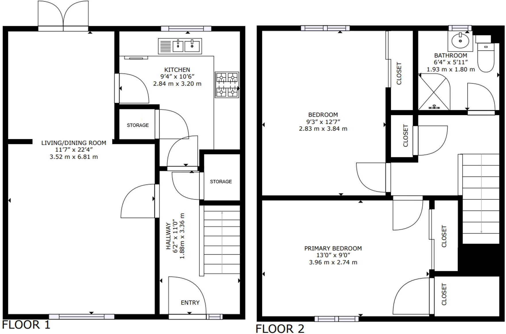
- Two double bedrooms with natural light and space for freestanding furniture
- Bright lounge with dining area and stone fireplace focal point
- Fitted kitchen with direct rear garden access for outdoor use
- Private front and rear gardens fully enclosed by timber fencing
- Freehold tenure, approximately 904 sq ft, affordable council tax
- On-street parking only; no private driveway or garage
- Area classified as very deprived — consider resale and investment risk
- Excellent mobile signal and fast broadband suitable for home working
Set on a quiet residential street in Menstrie, this mid-terraced two-bedroom home offers a practical layout and private outdoor space. The ground floor features a bright lounge with room for dining and a fitted kitchen with direct access to the rear garden. Upstairs there are two well-proportioned bedrooms and a modern shower room, making the property move-in ready for many buyers.
At around 904 sq ft, the accommodation feels larger than many similar terraces. Private front and rear gardens are fully enclosed by timber fencing, useful for children, pets and low-maintenance outdoor living. Broadband speeds are fast and mobile signal is excellent, supporting home working or streaming.
This freehold property suits first-time buyers and those looking to downsize, offering affordable council tax and easy access to local amenities, schools and transport links. Note that parking is on-street only and the surrounding ward is classified as very deprived, which may affect longer-term resale dynamics. There is no flooding risk recorded.
Overall, the house is well-presented and practical, with potential to personalise over time. Buyers seeking a low-hassle home with outdoor space in Menstrie should view to assess fit and future plans.
2 bedroom semi-detached house for sale in Kenningknowes Road, Stirling, FK7 — £199,950 • 2 bed • 1 bath • 829 ft²
4 bedroom detached house for sale in Rowan Crescent, Menstrie, FK11 — £325,000 • 4 bed • 3 bath • 1270 ft²
2 bedroom terraced house for sale in Broomridge Road, Stirling, FK7 — £150,000 • 2 bed • 1 bath • 697 ft²
3 bedroom end of terrace house for sale in Chamfron Gardens,Stirling, FK7 — £190,000 • 3 bed • 2 bath • 694 ft²
3 bedroom detached house for sale in Rowan Crescent, Menstrie, FK11 — £255,000 • 3 bed • 2 bath • 904 ft²
2 bedroom terraced house for sale in Craigend Road, Stirling, FK7 — £145,000 • 2 bed • 1 bath • 614 ft²






































































