Move-in ready family home with high-spec kitchen and low-maintenance garden.
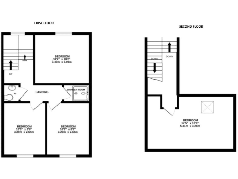
Four bedrooms plus versatile attic room ideal for office or guest space
A beautifully presented four-bedroom end-terrace townhouse in the heart of historic Pembroke Dock, offering modern finishes and practical family space across multiple levels. The high-spec kitchen with built-in appliances and central island, Karndean flooring in many rooms, and a versatile attic room provide immediate move-in comfort and flexibility for home working or guests. The enclosed, low-maintenance rear garden and on-street parking make everyday life straightforward.
Buyers should note practical constraints: the plot is small, parking is on-street only, and the building dates from before 1900 with stone walls that are assumed to have no cavity insulation. Double glazing is present but install date is unknown. The wider area is classed as very deprived with above-average local crime rates — factors that will matter to some buyers and investors.
Energy performance is reasonable: a visible EPC indicates a current rating around D (68) with potential improvement to B (86). Utilities are mains gas with a boiler and radiators. Broadband speeds and mobile signal are described as fast and excellent, supporting remote working and streaming.
This home suits growing families or buyers seeking a stylish, low-maintenance town-centre property with period character and modern upgrades. It is also appropriate for landlords targeting local rental demand, though the small plot and neighbourhood profile should be considered when assessing yield and tenant appeal.
3 bedroom terraced house for sale in Milton Terrace, Pembroke Dock, Pembrokeshire, SA72 — £180,000 • 3 bed • 1 bath
3 bedroom terraced house for sale in Market Street, Pembroke Dock, Pembrokeshire, SA72 — £159,950 • 3 bed • 1 bath
3 bedroom terraced house for sale in Military Road, Pennar, Pembroke Dock, Pembrokeshire, SA72 — £185,000 • 3 bed • 1 bath • 1077 ft²
3 bedroom terraced house for sale in Munro Court, Pembroke Dock, SA72 — £119,950 • 3 bed • 2 bath • 761 ft²
2 bedroom terraced house for sale in Wellington Street, Pembroke Dock, SA72 — £120,000 • 2 bed • 1 bath • 805 ft²
4 bedroom end of terrace house for sale in Woodbine Terrace, Pembroke, Pembrokeshire, SA71 — £220,000 • 4 bed • 1 bath


















































































