Refurbished throughout with annex and strong projected rental returns.
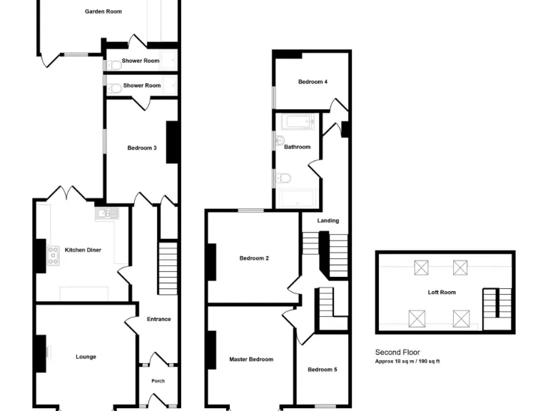
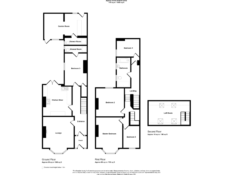
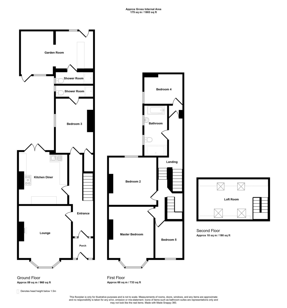
Six bedrooms plus self-contained annex with en-suite
A recently refurbished six-bedroom mid-terrace, steps from Redcar seafront, offering a rare combination of space and strong rental potential. The property includes a self-contained annex, three bathrooms, and modern gas central heating — ready for immediate letting or occupation.
This freehold home has been updated throughout with double glazing and contemporary finishes while retaining period character. The layout suits investors looking for high yield (projected 17.5%) and larger households wanting multiple reception rooms and an annex for guests or extra income.
Buyers should note material considerations: the house is in a very deprived area with very high local crime, sold at auction, and offers on-street parking only. The plot is small and the original solid brick walls are assumed to lack cavity insulation, which could affect heating costs and future retrofit work.
Overall, this is a turn-key, income-focused opportunity in a coastal location — attractive for investors seeking immediate returns or homeowners prepared to trade seafront convenience for an urban setting with some social challenges.
4 bedroom town house for sale in Queen Street, Redcar, North Yorkshire, TS10 — £145,000 • 4 bed • 2 bath • 1016 ft²
4 bedroom semi-detached house for sale in Blenheim Terrace, Redcar, North Yorkshire, TS10 — £300,000 • 4 bed • 1 bath • 1293 ft²
3 bedroom town house for sale in High Street West, Redcar, North Yorkshire, TS10 — £159,950 • 3 bed • 1 bath • 1166 ft²
2 bedroom terraced house for sale in Holder Street, Redcar, North Yorkshire, TS10 — £58,000 • 2 bed • 1 bath • 857 ft²
3 bedroom terraced house for sale in Arthur Street, Redcar, TS10 — £139,950 • 3 bed • 1 bath
6 bedroom town house for sale in Newcomen Terrace, Redcar, North Yorkshire, TS10 — £300,000 • 6 bed • 3 bath • 1958 ft²






















































































