Three-bedroom detached property with garage, sunny garden and countryside views.
Three double bedrooms, single-storey traditional layout
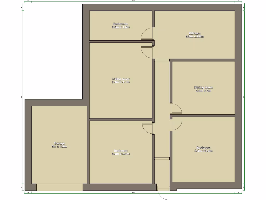
Set on a small plot in semi‑rural Rhigos, this 1920s three‑bedroom detached bungalow offers straightforward, single‑storey living with genuine scope to update. The house benefits from a well‑proportioned living room, a neatly presented kitchen with mountain views, and three double bedrooms — one currently used as a dining room. There is one bathroom with a shower over the bath.
Outside, the rear lawned garden is private and sun‑filled, with gated off‑road parking and a good‑sized garage to the front. Practical advantages include freehold tenure, chain‑free sale, no flood risk and fast broadband, making the house suitable for modern homeworking and family life.
The property dates from 1920 and retains period character but will suit buyers prepared to modernise services and finishes to their taste; some updating is likely needed. The location is a key draw: close to the Brecon Beacons, Zip World and nearby countryside attractions for outdoor lifestyle buyers.
Buyers should note the small overall house and plot size and the single bathroom when considering family needs. The wider area is classified as very deprived economically, which may affect local services and resale considerations, while crime and mobile signal are described as average.
3 bedroom detached bungalow for sale in Hirwaun Road, Hirwaun, Aberdare, CF44 — £219,995 • 3 bed • 2 bath • 1034 ft²
3 bedroom detached bungalow for sale in Alma Street, Aberdare, CF44 — £275,000 • 3 bed • 2 bath • 754 ft²
2 bedroom semi-detached bungalow for sale in The Bryn, Rhigos, Aberdare, CF44 — £189,000 • 2 bed • 1 bath • 527 ft²
3 bedroom semi-detached bungalow for sale in Brodawel, New Road, Aberdulais, Neath, SA10 8HT, SA10 — £220,000 • 3 bed • 1 bath • 796 ft²
3 bedroom detached bungalow for sale in Patricia Close, Twynyrodyn, Merthyr Tydfil, CF47 0RN, CF47 — £280,000 • 3 bed • 1 bath • 788 ft²
3 bedroom detached bungalow for sale in Springfield Gardens, Hirwaun, Aberdare, CF44 — £285,000 • 3 bed • 2 bath • 850 ft²


































































