SS7 1PQ - 6 bed private luxury retreat in Vicarage Hill, SS7 1PQ

View on Property Piper

6 bedroom detached house for sale in Vicarage Hill, Benfleet, SS7

Summary - 243, Vicarage Hill SS7 1PQ

6 bed 5 bath Detached

Secluded six-bedroom estate with pool, hot tub and over three acres in South Benfleet..
- Chain free, freehold – ready to move in
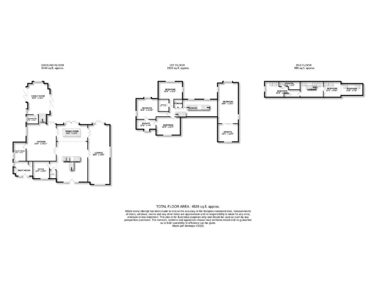
- Over 4,500 sq ft living space across three storeys
- Six bedrooms, five bathrooms; principal suite with en-suite
- High-end Moylan's kitchen and fitted bar for entertaining
- Heated swimming pool, hot tub, terrace and summer house
- Gated drive, double garage and extensive parking
- Built c.1900–1929 with timber frame; likely insulation/upgrades needed
- High running costs expected (pool, hot tub, large house)
An exclusive, chain-free retreat on Vicarage Hill offering more than 4,500 sq ft of flexible living across three levels and set within over three acres of landscaped grounds. The property centres on a high-end Moylan's kitchen and generous reception rooms that flow directly to a terrace, heated swimming pool and hot tub — an easy inside-out entertaining layout for family life and large-scale hosting.

The principal suite and multiple en-suites offer comfortable private accommodation for a large household; two further bedrooms on the top floor suit guests or live-in staff. Outside, a sweeping gated drive, double garage and extensive parking complement the elevated gardens, summer house and far-reaching outlooks. Proximity to Benfleet Station (direct links to London), well-regarded local schools and Boyce Hill Golf Club adds practical everyday appeal.

Important practical points: the house was constructed c.1900–1929 with timber-frame walls noted as having no insulation (assumed), so buyers should budget for modernisation and energy-efficiency upgrades. Running costs are likely to be high given the heated pool, hot tub and the property’s size. Broadband is average; mobile signal is excellent.

Offered with a guide price of £3,000,000–£3,500,000 and freehold tenure, this home suits buyers seeking privacy, space and a high-spec entertaining property in a very affluent pocket of South Benfleet. The plot and layout provide significant potential for further improvement or adaptation to specific lifestyle needs.

Property Details

Image Descriptions

Floorplan Description

Rooms

Textual Property Features

Target Audience

AI Tags

Detected Visual Features

EPC Details

Nearby Schools

Nearest Bars And Restaurants

,,,,}

Nearest General Shops

,,}

Nearest Grocery shops

,,}

Nearest Supermarkets

,,}

Nearest Religious buildings

,,}

Nearest Medical buildings

,,,}

Nearest Airports

,}

Nearest Leisure Facilities

,,,,}

Nearest Tourist attractions

,,}

Nearest Train stations

,,,,}

Nearest Bus stations and stops

,,,,}

Nearest Hotels

,,}

Tags

Local Market Stats

Similar Properties

Meta

High Res Images

Compatible Images

Low res Images

Thumbnails

Raw Images

High Res Floorplan Images

Compatible Floorplan Images

Low res Floorplan Images

FloorplanImages Thumbnail

Raw Floorplan Images