Spacious renovated semi with large terraced garden near Ashdown Forest.
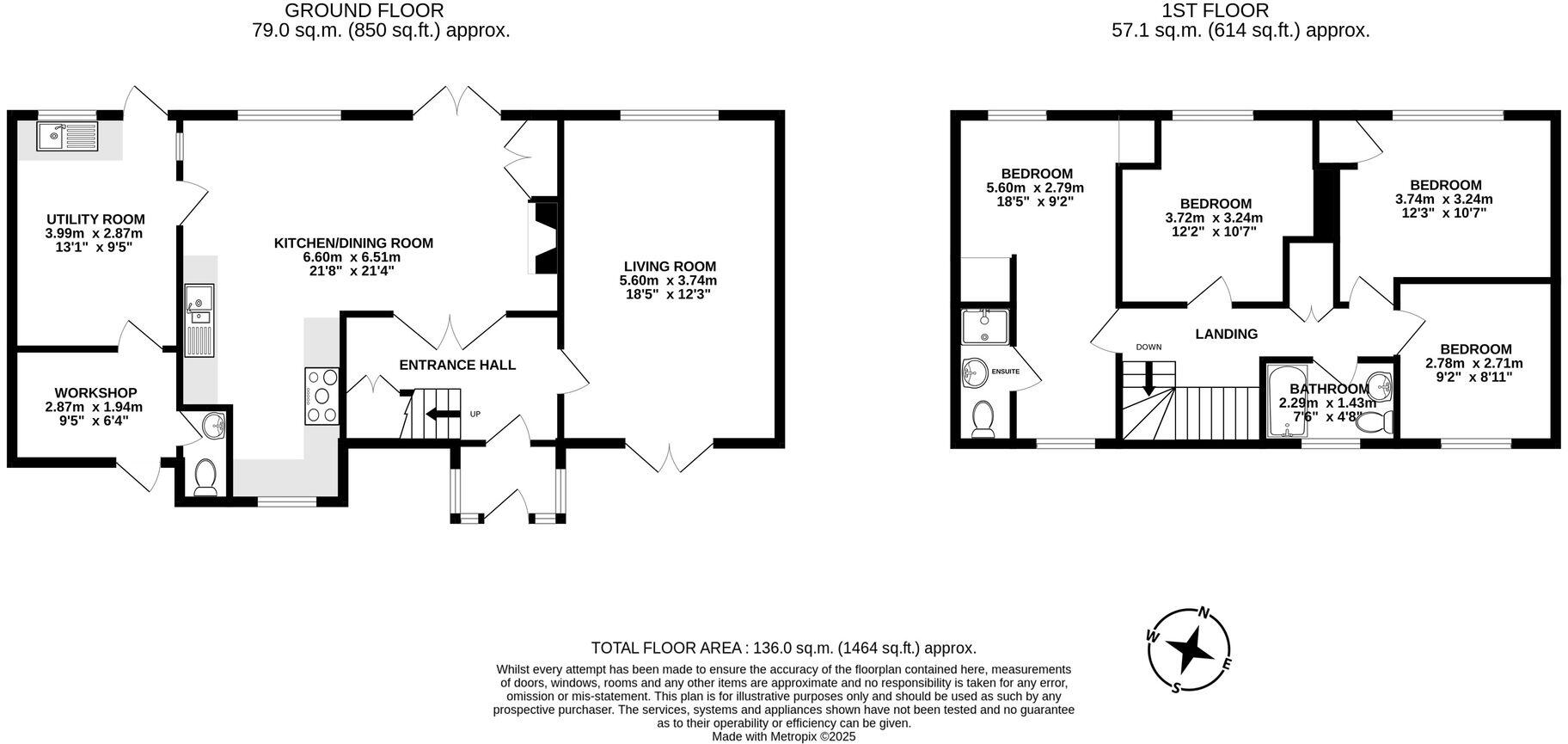
Extended four-bedroom semi with two bathrooms
This extended four-bedroom semi-detached house offers a comfortably spacious family layout across two floors. Recently renovated, the home combines traditional red-brick character with a large L-shaped kitchen/living room that opens onto terraced gardens—ideal for family life and entertaining. The original double-aspect lounge provides a separate reception space and the main bedroom benefits from a double aspect and en suite shower room.
Practical features include a utility room with direct access to a useful workshop, plus a wide driveway providing off-street parking for several vehicles. The rear garden is large and landscaped with lawns, seating areas, fruit trees and a small wooded section, offering scope for play, gardening or extension (subject to consents).
Location is a key strength: Ashdown Close sits in popular Forest Row, near the Ashdown Forest and Royal Ashdown Golf Course, with local shops, cafes and good schools close by. Bus links serve East Grinstead, Crawley and Tunbridge Wells for wider shopping and rail connections.
Notable points: the property is freehold and was built in the 1950s–60s. The EPC rating is D and the area records above-average crime levels; buyers should factor these into budgets and due diligence. Overall this is a roomy, well-updated family home with strong outdoor space and easy access to countryside amenities.
3 bedroom semi-detached house for sale in Hartfield Road, Forest Row, RH18 — £560,000 • 3 bed • 1 bath • 1129 ft²
4 bedroom semi-detached house for sale in Upper Close, Forest Row, RH18 — £550,000 • 4 bed • 2 bath • 1516 ft²
2 bedroom semi-detached house for sale in Stonedene Close, Forest Row, RH18 — £365,000 • 2 bed • 1 bath • 758 ft²
3 bedroom semi-detached house for sale in Post Horn Close, Forest Row, RH18 — £585,000 • 3 bed • 1 bath • 1558 ft²
4 bedroom detached house for sale in Blacklands Crescent, Forest Row, RH18 — £710,000 • 4 bed • 2 bath • 1689 ft²
3 bedroom detached house for sale in Park Crescent, Forest Row, East Sussex, RH18 — £600,000 • 3 bed • 1 bath • 859 ft²


































































































