Chain-free two-bed maisonette with loft planning permission and long 999-year lease..
999-year lease, chain-free possession
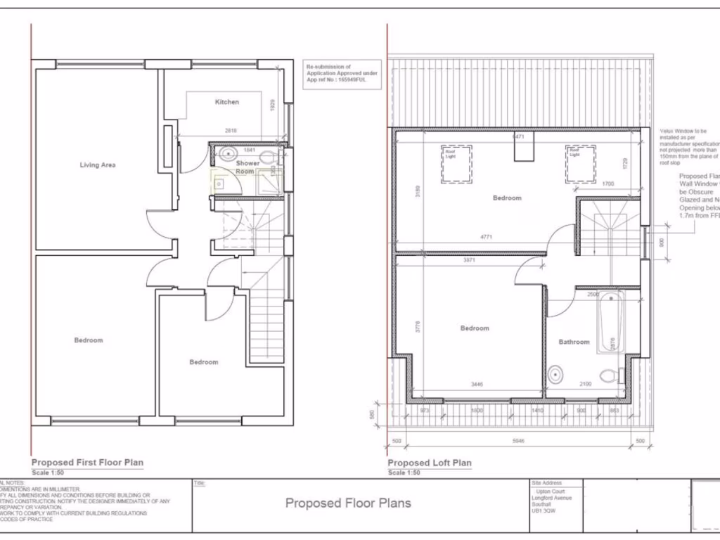
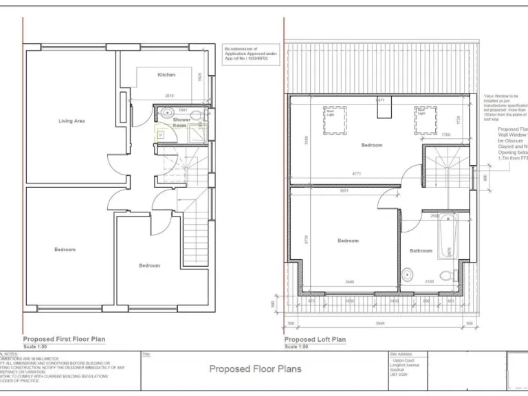
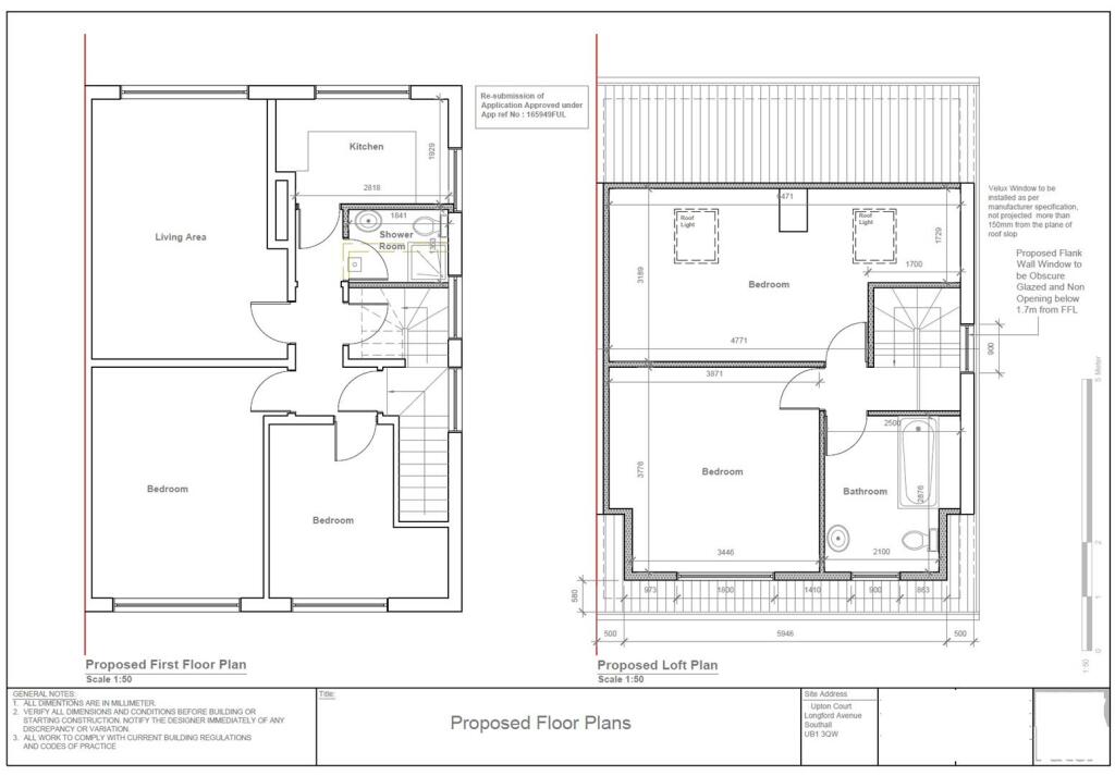
Planning permission to add two loft bedrooms (Ref: 222855FUL)
Approximately 679 sq ft living space
Needs renovation and updating throughout
Separate garage on a separate lease (not included)
Low running costs: nominal ground rent, affordable council tax
Close to Uxbridge Road amenities and good transport links
Fast broadband, excellent mobile signal, low local crime
This first-floor, two-bedroom maisonette on Longford Avenue offers solid long-term tenure with a 999-year lease and immediate chain-free possession. The living space (about 679 sq ft) is well laid out with a generous reception room, a practical kitchen, and a low-maintenance garden — a straightforward home or rental proposition close to Uxbridge Road services.
A clear value driver is the granted planning permission (Ref: 222855FUL) to extend into the loft and create two additional bedrooms. That consent transforms the layout and rental or resale potential without the uncertainty of applying for permission, appealing to buy-to-let investors or buyers seeking added space.
The flat needs updating throughout: dated décor, older fittings and general renovation works are required. The garage is available but held separately on its own lease, so parking is not included automatically. Ground rent is nominal and council tax band is affordable, which helps running costs.
Location strengths include fast broadband, excellent mobile signal, low local crime and several highly rated nearby schools. Those factors, combined with the planning permission and long lease, make this a practical project for someone happy to carry out refurbishment to unlock value.
2 bedroom maisonette for sale in Longford Avenue, Southall, UB1 — £335,000 • 2 bed • 1 bath • 621 ft²
2 bedroom apartment for sale in Timor Court, Longford Avenue, UB1 — £275,000 • 2 bed • 1 bath • 617 ft²
2 bedroom maisonette for sale in Livingstone Road, Southall, UB1 — £299,950 • 2 bed • 1 bath • 594 ft²
2 bedroom ground floor maisonette for sale in Dudley Road, Southall, UB2 — £199,950 • 2 bed • 1 bath • 488 ft²
2 bedroom flat for sale in Longford Avenue, Southall, UB1 — £230,000 • 2 bed • 1 bath • 614 ft²
2 bedroom maisonette for sale in Lady Margaret Road, Southall, UB1 — £335,000 • 2 bed • 1 bath • 377 ft²






























